Molyneux says ..
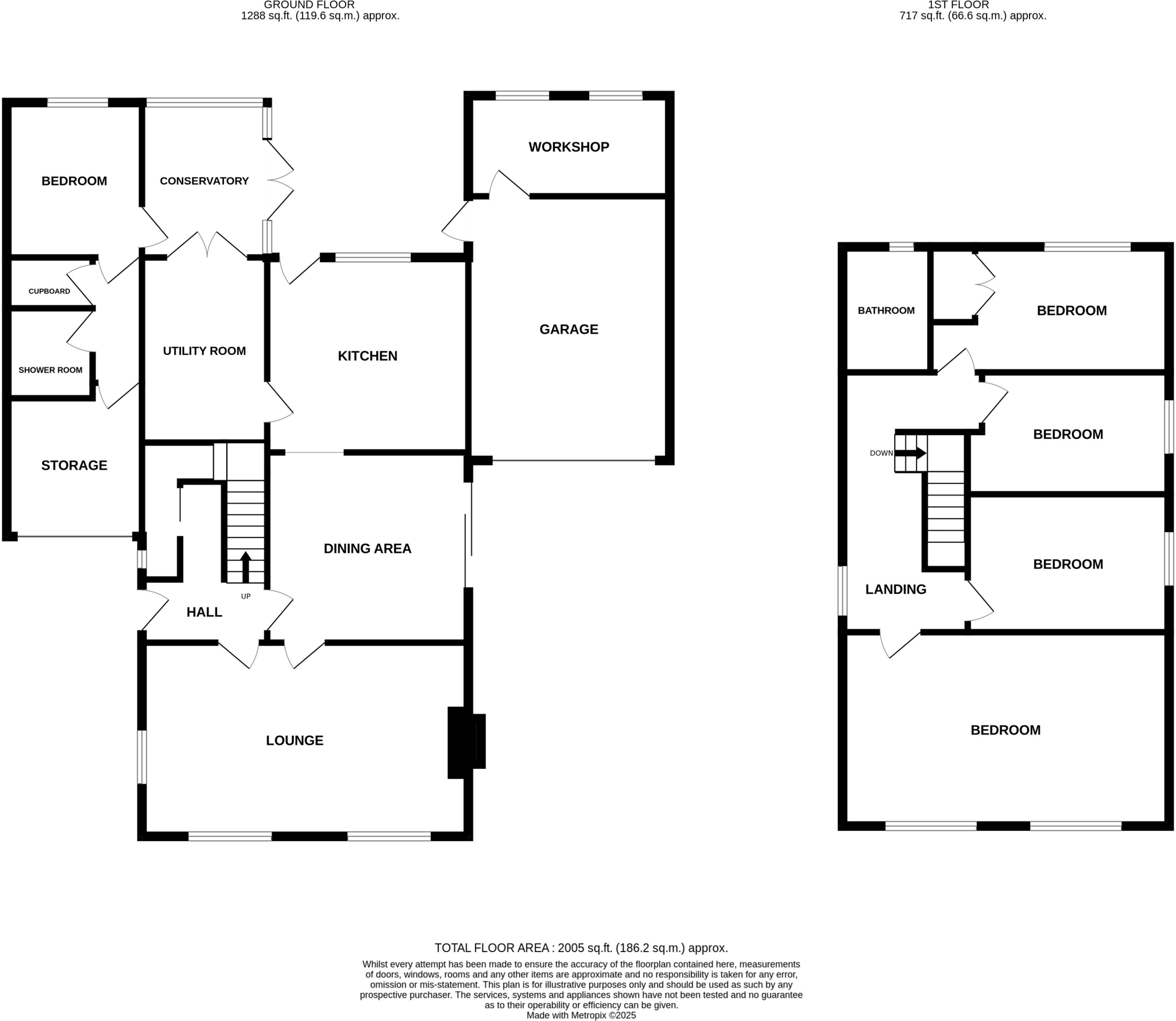
Situated in a much favoured and sought after location is this substantial 4/5 bedroom detached property which requires some updating and offers versatile family living accommodation to briefly comprise entrance hall, cloakroom, lounge, dining area, fitted kitchen with integrated appliances, utili...
Property Oracle says ..
This property is a two-storey house situated on Beechley Road in the Hermitage area of Wrexham. The exterior is brick-built, and appears generally well-maintained from the photograph. The property benefits from being located relatively close to several primary and secondary schools and Wrexham city centre, offering convenient access to amenities and transport links. Several train stations are within a few kilometers. However, crucial information like the square footage and the property’s internal condition are missing. The price of £325,000 seems high when considering some of the nearby comparable properties, but the lack of property size details makes a definitive statement difficult. The presence of a driveway and a small front garden is noted, but the overall plot size is unknown. More information on the property’s internal condition, square footage, plot size, and specific features would allow for a more complete and accurate assessment.
Therefore, we give this property 5 / 10. *Disclaimer: This is our option and does constitute a recommendation or financial advice. Do your own research. *
- Price
- 7
- Condition
- 6
- Location
- 7
- Land
- 3
- Bedrooms
- 4
- Bathrooms
- 2
The heatmap indicates the level of crime in the area. The color of the heatmap indicates the crime severity and recency.
Metrics Year-on-Year
- Average area value
- 502,500.00 £Increased by 40.73 %
- Average area rental value
- 961.00 £/moDecreased by 1.13 %
- Est rental Yield
- 2.29 %Decreased by 29.97 %
- Crime Rate
- 4.00 %Unchanged by 0.00 %
Agent Activity
Molyneux created the listing.
Nearby Schools
| Name | Type | Ofsted | Distance |
|---|---|---|---|
| Ysgol Bodhyfryd | Welsh Establishment | 0.60 KM | |
| St Giles Vc Church In Wales Primary School | Welsh Establishment | 0.69 KM | |
| St Joseph'S Catholic And Anglican Secondary School | Welsh Establishment | 0.87 KM | |
| St Mary'S R.C. Primary School | Welsh Establishment | 0.94 KM | |
| Alexandra C.P. School | Welsh Establishment | 1.25 KM |
Images
Nearby Streets
| Name | Average Price | Average Sqft | Distance |
|---|---|---|---|
| Haig Road | £ 179,950 | 0 | 0.00 KM |
| Birch Street | £ 132,500 | 0 | 0.00 KM |
| Talbot Court | £ 0 | 0 | 0.00 KM |
| Newton Street | £ 165,000 | 0 | 0.00 KM |
| Earle Street | £ 0 | 0 | 0.00 KM |
Nearby Transport
| Name | NLC | TLC | Distance |
|---|---|---|---|
| Wrexham Central | 4486 | WXC | 1.34 KM |
| Wrexham General | 4487 | WRX | 1.91 KM |
| Gwersyllt | 4300 | GWE | 4.88 KM |
| Cefn-Y-Bedd | 2425 | CYB | 8.08 KM |
| Ruabon | 4477 | RUA | 8.31 KM |
Nearby Listings
| Address | Price | Type | Score | Distance |
|---|---|---|---|---|
| Beechley Road, Wrexham, Wrexham, LL13 | £ 225,000 | BUY | Unknown | 0.00 KM |
| Beechley Road, Wrexham, LL13 | £ 320,000 | BUY | 7 / 10 | 0.00 KM |
| Beechley Road, Wrexham | £ 325,000 | BUY | 5 / 10 | 0.00 KM |
| Beechley Road, Wrexham | £ 245,000 | BUY | 5 / 10 | 0.04 KM |
| Beechley Road, Wrexham | £ 330,000 | BUY | 6 / 10 | 0.06 KM |
Nearby Properties
| Address | Price | Distance |
|---|---|---|
| 14 Beechley Road | £ 139,000 | 0.00 KM |
| 82 Beechley Road | £ 239,500 | 0.00 KM |
| 44 Beechley Road | £ 145,000 | 0.00 KM |
| 46 Beechley Road | £ 125,000 | 0.00 KM |
| 10 Beechley Road | £ 190,000 | 0.00 KM |