Chancellors says ..
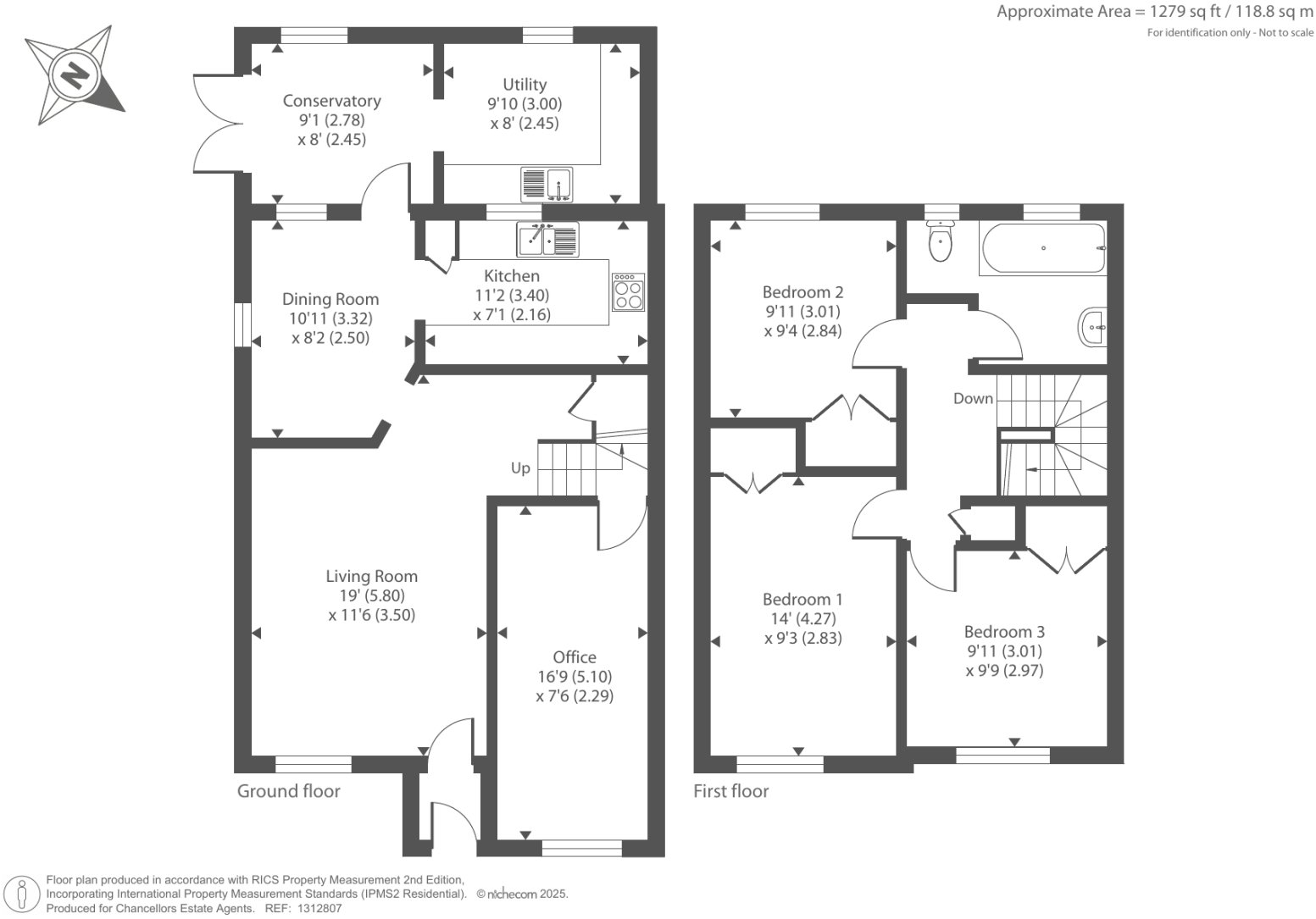
Welcome to your dream family home! This three-bedroom end of terrace property, nestled behind Thatcham Broadway offers a perfect blend of comfort & convenience. With its spacious layout and contemporary finishes it is a must see.
Property Oracle says ..
Therefore, we give this property 6 / 10. *Disclaimer: This is our option and does constitute a recommendation or financial advice. Do your own research. *
- Price
- 6
- Condition
- 7
- Location
- 7
- Land
- 7
- Bedrooms
- 3
- Bathrooms
- 1
- Sqft (est)
- 984.12
The heatmap indicates the level of crime in the area. The color of the heatmap indicates the crime severity and recency.
Metrics Year-on-Year
- Average area value
- 525,000.00 £Increased by 70.84 %
- Est sale value
- 464,504.64 £Increased by 10.02 %
- Average area rental value
- 1,050.00 £/moDecreased by 53.02 %
- Est letting value
- 0.00 £/moDecreased by 100.00 %
- Est rental Yield
- 2.40 %Decreased by 72.51 %
- Crime Rate
- 4.00 %Unchanged by 0.00 %
from 307,297.00 £
from 422,187.48 £
from 2,235.00 £/mo
from 2,952.36 £/mo
from 8.73 %
from 4.00 %
Agent Activity
Chancellors created the listing.
Nearby Schools
| Name | Type | Ofsted | Distance |
|---|---|---|---|
| Thatcham Park Cofe Primary | Voluntary Controlled School | Good | 0.75 KM |
| Spurcroft Primary School | Community School | Good | 0.77 KM |
| Central Family Hub - Thatcham | Children's Centre | 1.00 KM | |
| Whitelands Park Primary School | Academy Sponsor Led | Good | 1.03 KM |
| Kennet School | Academy Converter | Outstanding | 1.36 KM |
Images
Nearby Streets
| Name | Average Price | Average Sqft | Distance |
|---|---|---|---|
| Tudor Court | £ 0 | 0 | 0.00 KM |
| Brownsfield Road | £ 0 | 0 | 0.00 KM |
| Bluecoats | £ 254,000 | 0 | 0.00 KM |
| Whitelands Road | £ 347,500 | 0 | 0.00 KM |
| Coombe Square | £ 369,950 | 0 | 0.00 KM |
Nearby Transport
| Name | NLC | TLC | Distance |
|---|---|---|---|
| Thatcham | 3152 | THA | 2.12 KM |
| Newbury Racecourse | 3071 | NRC | 5.18 KM |
| Newbury | 3074 | NBY | 6.85 KM |
| Midgham | 3159 | MDG | 9.23 KM |
Nearby Listings
| Address | Price | Type | Score | Distance |
|---|---|---|---|---|
| Thatcham, Berkshire, RG19 | £ 425,000 | BUY | 6 / 10 | 0.00 KM |
| Meadow Close, Thatcham, RG19 | £ 337,500 | BUY | 6 / 10 | 0.00 KM |
| Meadow Close, Thatcham | £ 345,000 | BUY | 6 / 10 | 0.13 KM |
| Malham Road, Thatcham, Berkshire, RG19 | £ 425,000 | BUY | 6 / 10 | 0.15 KM |
| Thatcham, Berkshire, RG19 | £ 325,000 | BUY | 6 / 10 | 0.16 KM |
Nearby Properties
| Address | Price | Distance |
|---|---|---|
| 82 Meadow Close | £ 210,000 | 0.06 KM |
| 74 Meadow Close | £ 217,500 | 0.06 KM |
| 88 Meadow Close | £ 334,000 | 0.06 KM |
| 104 Meadow Close | £ 272,000 | 0.06 KM |
| 11 Meadow Close | £ 152,700 | 0.13 KM |