Upper Castleton House, Hundleton, Nr. Pembroke, Pembroke
By Guy Thomas & Co
£ 399,950
Reviews
3 out of 5 stars
Guy Thomas & Co says ..
A LARGE STONE FORMER FARMHOUSE - WELL POSITIONED WITHIN EASY REACH OF PEMBROKE, THE EXTENSIVE MILFORD HAVEN WATERWAY AND THE STUNNING SOUTH-WEST SECTION OF THE PEMBROKESHIRE COAST NATIONAL PARK
Property Oracle says ..
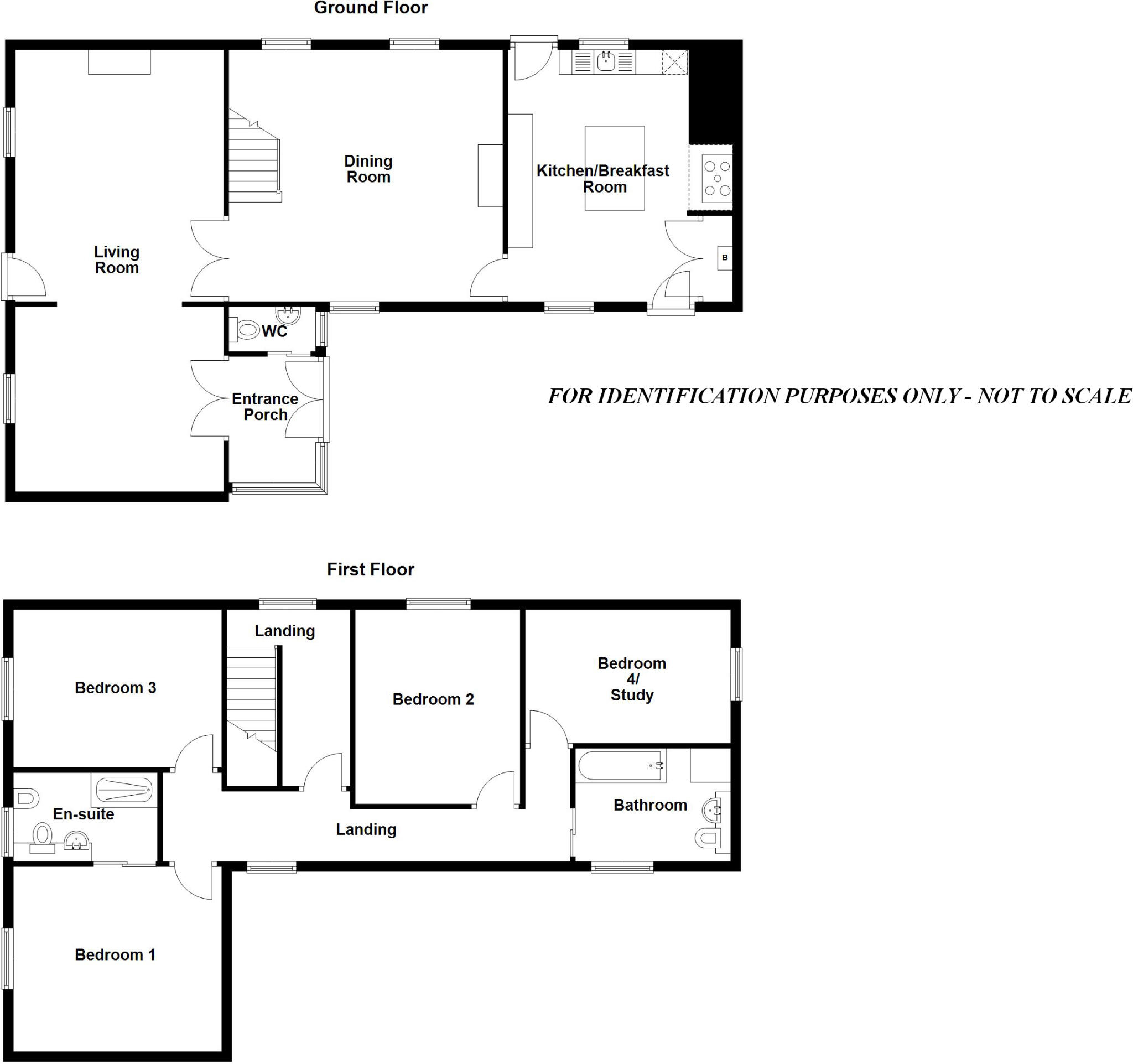
Upper Castleton House is a detached property located in the rural village of Hundleton, Pembrokeshire. The house offers four bedrooms and two bathrooms, with a total living space of 1,190 sqft. The property includes a garden and a large paved area, providing ample outdoor space. While the location offers a peaceful countryside setting, it is relatively remote and requires driving to access amenities and transport links. The property’s condition suggests it needs modernisation, particularly in the kitchen and bathrooms. The asking price of £399,950 appears reasonable given the property’s size, type, and location, but potential buyers should factor in the cost of renovations.
Therefore, we give this property 6 / 10. *Disclaimer: This is our option and does constitute a recommendation or financial advice. Do your own research. *
- Price
- 7
- Condition
- 5
- Location
- 6
- Land
- 7
- Bedrooms
- 4
- Bathrooms
- 2
- Sqft (est)
- 1,190.00
The heatmap indicates the level of crime in the area. The color of the heatmap indicates the crime severity and recency.
Metrics Year-on-Year
- Average area value
- 278,905.00 £Increased by 2.67 %
- Est sale value
- 327,250.00 £Increased by 50.27 %
- Average area rental value
- 800.00 £/moDecreased by 34.53 %
- Est letting value
- 0.00 £/mo
- Est rental Yield
- 3.44 %Decreased by 36.30 %
- Crime Rate
- 0.00 %
Agent Activity
Guy Thomas & Co created the listing.
Nearby Schools
| Name | Type | Ofsted | Distance |
|---|---|---|---|
| Pennar Community School | Welsh Establishment | 4.12 KM | |
| Monkton Priory Cp School | Welsh Establishment | 5.74 KM | |
| Pembroke Dock Cp School | Welsh Establishment | 5.94 KM | |
| Neyland Primary School | Welsh Establishment | 6.24 KM | |
| Ysgol Harri Tudur/Henry Tudor School | Welsh Establishment | 6.37 KM |
Images
Nearby Streets
| Name | Average Price | Average Sqft | Distance |
|---|---|---|---|
| Axton Hill | £ 600,000 | 0 | 0.00 KM |
Nearby Transport
| Name | NLC | TLC | Distance |
|---|---|---|---|
| Pembroke Dock | 4102 | PMD | 5.90 KM |
| Pembroke | 4101 | PMB | 8.26 KM |
| Milford Haven | 4095 | MFH | 9.07 KM |
Nearby Listings
| Address | Price | Type | Score | Distance |
|---|---|---|---|---|
| Upper Castleton House, Hundleton, Nr. Pembroke, Pembroke | £ 399,950 | BUY | 6 / 10 | 0.00 KM |
| Hundleton, Pembroke, Pembrokeshire, SA71 | £ 284,950 | BUY | Unknown | 0.52 KM |
| Hundleton, Pembroke, Pembrokeshire, SA71 | £ 625,000 | BUY | 6 / 10 | 1.22 KM |
| Hundleton, Pembroke | £ 450,000 | BUY | 6 / 10 | 1.52 KM |
| The Gables, Hundleton, Pembroke | £ 420,000 | BUY | 6 / 10 | 1.53 KM |