Butters John Bee says ..
This four-bedroom HMO offers a ready-made investment, representing an exceptional opportunity for a sophisticated investor
Property Oracle says ..
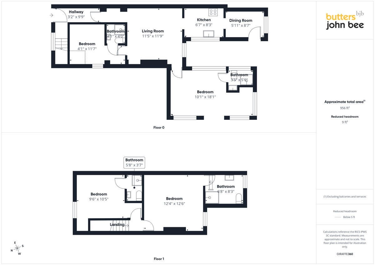
This is a three-bedroom terraced house located in Crewe East. The property benefits from its proximity to local schools and transportation links, including Crewe train station. While the interior is generally well-maintained with modern fittings in the kitchen and bathroom, some areas would benefit from decluttering and a fresh look. The garden, while present, needs some attention. Considering the location, condition, and available space, the asking price of £170,000 seems reasonable, especially when compared to the average property price in the area.
Therefore, we give this property 6 / 10. *Disclaimer: This is our option and does constitute a recommendation or financial advice. Do your own research. *
- Price
- 7
- Condition
- 6
- Location
- 6
- Land
- 5
- Bedrooms
- 3
- Bathrooms
- 1
- Sqft (est)
- 956.00
The heatmap indicates the level of crime in the area. The color of the heatmap indicates the crime severity and recency.
Metrics Year-on-Year
- Average area value
- 198,130.00 £Decreased by 16.97 %
- Est sale value
- 218,924.00 £Increased by 3.62 %
- Average area rental value
- 1,075.00 £/moIncreased by 14.97 %
- Est letting value
- 956.00 £/mo
- Est rental Yield
- 6.51 %Increased by 38.51 %
- Crime Rate
- 7.00 %Unchanged by 0.00 %
Agent Activity
Butters John Bee created the listing.
Nearby Schools
| Name | Type | Ofsted | Distance |
|---|---|---|---|
| Crewe Engineering And Design Utc | University Technical College | Good | 0.49 KM |
| Brierley Primary School | Community School | Good | 0.56 KM |
| Beechwood Primary School And Nursery | Community School | Good | 0.82 KM |
| Sir William Stanier Community School | Academy Sponsor Led | Requires improvement | 0.86 KM |
| Adelaide School | Academy Special Converter | Outstanding | 1.08 KM |
Images
Nearby Streets
| Name | Average Price | Average Sqft | Distance |
|---|---|---|---|
| Sheppard Close | £ 0 | 0 | 0.00 KM |
| Coronation Street | £ 0 | 0 | 0.00 KM |
| Coronation Street | £ 0 | 0 | 0.00 KM |
| Gladstone Street | £ 0 | 0 | 0.00 KM |
| Abbey Place | £ 105,000 | 0 | 0.00 KM |
Nearby Transport
| Name | NLC | TLC | Distance |
|---|---|---|---|
| Crewe | 1243 | CRE | 1.66 KM |
| Sandbach | 1261 | SDB | 7.25 KM |
| Nantwich | 1247 | NAN | 9.87 KM |
Nearby Listings
| Address | Price | Type | Score | Distance |
|---|---|---|---|---|
| Audley Street, Crewe | £ 170,000 | BUY | 6 / 10 | 0.00 KM |
| Audley Street, Crewe | £ 150,000 | BUY | 7 / 10 | 0.03 KM |
| Wynter Close, Crewe | £ 175,000 | BUY | 7 / 10 | 0.07 KM |
| Audley Street, Crewe | £ 130,000 | BUY | 5 / 10 | 0.10 KM |
| Middlewich Street, Crewe, CW1 | £ 125,000 | BUY | 6 / 10 | 0.11 KM |
Nearby Properties
| Address | Price | Distance |
|---|---|---|
| 6 Middlewich Street | £ 98,000 | 0.08 KM |
| 10 Middlewich Street | £ 71,500 | 0.08 KM |
| 4 Middlewich Street | £ 74,000 | 0.08 KM |
| 22 Middlewich Street | £ 68,000 | 0.08 KM |
| 20 Middlewich Street | £ 56,000 | 0.08 KM |