Northwood says ..
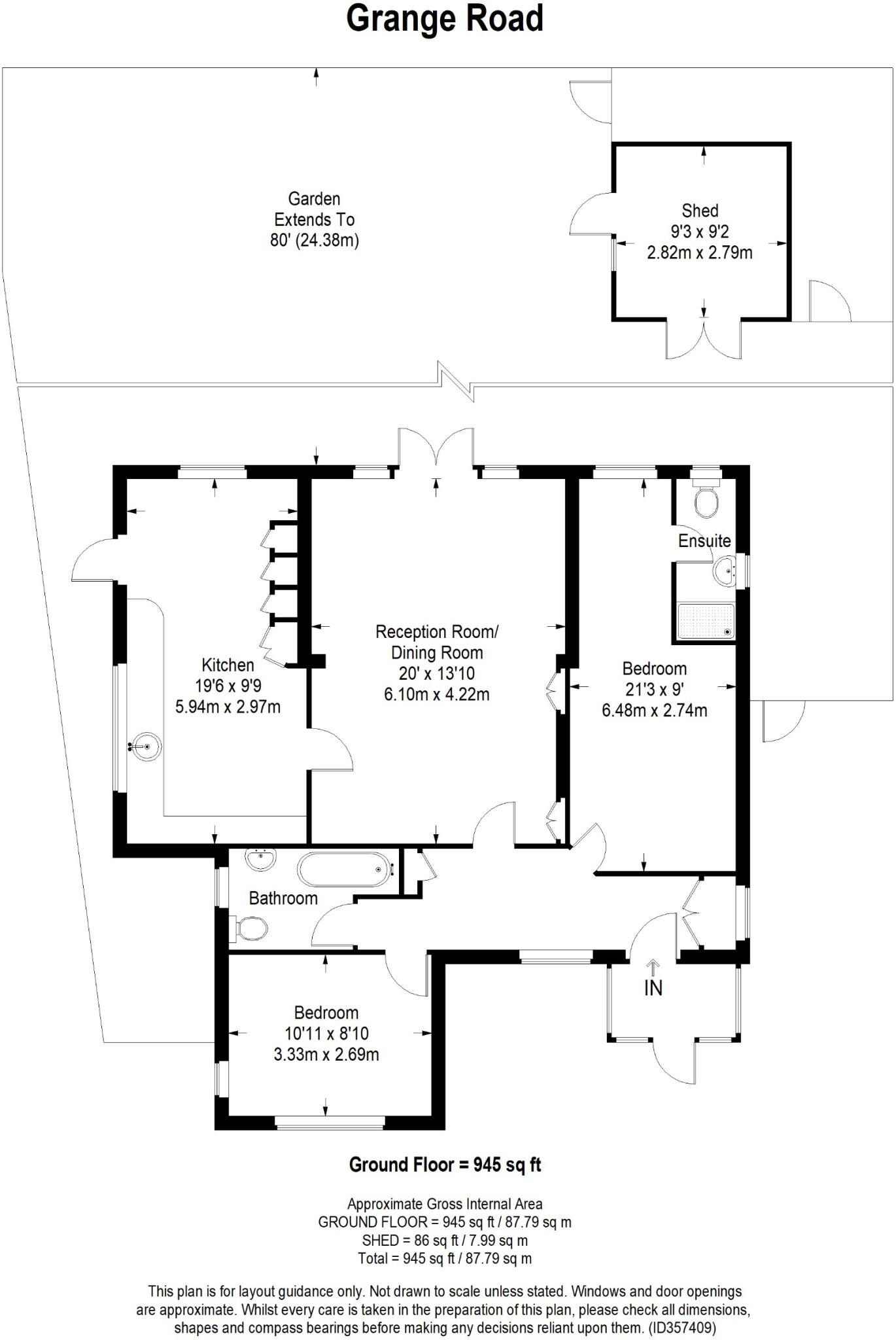
A LARGER THAN AVERAGE TWO DOUBLE BEDROOM DETACHED BUNGALOW with through lounge, kitchen/diner, BATHROOM AND SHOWER ROOM, double glazing, gas central heating, OFF STREET PARKING FOR SEVERAL VEHICLES, REAR GARDEN.....CALL NOW TO VIEW.....NO CHAIN.
Property Oracle says ..
Therefore, we give this property 7 / 10. *Disclaimer: This is our option and does constitute a recommendation or financial advice. Do your own research. *
- Price
- 6
- Condition
- 7
- Location
- 8
- Land
- 7
- Bedrooms
- 2
- Bathrooms
- 2
- Sqft (est)
- 945.00
The heatmap indicates the level of crime in the area. The color of the heatmap indicates the crime severity and recency.
Metrics Year-on-Year
- Average area value
- 376,667.00 £Decreased by 11.42 %
- Est sale value
- 282,555.00 £Decreased by 27.43 %
- Average area rental value
- 1,100.00 £/moIncreased by 18.92 %
- Est letting value
- 0.00 £/mo
- Est rental Yield
- 3.50 %Increased by 34.10 %
- Crime Rate
- 4.00 %Unchanged by 0.00 %
from 425,220.00 £
from 389,340.00 £
from 925.00 £/mo
from 0.00 £/mo
from 2.61 %
from 4.00 %
Agent Activity
Northwood created the listing.
Nearby Schools
| Name | Type | Ofsted | Distance |
|---|---|---|---|
| St Paul'S Cofe Primary School | Voluntary Aided School | Good | 0.17 KM |
| Southborough High School | Academy Converter | Good | 0.56 KM |
| Tolworth Girls' School And Sixth Form | Academy Converter | Outstanding | 1.00 KM |
| Shrewsbury House School | Other Independent School | 1.02 KM | |
| Chessington Children'S Centre | Children's Centre | 1.06 KM |
Images
Nearby Streets
| Name | Average Price | Average Sqft | Distance |
|---|---|---|---|
| Green End | £ 0 | 0 | 0.00 KM |
| The Causeway | £ 500,000 | 0 | 0.00 KM |
| Durbin Road | £ 450,000 | 0 | 0.00 KM |
| Albury Road | £ 325,000 | 0 | 0.00 KM |
| Sunningdale Close | £ 0 | 0 | 0.00 KM |
Nearby Transport
| Name | NLC | TLC | Distance |
|---|---|---|---|
| Chessington North | 5582 | CSN | 0.90 KM |
| Chessington South | 5554 | CSS | 1.70 KM |
| Surbiton | 5571 | SUR | 2.35 KM |
| Tolworth | 5573 | TOL | 2.80 KM |
| Berrylands | 5581 | BRS | 4.03 KM |
Nearby Listings
| Address | Price | Type | Score | Distance |
|---|---|---|---|---|
| Grange Road, Chessington, KT9 | £ 600,000 | BUY | 6 / 10 | 0.00 KM |
| Grange Road, Chessington, KT9 | £ 640,000 | BUY | 7 / 10 | 0.00 KM |
| Grange Road, Chessington, KT9 | £ 550,000 | BUY | 6 / 10 | 0.00 KM |
| Grange Road, Chessington, KT9 | £ 575,000 | BUY | 7 / 10 | 0.00 KM |
| Hook Road, Chessington, Surrey. KT9 1EQ | £ 450,000 | BUY | 6 / 10 | 0.10 KM |
Nearby Properties
| Address | Price | Distance |
|---|---|---|
| 28 Grange Road | £ 540,000 | 0.00 KM |
| 10 Grange Road | £ 445,000 | 0.00 KM |
| 32 Grange Road | £ 540,000 | 0.00 KM |
| 8 Grange Road | £ 230,000 | 0.00 KM |
| 20 Grange Road | £ 202,000 | 0.00 KM |