Highlever Road, North Kensington, W10
By Rigby And Marchant
£ 2,300,000
Reviews
3 out of 5 stars
Rigby And Marchant says ..
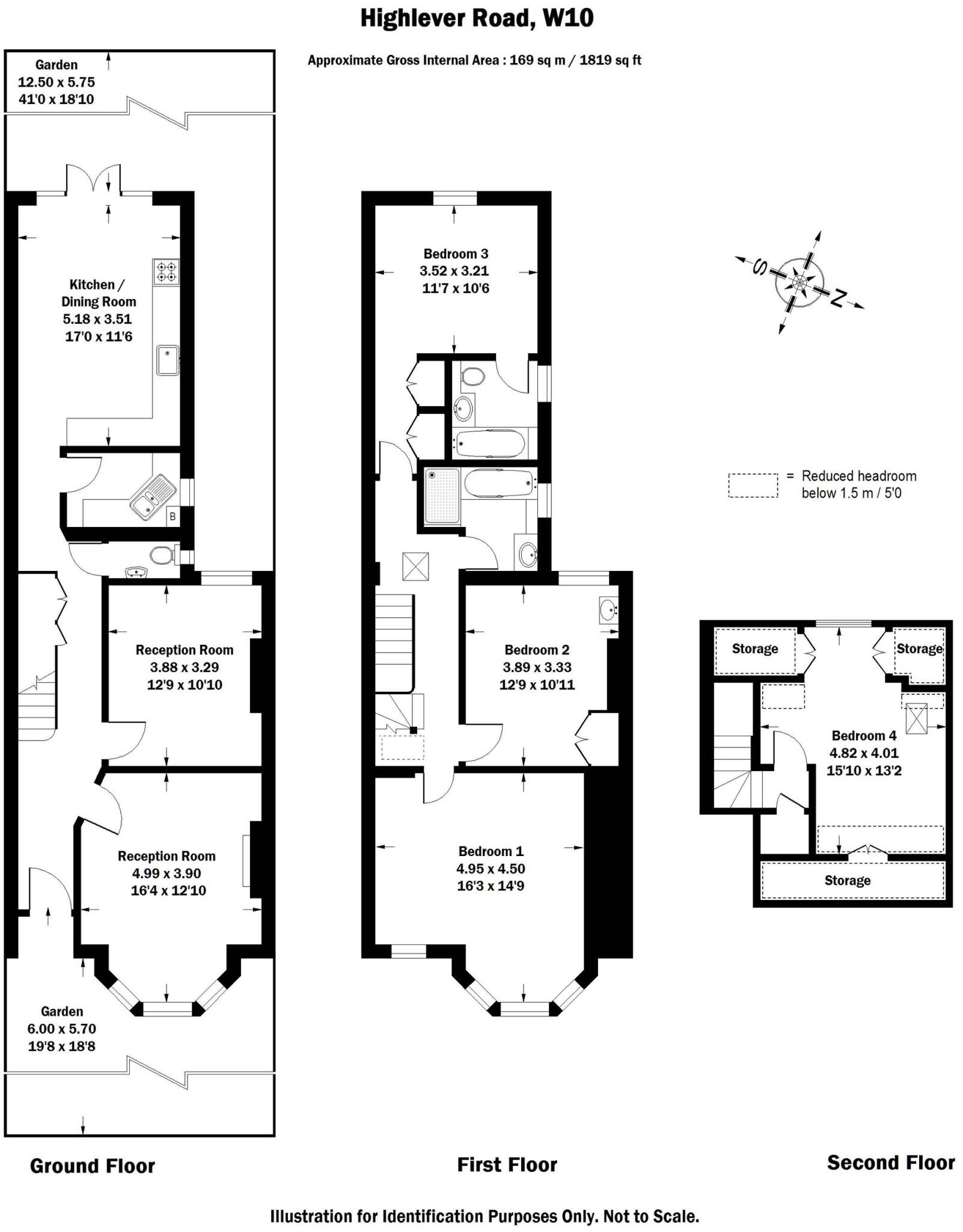
An absolutely beautiful four bedroom family house, with lots of character and charm, offering extremely light and spacious accommodation.
Property Oracle says ..
Located on Highlever Road, North Kensington, this 4-bedroom house offers convenient access to transportation and nearby schools. The property appears to be in good condition, featuring modern bathrooms and a functional kitchen. It also benefits from a garden. At £961 per sqft, the price seems reasonable compared to the area’s average.
Therefore, we give this property 7 / 10. *Disclaimer: This is our option and does constitute a recommendation or financial advice. Do your own research. *
- Price
- 8
- Condition
- 8
- Location
- 8
- Land
- 7
- Bedrooms
- 4
- Bathrooms
- 2
- Sqft (est)
- 2,393.24
The heatmap indicates the level of crime in the area. The color of the heatmap indicates the crime severity and recency.
Metrics Year-on-Year
- Average area value
- 612,500.00 £Decreased by 55.95 %
- Est sale value
- 2,199,387.56 £Decreased by 36.97 %
- Average area rental value
- 2,050.00 £/moDecreased by 9.41 %
- Est letting value
- 7,179.72 £/moIncreased by 50.00 %
- Est rental Yield
- 4.02 %Increased by 106.15 %
- Crime Rate
- 2.00 %Unchanged by 0.00 %
Agent Activity
Rigby And Marchant created the listing.
Nearby Schools
| Name | Type | Ofsted | Distance |
|---|---|---|---|
| St Quintin'S Children'S Centre | Children's Centre | 0.13 KM | |
| Oxford Gardens Primary School | Community School | Good | 0.49 KM |
| Ormiston Latimer Academy | Academy Alternative Provision Converter | Good | 0.57 KM |
| Catch22 Pupil Parent Partnership | Other Independent Special School | Good | 0.62 KM |
| Bassett House School | Other Independent School | 0.62 KM |
Images
Nearby Streets
| Name | Average Price | Average Sqft | Distance |
|---|---|---|---|
| Westview Close | £ 0 | 0 | 0.00 KM |
| Brewster Gardens | £ 783,333 | 0 | 0.00 KM |
| Silver Road | £ 0 | 0 | 0.00 KM |
| Fountain Park Way | £ 0 | 0 | 0.00 KM |
| Lower Road | £ 0 | 0 | 0.00 KM |
Nearby Transport
| Name | NLC | TLC | Distance |
|---|---|---|---|
| Kensal Green | 1447 | KNL | 1.41 KM |
| Shepherd'S Bush | 9587 | SPB | 1.54 KM |
| Kensal Rise | 1448 | KNR | 1.88 KM |
| Kensington (Olympia) | 3092 | KPA | 2.65 KM |
| Queens Park (London) | 1419 | QPW | 2.69 KM |
Nearby Listings
| Address | Price | Type | Score | Distance |
|---|---|---|---|---|
| Highlever Road, North Kensington, W10 | £ 2,300,000 | BUY | 7 / 10 | 0.00 KM |
| St. Quintin Avenue, London, W10 | £ 600,000 | BUY | 5 / 10 | 0.03 KM |
| Highlever Road, London, W10 | £ 2,300,000 | BUY | 7 / 10 | 0.03 KM |
| Highlever Road, London, W10 | £ 3,795,000 | BUY | 7 / 10 | 0.06 KM |
| Latimer Road, London | £ 545,000 | BUY | 6 / 10 | 0.07 KM |
Nearby Properties
| Address | Price | Distance |
|---|---|---|
| 75 Highlever Road | £ 1,508,000 | 0.01 KM |
| 59 Highlever Road | £ 351,000 | 0.01 KM |
| 53 Highlever Road | £ 2,772,000 | 0.01 KM |
| 47 Highlever Road | £ 380,000 | 0.01 KM |
| 77 Highlever Road | £ 2,225,000 | 0.01 KM |