Arnolds Keys says ..
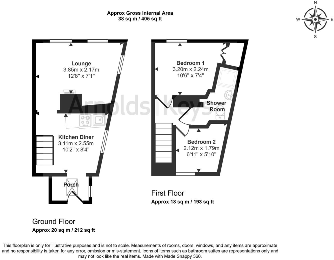
A wonderful opportunity to acquire this superb little cottage constructed in the traditional style of Norfolk Brick and flint elevations beneath a pantiled roof. Although small in size, the property is huge in character with every square inch being used to make it a joy to occupy. Curren...
Property Oracle says ..
This end-of-terrace property on Cromer Road in Sheringham presents a good opportunity, particularly for small families or individuals. The interior is modern and well-maintained, with a recently renovated kitchen and bathroom. The location is convenient, with proximity to schools and transportation. The limited outdoor space might be a drawback for some, but the overall package offers good value for the asking price.
Therefore, we give this property 6 / 10. *Disclaimer: This is our option and does constitute a recommendation or financial advice. Do your own research. *
- Price
- 8
- Condition
- 8
- Location
- 7
- Land
- 4
- Bedrooms
- 2
- Bathrooms
- 1
The heatmap indicates the level of crime in the area. The color of the heatmap indicates the crime severity and recency.
Metrics Year-on-Year
- Average area value
- 337,772.00 £Decreased by 14.97 %
- Average area rental value
- 950.00 £/moIncreased by 2.70 %
- Est rental Yield
- 3.38 %Increased by 21.15 %
- Crime Rate
- 23.00 %Unchanged by 0.00 %
Agent Activity
Arnolds Keys created the listing.
Nearby Schools
| Name | Type | Ofsted | Distance |
|---|---|---|---|
| Beeston Hall School | Other Independent School | 1.68 KM | |
| Sheringham Community Primary School | Community School | Good | 1.99 KM |
| St Andrew'S School | Other Independent Special School | Good | 2.21 KM |
| Sheringham Woodfields School | Foundation Special School | Outstanding | 2.25 KM |
| Sheringham High School | Academy Converter | Good | 2.30 KM |
Images
Nearby Streets
| Name | Average Price | Average Sqft | Distance |
|---|---|---|---|
| Huntley Crescent | £ 198,750 | 0 | 0.00 KM |
| Havelock Road | £ 0 | 0 | 0.00 KM |
| Hadley Road | £ 0 | 0 | 0.00 KM |
| Elm Grove | £ 0 | 0 | 0.00 KM |
| Knowle Road | £ 180,000 | 0 | 0.00 KM |
Nearby Transport
| Name | NLC | TLC | Distance |
|---|---|---|---|
| Sheringham | 7319 | SHM | 0.98 KM |
| West Runton | 7329 | WRN | 2.97 KM |
| Cromer | 7295 | CMR | 8.24 KM |
| Roughton Road | 7297 | RNR | 9.25 KM |
Nearby Listings
| Address | Price | Type | Score | Distance |
|---|---|---|---|---|
| Cromer Road, Sheringham | £ 195,000 | BUY | 6 / 10 | 0.00 KM |
| Sheringham | £ 375,000 | BUY | 7 / 10 | 0.07 KM |
| Beeston Common, Sheringham | £ 595,000 | BUY | Unknown | 0.09 KM |
| Cromer Road, Sheringham | £ 375,000 | BUY | 6 / 10 | 0.16 KM |
| Pine Grove, Sheringham | £ 200,000 | BUY | 5 / 10 | 0.16 KM |
Nearby Properties
| Address | Price | Distance |
|---|---|---|
| 84 Cromer Road | £ 42,500 | 0.04 KM |
| 78a Cromer Road | £ 234,000 | 0.04 KM |
| 94a Cromer Road | £ 243,000 | 0.04 KM |
| 92 Cromer Road | £ 96,000 | 0.04 KM |
| 86 Cromer Road | £ 58,500 | 0.04 KM |