Goodfellows says ..
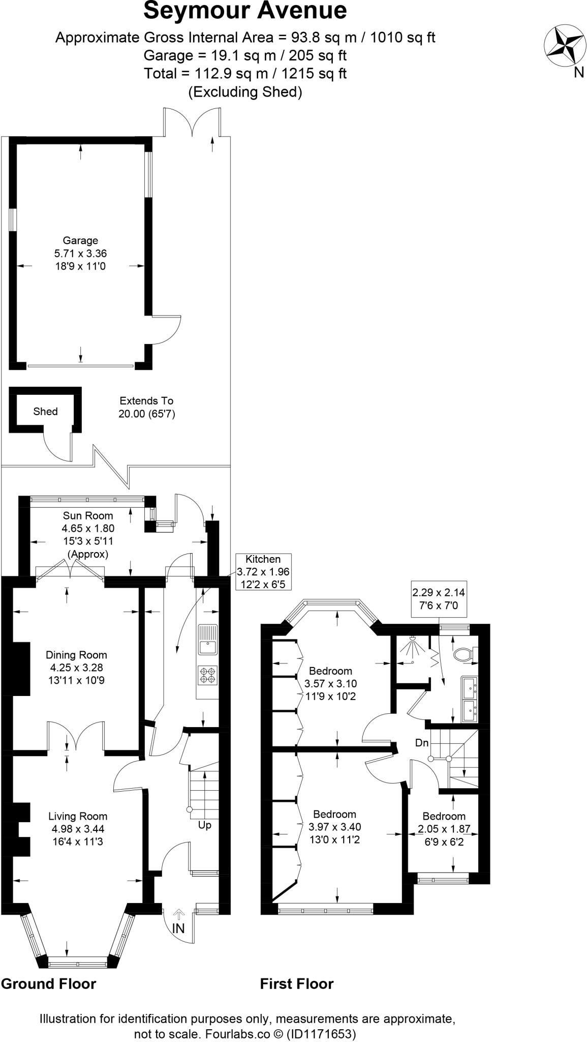
Situated in the ever popular Seymour Avenue, is this "Exhibition" build three bedroom family home. Offering also the scope to extend, this would make for the ideal family home. The current accommodation on offer is as follows; a bright lounge, with a feature bay window. Soli...
Property Oracle says ..
This property is a 3-bedroom, 1-bathroom house located on Seymour Avenue in Lower Morden, Merton, Greater London. It is listed at £565,000 and has a floor area of 1,215 sqft. The average price for properties in the area is £566,290, with an average size of 1,539 sqft and an average price per sqft of £367. The property benefits from a good location, with nearby schools such as Aragon Primary School (rated ‘Good’ by Ofsted) and several other well-regarded schools within a short distance. Transport links are also convenient, with several train stations within a 2-3km radius. The presence of a garden adds to the property’s appeal. Based on the photographs, the property appears to be in generally good condition, although some aspects may benefit from modernisation. The kitchen and bathrooms, while functional, show signs of age and could be updated to enhance the property’s overall appeal. The interior decor is dated in places, which may impact the overall presentation. Considering the property’s condition, location, and the presence of a garden, the list price of £565,000 appears to be in line with the average property price in the area. However, the smaller size of the property (1,215 sqft compared to the average of 1,539 sqft) could be a factor influencing the price. The lack of plot size information makes a definitive statement on land value difficult.
Therefore, we give this property 7 / 10. *Disclaimer: This is our option and does constitute a recommendation or financial advice. Do your own research. *
- Price
- 7
- Condition
- 7
- Location
- 8
- Land
- 7
- Bedrooms
- 3
- Bathrooms
- 1
- Sqft (est)
- 1,215.00
The heatmap indicates the level of crime in the area. The color of the heatmap indicates the crime severity and recency.
Metrics Year-on-Year
- Average area value
- 575,778.00 £Increased by 14.54 %
- Est sale value
- 613,575.00 £Decreased by 6.48 %
- Average area rental value
- 2,096.00 £/moDecreased by 8.39 %
- Est letting value
- 1,215.00 £/moDecreased by 50.00 %
- Est rental Yield
- 4.37 %Decreased by 19.96 %
- Crime Rate
- 3.00 %Unchanged by 0.00 %
Agent Activity
Goodfellows created the listing.
Nearby Schools
| Name | Type | Ofsted | Distance |
|---|---|---|---|
| Aragon Primary School | Academy Converter | Good | 0.46 KM |
| Lower Morden Children'S Centre | Children's Centre Linked Site | 0.58 KM | |
| Brookfield Primary Academy | Academy Converter | Good | 0.67 KM |
| Hatfeild Primary School | Community School | Good | 0.83 KM |
| St Cecilia'S Catholic Primary School | Voluntary Aided School | Outstanding | 0.83 KM |
Images
Nearby Streets
| Name | Average Price | Average Sqft | Distance |
|---|---|---|---|
| Trafalgar Avenue | £ 396,250 | 0 | 0.00 KM |
| St Cecilia's Close | £ 0 | 0 | 0.00 KM |
| Westbourne Avenue | £ 1,990,000 | 0 | 0.00 KM |
| Beeches Road | £ 465,438 | 0 | 0.00 KM |
| Cardinal Close | £ 0 | 0 | 0.00 KM |
Nearby Transport
| Name | NLC | TLC | Distance |
|---|---|---|---|
| St Helier | 5290 | SIH | 2.34 KM |
| Morden South | 5291 | MDS | 2.54 KM |
| Motspur Park | 5645 | MOT | 2.55 KM |
| West Sutton | 5293 | WSU | 2.58 KM |
| South Merton | 5292 | SMO | 2.59 KM |
Nearby Listings
| Address | Price | Type | Score | Distance |
|---|---|---|---|---|
| Seymour Avenue, Morden, SM4 | £ 565,000 | BUY | 7 / 10 | 0.00 KM |
| Kingsbridge Road, Morden, SM4 | £ 550,000 | BUY | 7 / 10 | 0.08 KM |
| Kingsbridge Road, Morden | £ 500,000 | BUY | 7 / 10 | 0.12 KM |
| Aragon Road, Morden | £ 600,000 | BUY | 7 / 10 | 0.12 KM |
| Seymour Avenue, Morden | £ 530,000 | BUY | Unknown | 0.14 KM |
Nearby Properties
| Address | Price | Distance |
|---|---|---|
| 92 Kingsbridge Road | £ 450,000 | 0.08 KM |
| 98 Kingsbridge Road | £ 377,500 | 0.08 KM |
| 30 Kingsbridge Road | £ 78,000 | 0.08 KM |
| 86 Kingsbridge Road | £ 520,000 | 0.08 KM |
| 105 Seymour Avenue | £ 205,000 | 0.08 KM |