Lewis King says ..
Welcome to a truly delightful property on Elton Road, Sandbach, where the timeless appeal of a character cottage meets the effortless luxury of modern living. This superb two-bedroom home has been lovingly updated and is offered to the market with the highly desirable benefit of NO ONWARD CHAIN, ...
Property Oracle says ..
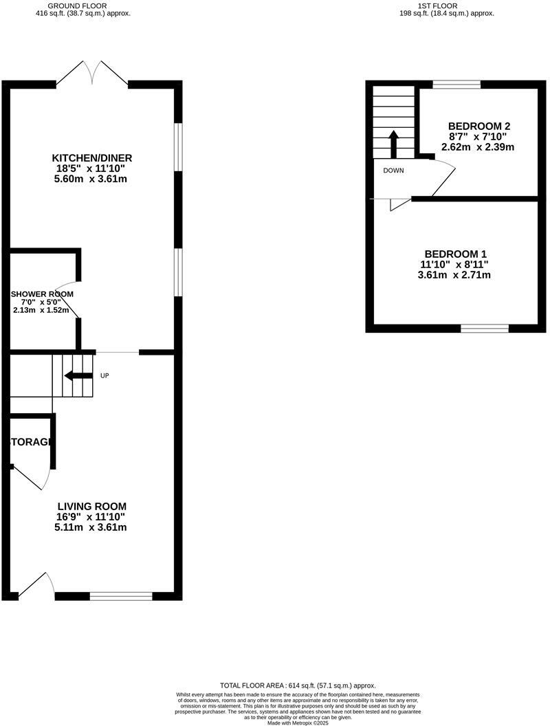
This is a two-bedroom semi-detached property located on Elton Road in Sandbach. The property is listed for £200,000 and has a floor space of 614.62 sqft. The property is located close to local schools and transportation links. The property has a good-sized garden with a shed. The kitchen and bathroom have been modernised, however, the bedrooms could do with some modernisation.
Therefore, we give this property 6 / 10. *Disclaimer: This is our option and does constitute a recommendation or financial advice. Do your own research. *
- Price
- 7
- Condition
- 6
- Location
- 6
- Land
- 8
- Bedrooms
- 2
- Bathrooms
- 1
- Sqft (est)
- 614.62
The heatmap indicates the level of crime in the area. The color of the heatmap indicates the crime severity and recency.
Metrics Year-on-Year
- Average area value
- 358,750.00 £Increased by 32.67 %
- Est sale value
- 137,060.26 £Decreased by 16.48 %
- Average area rental value
- 1,413.00 £/moIncreased by 43.74 %
- Est letting value
- 0.00 £/mo
- Est rental Yield
- 4.73 %Increased by 8.49 %
- Crime Rate
- 31.00 %Unchanged by 0.00 %
Agent Activity
Lewis King created the listing.
Nearby Schools
| Name | Type | Ofsted | Distance |
|---|---|---|---|
| Elworth Cofe Primary School | Voluntary Controlled School | Good | 1.42 KM |
| Wheelock Primary School | Academy Converter | 2.78 KM | |
| Sandbach High School And Sixth Form College | Academy Converter | 2.85 KM | |
| Sandbach School | Free Schools | Good | 3.10 KM |
| Sandbach Primary Academy | Academy Converter | Good | 3.27 KM |
Images
Nearby Streets
| Name | Average Price | Average Sqft | Distance |
|---|---|---|---|
| Hall Lane | £ 0 | 0 | 0.00 KM |
| Moss Lane | £ 0 | 0 | 0.00 KM |
| Salt Line Way | £ 0 | 0 | 0.00 KM |
| Foundry Lane | £ 0 | 0 | 0.00 KM |
| Campion Road | £ 459,625 | 0 | 0.00 KM |
Nearby Transport
| Name | NLC | TLC | Distance |
|---|---|---|---|
| Sandbach | 1261 | SDB | 1.34 KM |
| Crewe | 1243 | CRE | 6.70 KM |
| Holmes Chapel | 1221 | HCH | 8.46 KM |
Nearby Listings
| Address | Price | Type | Score | Distance |
|---|---|---|---|---|
| Elton Road, Sandbach | £ 200,000 | BUY | 6 / 10 | 0.00 KM |
| Elton Road, Ettiley Heath, Sandbach, CW11 | £ 160,000 | BUY | 5 / 10 | 0.05 KM |
| Coleridge Close, Sandbach | £ 144,000 | BUY | 7 / 10 | 0.06 KM |
| Coleridge Close, Sandbach | £ 215,000 | BUY | 7 / 10 | 0.10 KM |
| Coleridge Close, Sandbach | £ 225,000 | BUY | 7 / 10 | 0.10 KM |
Nearby Properties
| Address | Price | Distance |
|---|---|---|
| 85 Elton Road | £ 124,000 | 0.05 KM |
| 101 Elton Road | £ 125,000 | 0.05 KM |
| 105 Elton Road | £ 162,000 | 0.05 KM |
| 104 Elton Road | £ 166,500 | 0.05 KM |
| 106 Elton Road | £ 76,000 | 0.05 KM |