Barnard Marcus says ..
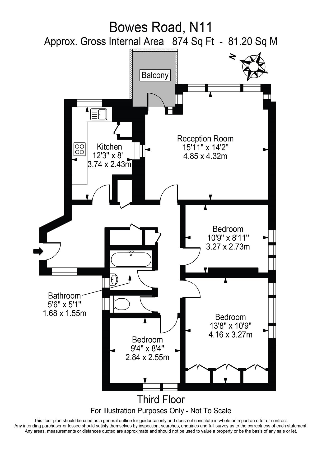
Situated on the third floor of a well-maintained development on Bowes Road, this bright and spacious three-bedroom apartment offers fantastic elevated views and a private balcony.
Property Oracle says ..
Therefore, we give this property 5 / 10. *Disclaimer: This is our option and does constitute a recommendation or financial advice. Do your own research. *
- Price
- 5
- Condition
- 6
- Location
- 8
- Land
- 1
- Bedrooms
- 3
- Bathrooms
- 1
- Sqft (est)
- 661.01
The heatmap indicates the level of crime in the area. The color of the heatmap indicates the crime severity and recency.
Metrics Year-on-Year
- Average area value
- 793,750.00 £Decreased by 0.58 %
- Est sale value
- 167,896.54 £Decreased by 55.44 %
- Average area rental value
- 1,954.00 £/moIncreased by 5.97 %
- Est letting value
- 0.00 £/moDecreased by 100.00 %
- Est rental Yield
- 2.95 %Increased by 6.50 %
- Crime Rate
- 15.00 %Unchanged by 0.00 %
from 798,378.00 £
from 376,775.70 £
from 1,844.00 £/mo
from 661.01 £/mo
from 2.77 %
from 15.00 %
Agent Activity
Barnard Marcus created the listing.
Nearby Schools
| Name | Type | Ofsted | Distance |
|---|---|---|---|
| Our Lady Of Lourdes Catholic Primary School | Voluntary Aided School | Good | 0.31 KM |
| Bowes And Garfield Children'S Centre | Children's Centre | 0.35 KM | |
| Garfield Primary School | Community School | Good | 0.41 KM |
| Focus 1St Academy | Other Independent School | Good | 0.55 KM |
| St Paul'S Cofe Primary School N11 | Voluntary Aided School | Good | 0.59 KM |
Images
Nearby Streets
| Name | Average Price | Average Sqft | Distance |
|---|---|---|---|
| Cross Road | £ 0 | 0 | 0.00 KM |
| Regal Drive | £ 0 | 0 | 0.00 KM |
| Beaconsfield Close | £ 0 | 0 | 0.00 KM |
| Chaucer Close | £ 678,333 | 0 | 0.00 KM |
| Marlborough Avenue | £ 0 | 0 | 0.00 KM |
Nearby Transport
| Name | NLC | TLC | Distance |
|---|---|---|---|
| New Southgate | 6019 | NSG | 0.53 KM |
| Bowes Park | 6027 | BOP | 2.28 KM |
| Alexandra Palace | 6025 | AAP | 2.92 KM |
| Palmers Green | 6021 | PAL | 3.15 KM |
| Oakleigh Park | 6020 | OKL | 3.83 KM |
Nearby Listings
| Address | Price | Type | Score | Distance |
|---|---|---|---|---|
| Bowes Road, London | £ 400,000 | BUY | 5 / 10 | 0.00 KM |
| Bowes Road, London, N11 | £ 350,000 | BUY | 5 / 10 | 0.07 KM |
| Betstyle Road, London, N11 | £ 675,000 | BUY | 6 / 10 | 0.10 KM |
| Bowes Road, London | £ 425,000 | BUY | 5 / 10 | 0.14 KM |
| The Limes Avenue, London | £ 800,000 | BUY | 6 / 10 | 0.15 KM |
Nearby Properties
| Address | Price | Distance |
|---|---|---|
| 446 Bowes Road | £ 320,000 | 0.00 KM |
| 448a Bowes Road | £ 315,000 | 0.00 KM |
| 418 Bowes Road | £ 334,000 | 0.00 KM |
| 452 Bowes Road | £ 335,000 | 0.00 KM |
| 448 Bowes Road | £ 325,000 | 0.00 KM |