1 Myrtle Cottages, Beaumont, CA5
By C & D Rural
£ 150,000
Reviews
2 out of 5 stars
C & D Rural says ..
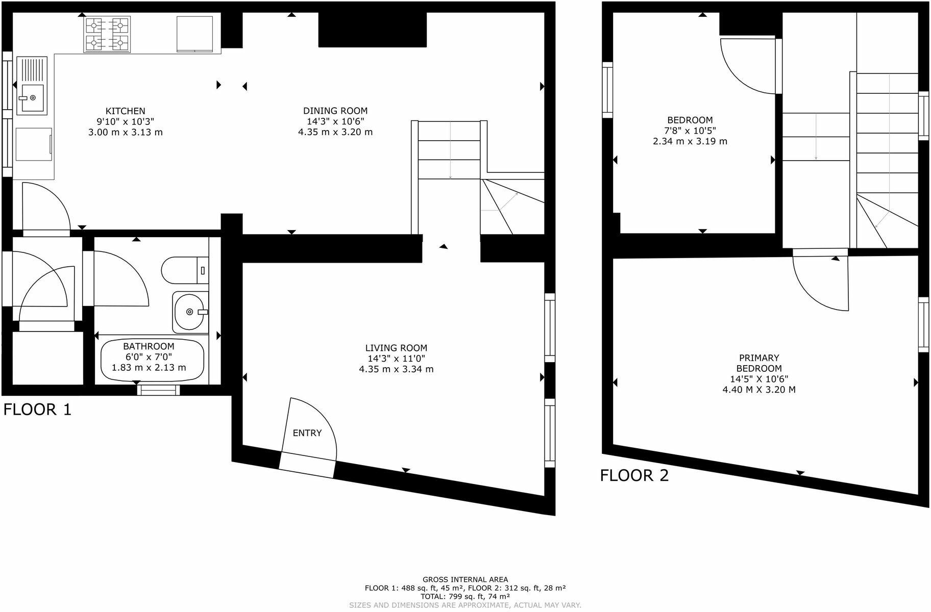
1 Myrtle Cottages is a fantastic property, located in a beautiful village location. The cottage benefits from recent decoration throughout and a newly fitted kitchen. This property would suit a first time buyer, buy to let investor, or the perfect holiday home to escape busy day to day lives.
Property Oracle says ..
This two-bedroom, one-bathroom property located in Beaumont, Cumbria, is presented as a charming cottage. The images showcase a recently updated interior with a modern kitchen and a clean, fresh aesthetic. The property benefits from a rural setting, offering a tranquil environment. The proximity to several well-regarded schools in nearby villages is a positive attribute for families. Access to transportation is available via train stations in Dalston and Gretna Green, although the distances may require car travel. The property’s small garden is a notable limitation, as is the lack of detailed information regarding the property’s age, energy efficiency, and any potential maintenance needs. The asking price appears competitive based on the limited comparable data, but further investigation into local market trends would be beneficial to solidify this assessment. Overall, the property presents a viable option for buyers seeking a renovated cottage in a quiet rural setting, but potential buyers should carefully consider the limited land and distance to more extensive amenities.
Therefore, we give this property 5 / 10. *Disclaimer: This is our option and does constitute a recommendation or financial advice. Do your own research. *
- Price
- 7
- Condition
- 7
- Location
- 6
- Land
- 3
- Bedrooms
- 2
- Bathrooms
- 1
- Sqft (est)
- 796.53
The heatmap indicates the level of crime in the area. The color of the heatmap indicates the crime severity and recency.
Metrics Year-on-Year
- Average area value
- 282,389.00 £Decreased by 5.89 %
- Est sale value
- 326,577.30 £Increased by 16.48 %
- Average area rental value
- 1,083.00 £/moDecreased by 11.16 %
- Est letting value
- 796.53 £/moUnchanged by 0.00 %
- Est rental Yield
- 4.60 %Decreased by 5.74 %
- Crime Rate
- 33.00 %Unchanged by 0.00 %
Agent Activity
C & D Rural created the listing.
Nearby Schools
| Name | Type | Ofsted | Distance |
|---|---|---|---|
| Rockcliffe Cofe School | Voluntary Controlled School | Good | 3.17 KM |
| Burgh By Sands School | Community School | Good | 3.65 KM |
| Yewdale School | Academy Sponsor Led | Good | 5.65 KM |
| Belle Vue Primary School | Community School | Good | 5.81 KM |
| Great Orton Primary School | Community School | Requires improvement | 6.38 KM |
Images
Nearby Transport
| Name | NLC | TLC | Distance |
|---|---|---|---|
| Dalston (Cumbria) | 2077 | DLS | 9.36 KM |
| Gretna Green | 9610 | GEA | 9.90 KM |
Nearby Listings
| Address | Price | Type | Score | Distance |
|---|---|---|---|---|
| 1 Myrtle Cottages, Beaumont, CA5 | £ 150,000 | BUY | 5 / 10 | 0.00 KM |
| Langdale, Beaumont, Carlisle | £ 360,000 | BUY | 6 / 10 | 0.13 KM |
| Braelees, Kirkandrews-On-Eden, Carlisle, CA5 | £ 680,000 | BUY | 7 / 10 | 0.96 KM |
| Harrison Gardens, Burgh-By-Sands, CA5 | £ 375,000 | BUY | 7 / 10 | 0.98 KM |
| Burgh-by-Sands, Carlisle, CA5 | £ 310,000 | BUY | 7 / 10 | 1.08 KM |
Nearby Properties
| Address | Price | Distance |
|---|---|---|
| 1 Braelees | £ 446,000 | 0.95 KM |
| 2 Monkhill Fauld | £ 122,500 | 1.18 KM |
| 3 Monkhill Fauld | £ 196,000 | 1.18 KM |
| 1 Monkhill Fauld | £ 155,000 | 1.19 KM |
| Malindi | £ 275,000 | 2.00 KM |