East Budleigh Road, Budleigh Salterton, Devon
By Bradleys
£ 585,000
Reviews
3 out of 5 stars
Bradleys says ..
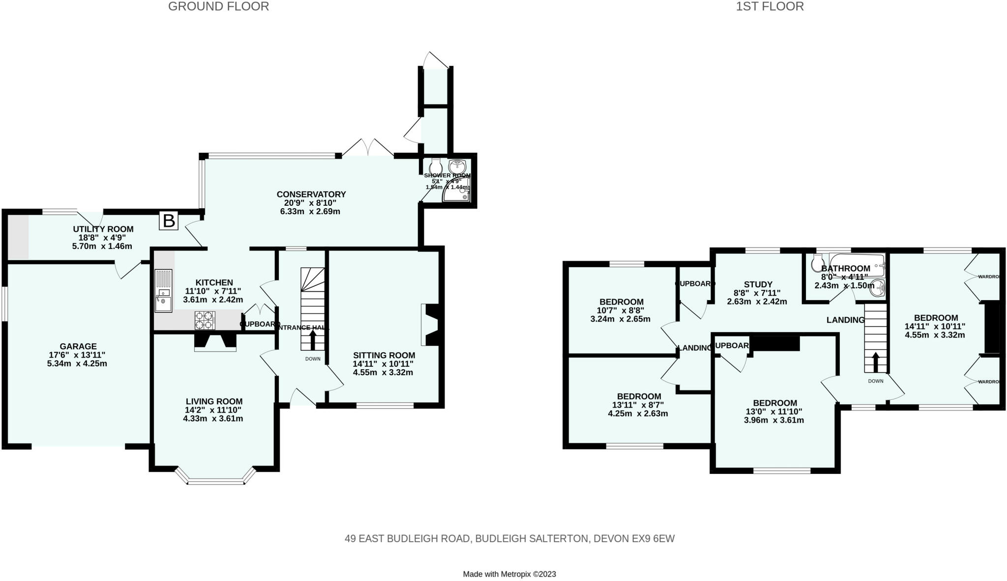
SEMI DETACHED FAMILY HOME An attractive double fronted four bedroom semi-detached family home which has been extended. The property is believed to date back to late 1920's and offers spacious living accommodation benefiting from gas central heating, double glazing, front, side and rear ...
Property Oracle says ..
This four-bedroom, two-bathroom semi-detached house in Budleigh Salterton, Devon, offers a blend of traditional features and some modern updates. The property appears to have undergone some renovations, particularly in the kitchen area which boasts a modern aesthetic. The inclusion of a conservatory adds extra living space. However, some areas could benefit from further modernisation or maintenance. The walls shown in the provided photographs display minor imperfections, and the garden appears manageable in size but could require some landscaping. The property’s location in Budleigh Salterton is desirable, but additional information on local transport links would be beneficial for a fuller evaluation. Overall, this property presents a comfortable family home but prospective buyers should factor in potential renovation or repair costs.
Therefore, we give this property 6 / 10. *Disclaimer: This is our option and does constitute a recommendation or financial advice. Do your own research. *
- Price
- 7
- Condition
- 6
- Location
- 7
- Land
- 5
- Bedrooms
- 4
- Bathrooms
- 2
- Sqft (est)
- 1,636.55
The heatmap indicates the level of crime in the area. The color of the heatmap indicates the crime severity and recency.
Metrics Year-on-Year
- Average area value
- 604,931.00 £Decreased by 0.31 %
- Est sale value
- 774,088.15 £Decreased by 1.05 %
- Average area rental value
- 2,475.00 £/moIncreased by 98.64 %
- Est letting value
- 1,636.55 £/mo
- Est rental Yield
- 4.91 %Increased by 99.59 %
- Crime Rate
- 14.00 %Unchanged by 0.00 %
Agent Activity
Bradleys marked this listing as sold.
Bradleys created the listing.
Nearby Schools
| Name | Type | Ofsted | Distance |
|---|---|---|---|
| St Peter'S Church Of England Primary School | Voluntary Aided School | Good | 1.64 KM |
| Drake'S Church Of England Primary School | Academy Converter | 1.81 KM | |
| Otterton Church Of England Primary School | Academy Converter | 2.97 KM | |
| Mill Water School | Foundation Special School | Good | 3.85 KM |
| Littleham Church Of England Primary School | Voluntary Controlled School | Requires improvement | 6.63 KM |
Images
Nearby Streets
| Name | Average Price | Average Sqft | Distance |
|---|---|---|---|
| Bridge Road | £ 0 | 0 | 0.00 KM |
| South Farm Road | £ 0 | 0 | 0.00 KM |
| Westfield Close | £ 1,250,000 | 0 | 0.00 KM |
| Chapel Hill | £ 975,000 | 0 | 0.00 KM |
| Park's Lane | £ 0 | 0 | 0.00 KM |
Nearby Listings
| Address | Price | Type | Score | Distance |
|---|---|---|---|---|
| East Budleigh Road, Budleigh Salterton, Devon | £ 585,000 | BUY | 6 / 10 | 0.00 KM |
| Maple Mews, East Budleigh Road, Budleigh Salterton, Devon | £ 575,000 | BUY | 5 / 10 | 0.10 KM |
| East Budleigh Road, Budleigh Salterton, EX9 | £ 495,000 | BUY | 7 / 10 | 0.16 KM |
| East Budleigh Road, Budleigh Salterton, Devon | £ 450,000 | BUY | Unknown | 0.16 KM |
| Granary Lane, Budleigh Salterton, EX9 | £ 800,000 | BUY | 7 / 10 | 0.19 KM |
Nearby Properties
| Address | Price | Distance |
|---|---|---|
| 49 East Budleigh Road | £ 346,500 | 0.02 KM |
| 47 East Budleigh Road | £ 550,000 | 0.02 KM |
| 51 East Budleigh Road | £ 269,000 | 0.02 KM |
| 51a East Budleigh Road | £ 325,000 | 0.02 KM |
| 70 East Budleigh Road | £ 845,000 | 0.02 KM |