Street Lane, Gildersome, Morley, Leeds
By Manning Stainton
£ 175,000
Reviews
3 out of 5 stars
Manning Stainton says ..
This beautifully kept two bedroom cottage enjoys a great location within Gildersome village just a short walk to Gildersome Primary School and nearby playing fields, the home is ideal for a first time buyer and is available to view via our Morley Office!
Property Oracle says ..
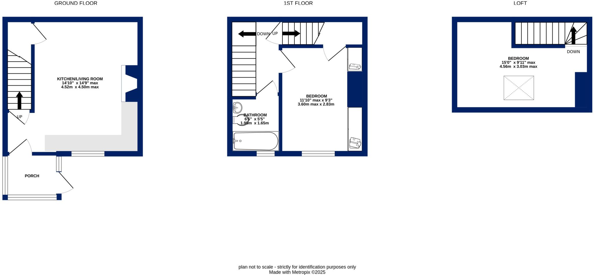
This two-bedroom terraced house in Gildersome, Leeds, is located close to several primary schools, including Birchfield Primary School (rated Good by Ofsted) and Gildersome Primary School (Requires Improvement). The property benefits from a small garden, as shown in the provided images. The house appears to be in good condition, with a recently updated kitchen and bathroom. The list price is significantly below the average price for the area (£175,000 vs. £289,351), however, this is likely due to the smaller size of the property (479 sqft compared to the average of 1057 sqft). While the price per sqft is lower than average, the overall price point may reflect the smaller plot size and the lack of additional features like off-street parking. Nearby properties on Street Lane have sold for prices ranging from £95,000 to £164,950, which provides some context to the listing price. The property is conveniently located within a 4.75km radius of Morley train station, offering easy access to public transportation.
Therefore, we give this property 6 / 10. *Disclaimer: This is our option and does constitute a recommendation or financial advice. Do your own research. *
- Price
- 6
- Condition
- 8
- Location
- 7
- Land
- 4
- Bedrooms
- 2
- Bathrooms
- 1
- Sqft (est)
- 479.21
The heatmap indicates the level of crime in the area. The color of the heatmap indicates the crime severity and recency.
Metrics Year-on-Year
- Average area value
- 321,452.00 £Increased by 21.41 %
- Est sale value
- 165,327.45 £Increased by 22.78 %
- Average area rental value
- 1,085.00 £/moIncreased by 14.94 %
- Est letting value
- 479.21 £/moUnchanged by 0.00 %
- Est rental Yield
- 4.05 %Decreased by 5.37 %
- Crime Rate
- 24.00 %Unchanged by 0.00 %
Agent Activity
Manning Stainton created the listing.
Nearby Schools
| Name | Type | Ofsted | Distance |
|---|---|---|---|
| Birchfield Primary School | Community School | Good | 0.26 KM |
| Gildersome Primary School | Community School | Requires improvement | 0.38 KM |
| Gildersome Children'S Centre | Children's Centre | 0.46 KM | |
| Bruntcliffe Academy | Academy Sponsor Led | Good | 1.89 KM |
| Asquith Primary School | Community School | Good | 2.54 KM |
Images
Nearby Streets
| Name | Average Price | Average Sqft | Distance |
|---|---|---|---|
| Mill Lane | £ 0 | 0 | 0.00 KM |
| Church Gardens | £ 0 | 0 | 0.00 KM |
| Greenfield Drive | £ 0 | 0 | 0.00 KM |
| Chapel View | £ 315,000 | 0 | 0.00 KM |
| Church Avenue | £ 0 | 0 | 0.00 KM |
Nearby Transport
| Name | NLC | TLC | Distance |
|---|---|---|---|
| Morley | 8504 | MLY | 4.75 KM |
| Cottingley | 8505 | COT | 5.21 KM |
| Batley | 8484 | BTL | 5.30 KM |
| Bramley (West Yorkshire) | 8496 | BLE | 5.46 KM |
| Dewsbury | 8326 | DEW | 7.15 KM |
Nearby Listings
| Address | Price | Type | Score | Distance |
|---|---|---|---|---|
| Street Lane, Gildersome, Morley, Leeds | £ 175,000 | BUY | 6 / 10 | 0.00 KM |
| Street Lane, Gildersome, Morley, Leeds | £ 225,000 | BUY | 7 / 10 | 0.04 KM |
| Street Lane, Gildersome, Leeds | £ 225,000 | BUY | 7 / 10 | 0.04 KM |
| Street Lane, Gildersome, Morley, Leeds, LS27 7HY | £ 225,000 | BUY | 7 / 10 | 0.04 KM |
| Street Lane, Gildersome | £ 700,000 | BUY | 6 / 10 | 0.07 KM |
Nearby Properties
| Address | Price | Distance |
|---|---|---|
| 62 Street Lane | £ 95,000 | 0.04 KM |
| 112 - 114 Street Lane | £ 129,000 | 0.04 KM |
| 66 Street Lane | £ 120,000 | 0.04 KM |
| 96 Street Lane | £ 164,950 | 0.04 KM |
| 86 Street Lane | £ 120,000 | 0.04 KM |