GA
Stanger Road, South Norwood, London, SE25
By Galloways
£ 425,000
Reviews
3 out of 5 stars
Galloways says ..
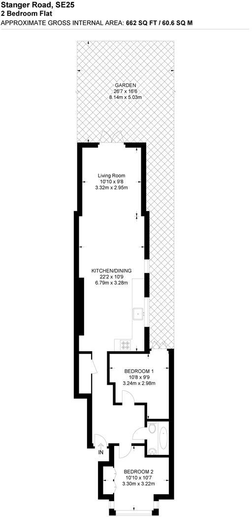
Galloways are delighted to bring to market this beautifully presented two-bedroom ground-floor Victorian conversion flat, ideally located in the heart of South Norwood. This stylish home has been maintained to the highest standards and boasts a stunning open-plan living/reception room complete wi...
Property Oracle says ..
Therefore, we give this property 7 / 10. *Disclaimer: This is our option and does constitute a recommendation or financial advice. Do your own research. *
- Price
- 7
- Condition
- 8
- Location
- 7
- Land
- 7
- Bedrooms
- 2
- Bathrooms
- 1
- Sqft (est)
- 1,004.06
The heatmap indicates the level of crime in the area. The color of the heatmap indicates the crime severity and recency.
Metrics Year-on-Year
- Average area value
- 489,165.00 £Increased by 16.57 %
- Est sale value
- 625,529.38 £Increased by 28.45 %
- Average area rental value
- 1,679.00 £/moDecreased by 8.30 %
- Est letting value
- 2,008.12 £/moUnchanged by 0.00 %
- Est rental Yield
- 4.12 %Decreased by 21.37 %
- Crime Rate
- 7.00 %Unchanged by 0.00 %
from 419,649.00 £
from 486,969.10 £
from 1,831.00 £/mo
from 2,008.12 £/mo
from 5.24 %
from 7.00 %
Agent Activity
Galloways created the listing.
Nearby Schools
| Name | Type | Ofsted | Distance |
|---|---|---|---|
| South Norwood Primary | Academy Sponsor Led | 0.24 KM | |
| Crosfield Nursery School And Children'S Centre | Children's Centre | 0.26 KM | |
| Crosfield Nursery School | Local Authority Nursery School | Good | 0.26 KM |
| St Mark'S Church Of England Primary Academy | Academy Sponsor Led | Good | 0.33 KM |
| Harris Academy South Norwood | Academy Sponsor Led | Outstanding | 0.67 KM |
Images
Nearby Streets
| Name | Average Price | Average Sqft | Distance |
|---|---|---|---|
| Crowther Road | £ 0 | 0 | 0.00 KM |
| Foot path 660 | £ 0 | 0 | 0.00 KM |
| St Mark's Road | £ 220,000 | 0 | 0.00 KM |
| Central Place | £ 0 | 0 | 0.00 KM |
| Merton Road | £ 365,000 | 0 | 0.00 KM |
Nearby Transport
| Name | NLC | TLC | Distance |
|---|---|---|---|
| Norwood Junction | 5376 | NWD | 0.43 KM |
| Anerley | 5397 | ANZ | 1.91 KM |
| Selhurst | 5434 | SRS | 1.91 KM |
| Birkbeck | 5401 | BIK | 1.95 KM |
| Elmers End | 5049 | ELE | 2.44 KM |
Nearby Listings
| Address | Price | Type | Score | Distance |
|---|---|---|---|---|
| Stanger Road, South Norwood, London, SE25 | £ 425,000 | BUY | 7 / 10 | 0.00 KM |
| Crowther Road, South Norwood | £ 425,000 | BUY | 7 / 10 | 0.07 KM |
| Crowther Road, South Norwood | £ 400,000 | BUY | 7 / 10 | 0.07 KM |
| Stanger Road, London | £ 350,000 | BUY | 7 / 10 | 0.08 KM |
| Crowther Road, South Norwood, London, SE25 | £ 325,000 | BUY | 7 / 10 | 0.08 KM |
Nearby Properties
| Address | Price | Distance |
|---|---|---|
| 16a Balfour Road | £ 100,000 | 0.04 KM |
| 20b Balfour Road | £ 74,950 | 0.04 KM |
| 6a Balfour Road | £ 175,000 | 0.04 KM |
| 18 Balfour Road | £ 94,000 | 0.04 KM |
| 6 Balfour Road | £ 295,000 | 0.04 KM |