Eglinton Road, Plumstead, London, SE18
By hi-residential
£ 375,000
Reviews
2 out of 5 stars
hi-residential says ..
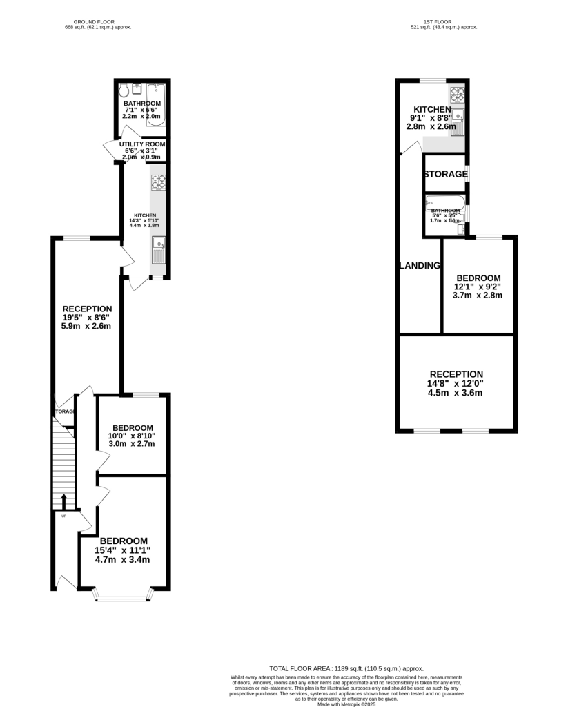
HI Residential are pleased to offer this substantial four-bedroom Victorian semi-detached property, located just a short distance from the shopping amenities of Herbert Road and within walking distance of Woolwich rail links, including the Elizabeth Line, DLR, and National Rail...
Property Oracle says ..
The property is located in Plumstead, London, close to several primary schools and Southeastern rail links. The property is in need of significant modernisation and renovation, with the bathrooms, kitchen, and several rooms showing signs of wear and tear. The garden appears usable. The list price of £375,000 is comparable to the average price in the area, but a precise comparison is impossible without the property’s square footage. The condition of the property might justify the list price, considering the potential value of the land and location.
Therefore, we give this property 5 / 10. *Disclaimer: This is our option and does constitute a recommendation or financial advice. Do your own research. *
- Price
- 6
- Condition
- 3
- Location
- 7
- Land
- 6
- Bedrooms
- 4
- Bathrooms
- 2
The heatmap indicates the level of crime in the area. The color of the heatmap indicates the crime severity and recency.
Metrics Year-on-Year
- Average area value
- 391,291.00 £Decreased by 5.96 %
- Average area rental value
- 1,835.00 £/moDecreased by 4.87 %
- Est rental Yield
- 5.63 %Increased by 1.26 %
- Crime Rate
- 14.00 %Unchanged by 0.00 %
Agent Activity
hi-residential created the listing.
Nearby Schools
| Name | Type | Ofsted | Distance |
|---|---|---|---|
| Notre Dame Catholic Primary School | Voluntary Aided School | Good | 0.20 KM |
| Nightingale Primary School | Academy Converter | 0.44 KM | |
| Eglinton Primary School | Community School | Good | 0.47 KM |
| Eglinton Children'S Centre | Children's Centre | 0.48 KM | |
| Children'S Centre Services At Glyndon | Children's Centre Linked Site | 0.51 KM |
Images
Nearby Streets
| Name | Average Price | Average Sqft | Distance |
|---|---|---|---|
| Ripon Road | £ 425,000 | 0 | 0.00 KM |
| Butterfield Mews | £ 0 | 0 | 0.00 KM |
| Sandy Hill Avenue | £ 400,000 | 0 | 0.00 KM |
| Rose Court | £ 725,000 | 0 | 0.00 KM |
| St. Margaret's Grove | £ 340,000 | 0 | 0.00 KM |
Nearby Transport
| Name | NLC | TLC | Distance |
|---|---|---|---|
| Woolwich Arsenal | 5152 | WWA | 1.11 KM |
| Woolwich Dockyard | 5153 | WWD | 1.97 KM |
| Plumstead | 5208 | PLU | 2.06 KM |
| Falconwood | 5137 | FCN | 2.60 KM |
| Eltham | 5103 | ELW | 3.23 KM |
Nearby Listings
| Address | Price | Type | Score | Distance |
|---|---|---|---|---|
| Eglinton Road, Plumstead, London, SE18 | £ 375,000 | BUY | 5 / 10 | 0.00 KM |
| Herburt Road, London, SE18 | £ 150,000 | BUY | 6 / 10 | 0.09 KM |
| Eglinton Hill, Shooters Hill, London, SE18 | £ 170,000 | BUY | Unknown | 0.09 KM |
| 43 Herbert Road, Plumstead, SE18 | £ 150,000 | BUY | 4 / 10 | 0.09 KM |
| Herbert Road, Plumstead, SE18 3PP | £ 250,000 | BUY | 4 / 10 | 0.10 KM |
Nearby Properties
| Address | Price | Distance |
|---|---|---|
| 8 Westdale Road | £ 90,000 | 0.04 KM |
| 241 Eglinton Road | £ 292,000 | 0.08 KM |
| 251 Eglinton Road | £ 95,000 | 0.08 KM |
| 179 Eglinton Road | £ 148,000 | 0.08 KM |
| 175 Eglinton Road | £ 270,000 | 0.08 KM |