Julie Philpot says ..
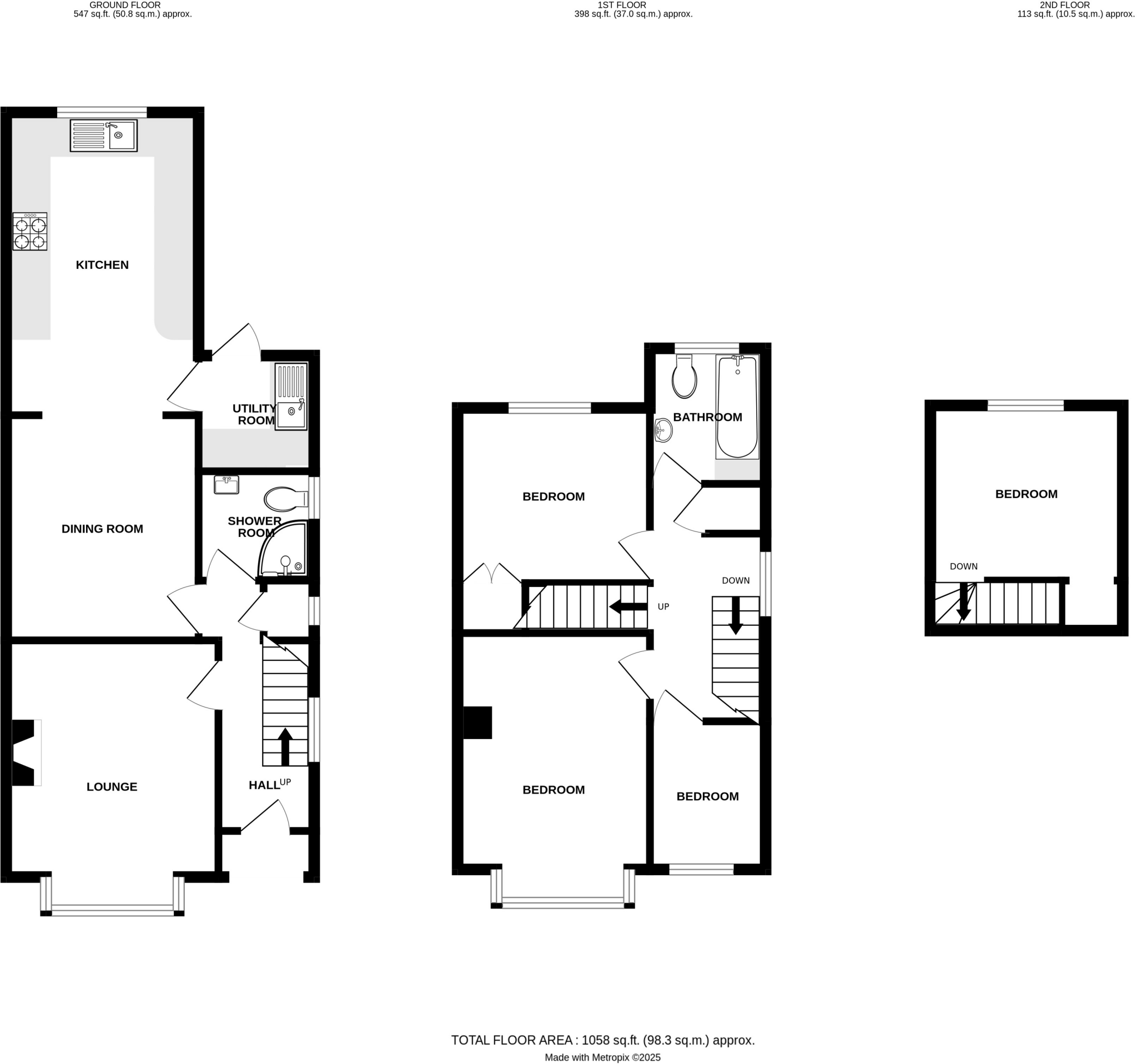
A well planned and extended double-bayed four-bedroom semi-detached home is perfectly positioned within easy reach of Kenilworth town centre, offering convenient access to a wide range of local amenities including shops, cafés, restaurants, Abbey Fields, and Castle Farm. On the ground floor,...
Property Oracle says ..
This is a well-presented semi-detached property located in a sought-after area of Kenilworth. The house offers four bedrooms, two bathrooms, and a good-sized garden. While the property is generally in good condition, some areas could benefit from modernisation. The location is ideal for families, with good schools and amenities nearby. The price is competitive for the area, making it an attractive option for buyers.
Therefore, we give this property 7 / 10. *Disclaimer: This is our option and does constitute a recommendation or financial advice. Do your own research. *
- Price
- 7
- Condition
- 7
- Location
- 8
- Land
- 8
- Bedrooms
- 4
- Bathrooms
- 2
- Sqft (est)
- 1,058.00
The heatmap indicates the level of crime in the area. The color of the heatmap indicates the crime severity and recency.
Metrics Year-on-Year
- Average area value
- 720,833.00 £Increased by 62.68 %
- Est sale value
- 550,160.00 £Increased by 6.34 %
- Average area rental value
- 1,314.00 £/moIncreased by 12.31 %
- Est letting value
- 0.00 £/moDecreased by 100.00 %
- Est rental Yield
- 2.19 %Decreased by 30.91 %
- Crime Rate
- 6.00 %Unchanged by 0.00 %
Agent Activity
Julie Philpot created the listing.
Nearby Schools
| Name | Type | Ofsted | Distance |
|---|---|---|---|
| St John'S Primary School | Community School | Good | 0.29 KM |
| Clinton Primary School | Community School | Outstanding | 0.60 KM |
| Kenilworth Nursery School & Early Years Training Centre | Local Authority Nursery School | Outstanding | 0.89 KM |
| St Nicholas Cofe Primary School | Voluntary Controlled School | Good | 1.24 KM |
| Thorns Community Infant School | Community School | Good | 1.59 KM |
Images
Nearby Streets
| Name | Average Price | Average Sqft | Distance |
|---|---|---|---|
| Essex Close | £ 0 | 0 | 0.00 KM |
| St John's Avenue | £ 0 | 0 | 0.00 KM |
| Farm Road | £ 0 | 0 | 0.00 KM |
| Gypsy Lane | £ 0 | 0 | 0.00 KM |
| Fancott Drive | £ 457,500 | 0 | 0.00 KM |
Nearby Transport
| Name | NLC | TLC | Distance |
|---|---|---|---|
| Kenilworth | 7985 | KNW | 1.15 KM |
| Warwick | 4600 | WRW | 5.71 KM |
| Tile Hill | 1035 | THL | 6.58 KM |
| Warwick Parkway | 8530 | WRP | 6.65 KM |
| Leamington Spa | 4597 | LMS | 7.79 KM |
Nearby Listings
| Address | Price | Type | Score | Distance |
|---|---|---|---|---|
| Oaks Road, Kenilworth | £ 495,000 | BUY | 7 / 10 | 0.00 KM |
| St. Nicholas Avenue, Kenilworth | £ 465,000 | BUY | 6 / 10 | 0.03 KM |
| St. Nicholas Avenue, Kenilworth, Warwickshire, CV8 | £ 300,000 | BUY | 5 / 10 | 0.09 KM |
| Chestnut Avenue, Kenilworth, Warwickshire | £ 380,000 | BUY | 7 / 10 | 0.11 KM |
| St. Nicholas Avenue, Kenilworth, Warwickshire, CV8 | £ 340,000 | BUY | 7 / 10 | 0.14 KM |
Nearby Properties
| Address | Price | Distance |
|---|---|---|
| 51 St Nicholas Avenue | £ 273,000 | 0.08 KM |
| 56 St Nicholas Avenue | £ 510,000 | 0.08 KM |
| 47 St Nicholas Avenue | £ 380,000 | 0.08 KM |
| 39 St Nicholas Avenue | £ 390,000 | 0.08 KM |
| 22 Chestnut Avenue | £ 276,000 | 0.12 KM |