Sandycombe Road, Richmond, TW9
By Chestertons Estate Agents
£ 750,000
Reviews
3 out of 5 stars
Chestertons Estate Agents says ..
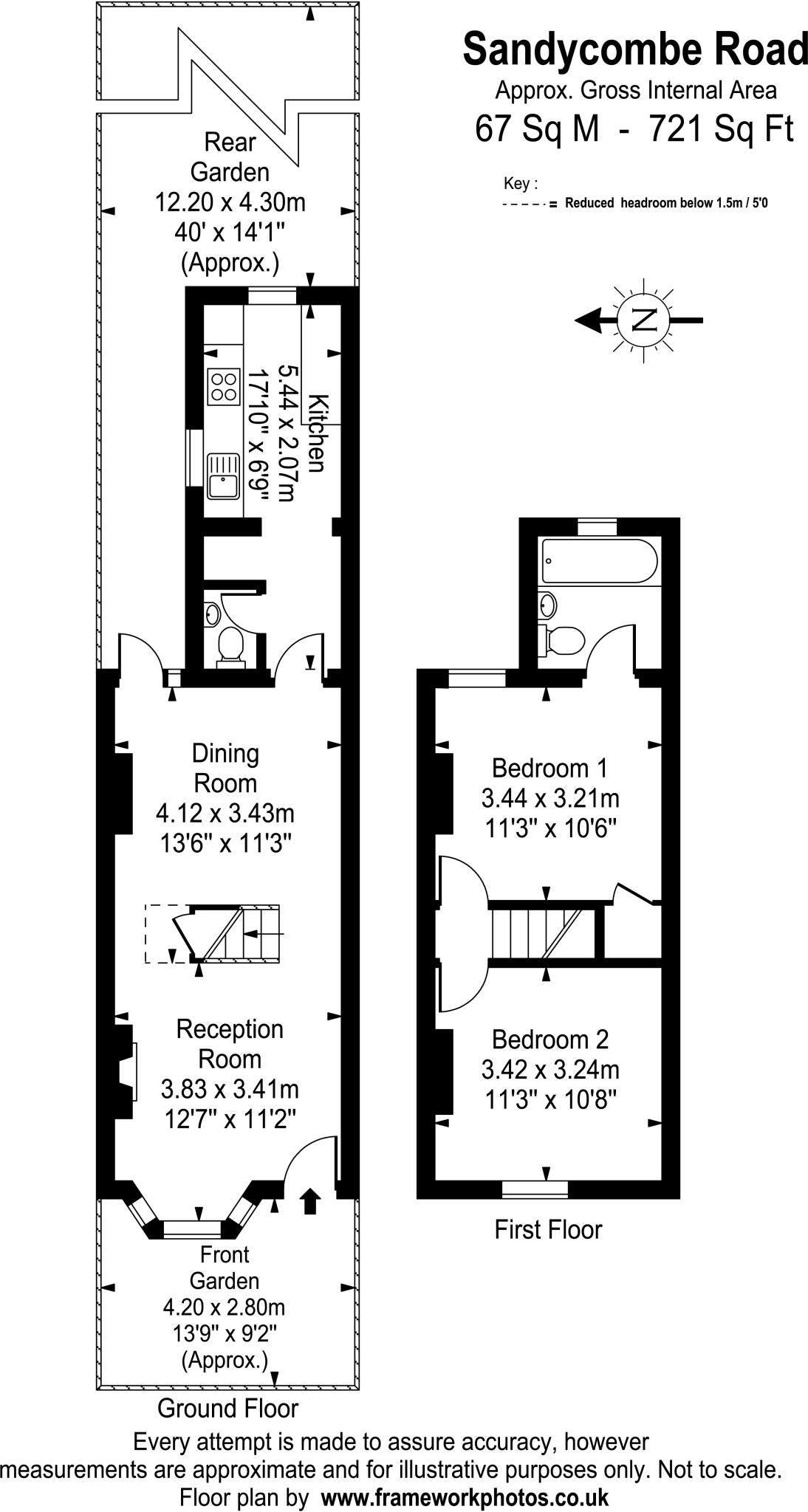
The property benefits from two double bedrooms one with built in wardrobes, a main bathroom with shower over the bath, to the ground floor there is an open plan reception room with ample space for both dining and sitting areas.
Property Oracle says ..
This property is a 2 bedroom house located on Sandycombe Road in Kew, Richmond. The property benefits from being close to several highly-rated schools including Windham Nursery School (Outstanding Ofsted rating) and Holy Trinity Church of England Primary School (Outstanding Ofsted rating). Transportation links are also convenient with North Sheen train station just 0.50 KM away. The property itself appears to be in need of some modernisation and updating, as seen in the provided photographs. The kitchen and bathroom in particular show signs of age. The property includes a garden, which is a desirable feature in this area. While the list price of £750,000 seems high considering the condition of the property, comparable properties in the area are selling for similar prices, suggesting that location is a significant factor in determining value. More information on the square footage of comparable properties would be needed to make a more informed judgement on the price per square foot.
Therefore, we give this property 7 / 10. *Disclaimer: This is our option and does constitute a recommendation or financial advice. Do your own research. *
- Price
- 6
- Condition
- 6
- Location
- 9
- Land
- 7
- Bedrooms
- 2
- Bathrooms
- 1
- Sqft (est)
- 721.18
The heatmap indicates the level of crime in the area. The color of the heatmap indicates the crime severity and recency.
Metrics Year-on-Year
- Average area value
- 566,147.00 £Decreased by 10.07 %
- Est sale value
- 344,002.86 £Decreased by 13.11 %
- Average area rental value
- 3,400.00 £/moIncreased by 28.11 %
- Est letting value
- 1,442.36 £/moUnchanged by 0.00 %
- Est rental Yield
- 7.21 %Increased by 42.49 %
- Crime Rate
- 5.00 %Unchanged by 0.00 %
Agent Activity
Chestertons Estate Agents created the listing.
Nearby Schools
| Name | Type | Ofsted | Distance |
|---|---|---|---|
| Windham Croft Children'S Centre | Children's Centre Linked Site | 0.23 KM | |
| Windham Nursery School | Local Authority Nursery School | Outstanding | 0.24 KM |
| Darell Primary And Nursery School | Community School | Good | 0.37 KM |
| Holy Trinity Church Of England Primary School | Voluntary Aided School | Outstanding | 0.78 KM |
| Unicorn School | Other Independent School | 0.83 KM |
Images
Nearby Streets
| Name | Average Price | Average Sqft | Distance |
|---|---|---|---|
| Walpole Avenue | £ 0 | 0 | 0.00 KM |
| Cranleigh Court | £ 0 | 0 | 0.00 KM |
| Canberra Place | £ 440,000 | 0 | 0.00 KM |
| Station Avenue | £ 1,500,000 | 0 | 0.00 KM |
| Peldon Passage | £ 0 | 0 | 0.00 KM |
Nearby Transport
| Name | NLC | TLC | Distance |
|---|---|---|---|
| North Sheen | 5601 | NSH | 0.50 KM |
| Kew Gardens | 5594 | KWG | 0.88 KM |
| Richmond | 5570 | RMD | 1.69 KM |
| Kew Bridge | 5593 | KWB | 2.21 KM |
| Mortlake | 5600 | MTL | 2.29 KM |
Nearby Listings
| Address | Price | Type | Score | Distance |
|---|---|---|---|---|
| Sandycombe Road, Richmond, TW9 | £ 750,000 | BUY | 7 / 10 | 0.00 KM |
| Sandycombe Road, Kew, Surrey, TW9 | £ 660,000 | BUY | Unknown | 0.00 KM |
| Sandycombe Road, Richmond, TW9 | £ 350,000 | BUY | 6 / 10 | 0.01 KM |
| Sandycombe Road, Richmond, TW9 | £ 475,000 | BUY | 6 / 10 | 0.01 KM |
| Sandycombe Road, Kew, TW9 | £ 989,000 | BUY | 6 / 10 | 0.01 KM |
Nearby Properties
| Address | Price | Distance |
|---|---|---|
| 81 Sandycombe Road | £ 740,000 | 0.01 KM |
| 33 Sandycombe Road | £ 935,000 | 0.01 KM |
| 69 Sandycombe Road | £ 916,500 | 0.01 KM |
| 95 Sandycombe Road | £ 960,000 | 0.01 KM |
| 29 Sandycombe Road | £ 755,000 | 0.01 KM |