Revell Road, Cheam, SM1
By James Bailey Sales & Lettings
£ 850,000
Reviews
4 out of 5 stars
James Bailey Sales & Lettings says ..
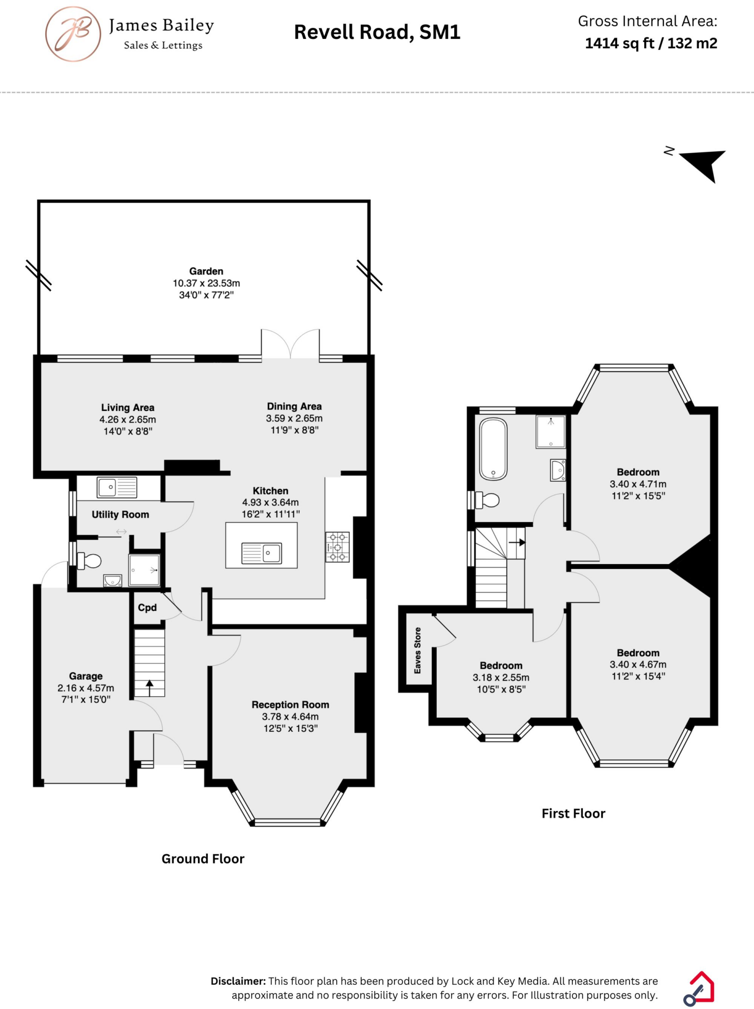
James Bailey is proud to present this sensational three double bedroom semi-detached home. The property has recently been renovated throughout (including new electrics, boiler and plumbing) and boasts 1,414 square feet of living accommodation offering a large reception room, a stunning modern kit...
Property Oracle says ..
The property is a 3-bedroom, 2-bathroom semi-detached house located on Revell Road, Cheam, in the London Borough of Sutton. It has a list price of £850,000 and a plot size of 1,420.84 sqft. The internal living space is 1,168.85 sqft.
The property appears to be in excellent condition, having undergone a recent and tasteful modernisation. The kitchen and bathrooms are modern and well-equipped. The images show a well-maintained garden and patio area, suggesting a good level of outdoor space. The location is convenient, with nearby schools and transport links. Cheam train station is within walking distance, providing easy access to London. Several highly-rated schools are also within a reasonable distance.
Considering the average house price in the area is £490,182 and the average price per sqft is £638, this property’s price per sqft is higher, reflecting its superior condition and larger plot size. The nearby comparable properties support this higher price point, although the lack of sqft data for those properties limits a precise comparison. The property benefits from a larger than average plot size, adding to its value.
The property is well presented and benefits from a good location and a well-maintained garden. The list price reflects these factors, although it is higher than the average for the area.
Therefore, we give this property 8 / 10. *Disclaimer: This is our option and does constitute a recommendation or financial advice. Do your own research. *
- Price
- 7
- Condition
- 9
- Location
- 9
- Land
- 8
- Bedrooms
- 3
- Bathrooms
- 2
- Sqft (est)
- 1,168.85
- Lot (est)
- 1,420.84
The heatmap indicates the level of crime in the area. The color of the heatmap indicates the crime severity and recency.
Metrics Year-on-Year
- Average area value
- 781,250.00 £Increased by 63.97 %
- Est sale value
- 897,676.80 £Increased by 17.07 %
- Average area rental value
- 1,520.00 £/moDecreased by 16.44 %
- Est letting value
- 1,168.85 £/moDecreased by 50.00 %
- Est rental Yield
- 2.33 %Decreased by 49.13 %
- Crime Rate
- 1.00 %Unchanged by 0.00 %
Agent Activity
James Bailey Sales & Lettings created the listing.
Nearby Schools
| Name | Type | Ofsted | Distance |
|---|---|---|---|
| Thomas Wall Nursery Children'S Centre (Sutton Central West) | Children's Centre | 0.78 KM | |
| Homefield Preparatory School | Other Independent School | 0.80 KM | |
| The Limes College | Academy Alternative Provision Converter | 1.07 KM | |
| Cheam High School | Academy Converter | Outstanding | 1.08 KM |
| Robin Hood Infants' School | Community School | Outstanding | 1.09 KM |
Images
Nearby Streets
| Name | Average Price | Average Sqft | Distance |
|---|---|---|---|
| Osprey Close | £ 0 | 0 | 0.00 KM |
| Stafford Close | £ 900,000 | 0 | 0.00 KM |
| Church Farm Road | £ 0 | 0 | 0.00 KM |
| Hillside Road | £ 0 | 0 | 0.00 KM |
| Cornwall Road | £ 1,272,500 | 0 | 0.00 KM |
Nearby Transport
| Name | NLC | TLC | Distance |
|---|---|---|---|
| Cheam | 5352 | CHE | 0.71 KM |
| West Sutton | 5293 | WSU | 0.81 KM |
| Sutton | 5385 | SUO | 2.10 KM |
| Sutton Common | 5436 | SUC | 2.21 KM |
| Belmont | 5350 | BLM | 2.24 KM |
Nearby Listings
| Address | Price | Type | Score | Distance |
|---|---|---|---|---|
| Revell Road, Cheam, SM1 | £ 850,000 | BUY | 8 / 10 | 0.00 KM |
| Revell Road, Cheam, | £ 825,000 | BUY | 7 / 10 | 0.02 KM |
| Quarry Park Road, Cheam | £ 775,000 | BUY | Unknown | 0.06 KM |
| Quarry Park Road, Cheam, SM1 | £ 1,000,000 | BUY | 7 / 10 | 0.07 KM |
| Grebe Court, Sandpiper Road, Cheam, Sutton | £ 325,000 | BUY | 7 / 10 | 0.16 KM |
Nearby Properties
| Address | Price | Distance |
|---|---|---|
| 27 Revell Road | £ 600,000 | 0.07 KM |
| 19 Revell Road | £ 290,000 | 0.07 KM |
| 11 Revell Road | £ 530,000 | 0.07 KM |
| 16 Revell Road | £ 450,000 | 0.07 KM |
| 88 Quarry Park Road | £ 499,950 | 0.08 KM |