Turnbull Road, Longsight, Manchester, M13
By Lancashire Properties
£ 290,000
Reviews
3 out of 5 stars
Lancashire Properties says ..
** IDEAL EXTENDED FAMILY HOME *** THREE GOOD SIZED BEDROOMS *** FAMILY BATHROOM *** GROUND FLOOR W.C. *** LARGE REAR GARDEN *** SIDE STORAGE SHED *** DOUBLE GLAZING *** GAS CENTERAL HEATING *** CLOSE TO ALL AMENITIES *** CENTRALLY LOCATED TO SCHOOLS *** EXCELLENT TRANSPORT NETWORK *** NO CHAIN **
Property Oracle says ..
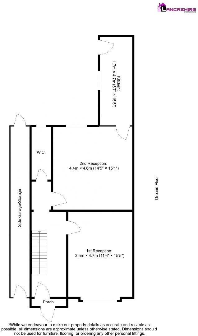
This is a three-bedroom semi-detached property located on Turnbull Road, Longsight, Manchester. While the location offers good access to local amenities and transport links, the property itself requires significant renovation. The interior is dated, with worn carpets and outdated fixtures. However, the property benefits from a garden, adding to its appeal. The asking price of £290,000 appears high considering the condition and the average price per square foot in the area.
Therefore, we give this property 6 / 10. *Disclaimer: This is our option and does constitute a recommendation or financial advice. Do your own research. *
- Price
- 6
- Condition
- 4
- Location
- 7
- Land
- 7
- Bedrooms
- 3
- Bathrooms
- 1
- Sqft (est)
- 480.93
The heatmap indicates the level of crime in the area. The color of the heatmap indicates the crime severity and recency.
Metrics Year-on-Year
- Average area value
- 259,000.00 £Decreased by 16.45 %
- Est sale value
- 196,700.37 £Increased by 42.01 %
- Average area rental value
- 888.00 £/moDecreased by 19.13 %
- Est letting value
- 480.93 £/moUnchanged by 0.00 %
- Est rental Yield
- 4.11 %Decreased by 3.29 %
- Crime Rate
- 2.00 %Unchanged by 0.00 %
Agent Activity
Lancashire Properties created the listing.
Nearby Schools
| Name | Type | Ofsted | Distance |
|---|---|---|---|
| Longsight Community Primary | Free Schools | Good | 0.37 KM |
| Longsight Sure Start Children'S Centre | Children's Centre | 0.37 KM | |
| St Agnes C Of E Primary School | Voluntary Controlled School | Requires improvement | 0.57 KM |
| Manchester Enterprise Academy Central | Free Schools | 0.61 KM | |
| Birchfields Primary School | Community School | Good | 0.78 KM |
Images
Nearby Streets
| Name | Average Price | Average Sqft | Distance |
|---|---|---|---|
| Turnbull Road | £ 0 | 0 | 0.00 KM |
| Montgomery Road | £ 0 | 0 | 0.00 KM |
| Farrer Road | £ 0 | 0 | 0.00 KM |
| Montrose Crescent | £ 475,000 | 0 | 0.00 KM |
| Victoria Road | £ 0 | 0 | 0.00 KM |
Nearby Transport
| Name | NLC | TLC | Distance |
|---|---|---|---|
| Levenshulme | 2862 | LVM | 0.95 KM |
| Mauldeth Road | 2867 | MAU | 2.12 KM |
| Ashburys | 2941 | ABY | 2.53 KM |
| Belle Vue | 2785 | BLV | 2.54 KM |
| Ardwick | 2960 | ADK | 2.92 KM |
Nearby Listings
| Address | Price | Type | Score | Distance |
|---|---|---|---|---|
| Turnbull Road, Longsight, Manchester, M13 | £ 290,000 | BUY | 6 / 10 | 0.00 KM |
| Turnbull Road, Manchester, M13 | £ 295,000 | BUY | 5 / 10 | 0.05 KM |
| Reynell Road, Manchester M13 0PU | £ 244,950 | BUY | 5 / 10 | 0.07 KM |
| Reynell Road, Longsight | £ 250,000 | BUY | 5 / 10 | 0.10 KM |
| Reynell Road, Manchester, M13 | £ 335,000 | BUY | 5 / 10 | 0.11 KM |
Nearby Properties
| Address | Price | Distance |
|---|---|---|
| 29 Turnbull Road | £ 315,000 | 0.01 KM |
| 19 Turnbull Road | £ 43,000 | 0.01 KM |
| 33 Turnbull Road | £ 160,000 | 0.01 KM |
| 13 Turnbull Road | £ 300,000 | 0.01 KM |
| 17 Turnbull Road | £ 119,950 | 0.02 KM |