Delisa Miller says ..
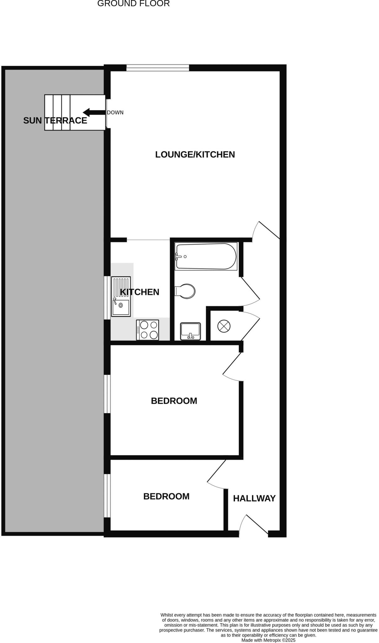
NO CHAIN! Delisa Miller are pleased to introduce his spacious and well presented two bedroom modern apartment is located on the first floor of the highly sought after development. The property can be found on the Hulme High Street. Hulme Indoor Market, Asda superstore and the local leisure centr...
Property Oracle says ..
Therefore, we give this property 6 / 10. *Disclaimer: This is our option and does constitute a recommendation or financial advice. Do your own research. *
- Price
- 8
- Condition
- 6
- Location
- 7
- Land
- 4
- Bedrooms
- 2
- Bathrooms
- 1
- Sqft (est)
- 775.00
The heatmap indicates the level of crime in the area. The color of the heatmap indicates the crime severity and recency.
Metrics Year-on-Year
- Average area value
- 268,192.00 £Increased by 9.79 %
- Est sale value
- 434,775.00 £Increased by 99.64 %
- Average area rental value
- 1,437.00 £/moDecreased by 10.24 %
- Est letting value
- 2,325.00 £/moIncreased by 200.00 %
- Est rental Yield
- 6.43 %Decreased by 18.19 %
- Crime Rate
- 6.00 %Unchanged by 0.00 %
from 244,276.00 £
from 217,775.00 £
from 1,601.00 £/mo
from 775.00 £/mo
from 7.86 %
from 6.00 %
Agent Activity
Delisa Miller created the listing.
Nearby Schools
| Name | Type | Ofsted | Distance |
|---|---|---|---|
| Included | Other Independent Special School | Good | 0.42 KM |
| Loreto College | Further Education | Outstanding | 0.47 KM |
| Rolls Crescent Primary School | Academy Converter | 0.50 KM | |
| Moss Side Sure Start Children'S Centre | Children's Centre | 0.59 KM | |
| St Mary'S Cofe Junior And Infant School | Voluntary Controlled School | Outstanding | 0.78 KM |
Images
Nearby Streets
| Name | Average Price | Average Sqft | Distance |
|---|---|---|---|
| Sewerby Close | £ 0 | 0 | 0.00 KM |
| Rawkin Close | £ 0 | 0 | 0.00 KM |
| Whitnall Street | £ 0 | 0 | 0.00 KM |
| Old York Street | £ 0 | 0 | 0.00 KM |
| Moss Grove Court | £ 0 | 0 | 0.00 KM |
Nearby Transport
| Name | NLC | TLC | Distance |
|---|---|---|---|
| Deansgate | 2963 | DGT | 1.48 KM |
| Manchester Oxford Road | 2966 | MCO | 1.64 KM |
| Salford Central | 2798 | SFD | 2.54 KM |
| Manchester Piccadilly | 2968 | MAN | 2.71 KM |
| Manchester Victoria | 2970 | MCV | 3.03 KM |
Nearby Listings
| Address | Price | Type | Score | Distance |
|---|---|---|---|---|
| Betsham Street, Hulme | £ 159,950 | BUY | 6 / 10 | 0.00 KM |
| Betsham Street, Manchester, Greater Manchester, M15 | £ 145,000 | BUY | 5 / 10 | 0.03 KM |
| Hulme High Street, Manchester | £ 155,000 | BUY | 6 / 10 | 0.05 KM |
| Hulme High Street, Hulme, Manchester | £ 160,000 | BUY | 6 / 10 | 0.05 KM |
| Peregrine Street, Manchester, Greater Manchester, M15 | £ 270,000 | BUY | 6 / 10 | 0.06 KM |
Nearby Properties
| Address | Price | Distance |
|---|---|---|
| 12 Betsham Street | £ 129,950 | 0.01 KM |
| 16 Betsham Street | £ 149,950 | 0.01 KM |
| 38 Betsham Street | £ 159,950 | 0.01 KM |
| 21 Betsham Street | £ 170,000 | 0.01 KM |
| 4 Betsham Street | £ 160,000 | 0.01 KM |