GI
Canbury Park Road, Kingston Upon Thames
By Gibson Lane
£ 450,000
Reviews
3 out of 5 stars
Gibson Lane says ..
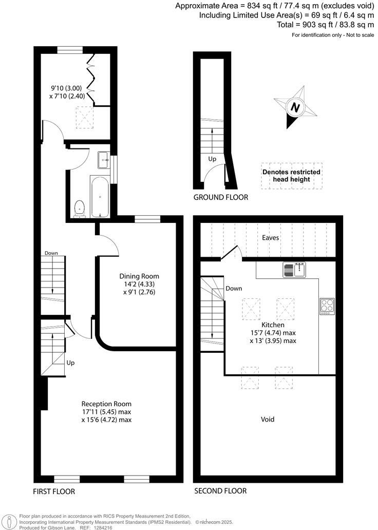
Nestled on the charming Canbury Park Road in Kingston Upon Thames, this delightful split-level Victorian conversion flat offers a perfect blend of character and modern living. Spanning over 800 square feet, the property boasts two well-proportioned bedrooms, making it an ideal choice for couples,...
Property Oracle says ..
Therefore, we give this property 7 / 10. *Disclaimer: This is our option and does constitute a recommendation or financial advice. Do your own research. *
- Price
- 9
- Condition
- 8
- Location
- 9
- Land
- 3
- Bedrooms
- 2
- Bathrooms
- 1
- Sqft (est)
- 903.00
- Lot (est)
- 903.00
The heatmap indicates the level of crime in the area. The color of the heatmap indicates the crime severity and recency.
Metrics Year-on-Year
- Average area value
- 669,998.00 £Increased by 0.45 %
- Est sale value
- 726,012.00 £Increased by 16.35 %
- Average area rental value
- 2,375.00 £/moIncreased by 1.37 %
- Est letting value
- 1,806.00 £/moUnchanged by 0.00 %
- Est rental Yield
- 4.25 %Increased by 0.71 %
- Crime Rate
- 3.00 %Unchanged by 0.00 %
from 666,995.00 £
from 623,973.00 £
from 2,343.00 £/mo
from 1,806.00 £/mo
from 4.22 %
from 3.00 %
Agent Activity
Gibson Lane created the listing.
Nearby Schools
| Name | Type | Ofsted | Distance |
|---|---|---|---|
| Tiffin School | Academy Converter | 0.16 KM | |
| St Luke'S Cofe Primary School | Foundation School | Outstanding | 0.31 KM |
| Kingston Grammar School | Other Independent School | 0.32 KM | |
| Educare Small School | Other Independent School | Good | 0.36 KM |
| St Joseph'S Catholic Primary School | Voluntary Aided School | Good | 0.53 KM |
Images
Nearby Streets
| Name | Average Price | Average Sqft | Distance |
|---|---|---|---|
| John Austin Close | £ 0 | 0 | 0.00 KM |
| Lovekyn Close | £ 0 | 0 | 0.00 KM |
| Elm Crescent | £ 0 | 0 | 0.00 KM |
| Queen Elizabeth Road | £ 0 | 0 | 0.00 KM |
| David Twigg Close | £ 0 | 0 | 0.00 KM |
Nearby Transport
| Name | NLC | TLC | Distance |
|---|---|---|---|
| Kingston | 5565 | KNG | 0.54 KM |
| Norbiton | 5568 | NBT | 1.36 KM |
| Hampton Wick | 5589 | HMW | 1.80 KM |
| Berrylands | 5581 | BRS | 2.33 KM |
| Surbiton | 5571 | SUR | 2.45 KM |
Nearby Listings
| Address | Price | Type | Score | Distance |
|---|---|---|---|---|
| Canbury Park Road, Kingston Upon Thames | £ 450,000 | BUY | 7 / 10 | 0.00 KM |
| Canbury Park Road, Kingston Upon Thames | £ 400,000 | BUY | Unknown | 0.01 KM |
| John Austin Close, Kingston Upon Thames | £ 425,000 | BUY | 6 / 10 | 0.07 KM |
| John Austin Close, Kingston upon Thames, KT2 | £ 425,000 | BUY | 6 / 10 | 0.07 KM |
| Riverstone Court, Kingston | £ 165,000 | BUY | 5 / 10 | 0.09 KM |
Nearby Properties
| Address | Price | Distance |
|---|---|---|
| 114 Canbury Park Road | £ 185,000 | 0.07 KM |
| 118a Canbury Park Road | £ 200,000 | 0.07 KM |
| 122b Canbury Park Road | £ 365,000 | 0.07 KM |
| 118 Canbury Park Road | £ 150,000 | 0.07 KM |
| 102 Canbury Park Road | £ 207,500 | 0.07 KM |