Farmers Way, Copmanthorpe, YO23
By Wishart Estate Agents
£ 350,000
Reviews
3 out of 5 stars
Wishart Estate Agents says ..
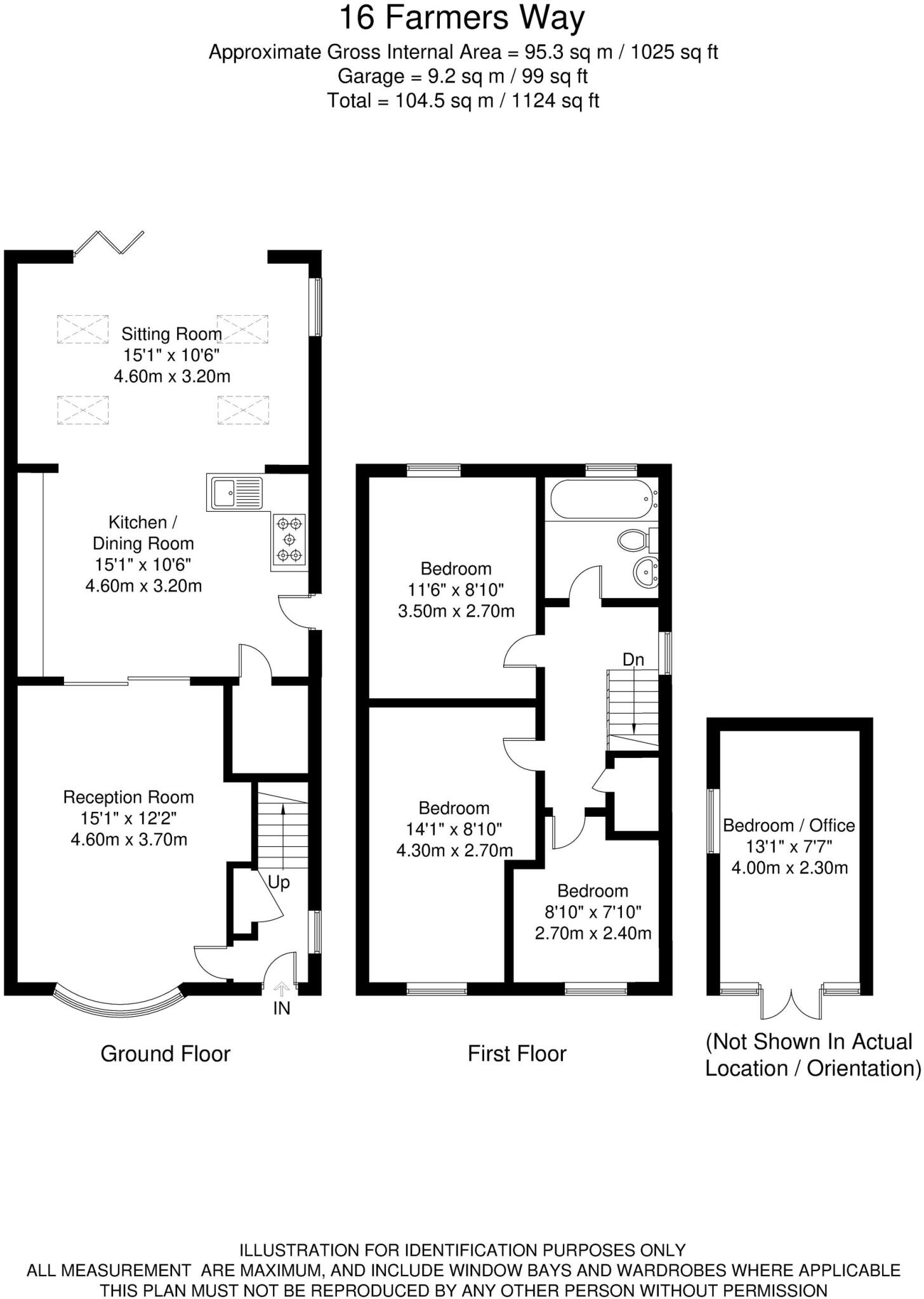
Wishart Estate Agents are delighted to present this extended detached three-bedroom property in the sought-after village of Copmanthorpe. The property offers spacious open-plan living accommodation, three well-proportioned bedrooms, a newly fitted modern bathroom, and a versatile garden room.
Property Oracle says ..
This is a well-presented detached property in the village of Copmanthorpe. The house benefits from a modern extension with bi-fold doors leading to the garden. The property is located close to local schools and amenities, making it suitable for families. While the garden is not overly large, it offers a functional outdoor space. The price appears to be in line with similar properties in the area.
Therefore, we give this property 7 / 10. *Disclaimer: This is our option and does constitute a recommendation or financial advice. Do your own research. *
- Price
- 7
- Condition
- 8
- Location
- 7
- Land
- 6
- Bedrooms
- 3
- Bathrooms
- 1
The heatmap indicates the level of crime in the area. The color of the heatmap indicates the crime severity and recency.
Metrics Year-on-Year
- Average area value
- 591,875.00 £Increased by 5.13 %
- Average area rental value
- 1,194.00 £/moDecreased by 3.63 %
- Est rental Yield
- 2.42 %Decreased by 8.33 %
- Crime Rate
- 3.00 %Unchanged by 0.00 %
Agent Activity
Wishart Estate Agents created the listing.
Nearby Schools
| Name | Type | Ofsted | Distance |
|---|---|---|---|
| Copmanthorpe Primary School | Community School | Good | 0.27 KM |
| Woodthorpe Primary School | Academy Converter | 2.33 KM | |
| Askham Bryan College | Further Education | Good | 2.96 KM |
| York College | Further Education | Outstanding | 3.23 KM |
| York High School | Academy Sponsor Led | 3.60 KM |
Images
Nearby Streets
| Name | Average Price | Average Sqft | Distance |
|---|---|---|---|
| Fletcher's Croft | £ 0 | 0 | 0.00 KM |
| Saint Giles Way | £ 290,000 | 0 | 0.00 KM |
| Church Street | £ 425,000 | 0 | 0.00 KM |
| Station Road | £ 325,000 | 0 | 0.00 KM |
| Saint Nicholas Crescent | £ 425,000 | 0 | 0.00 KM |
Nearby Transport
| Name | NLC | TLC | Distance |
|---|---|---|---|
| York | 8263 | YRK | 6.52 KM |
| Poppleton | 8254 | POP | 6.76 KM |
Nearby Listings
| Address | Price | Type | Score | Distance |
|---|---|---|---|---|
| Farmers Way, Copmanthorpe, YO23 | £ 350,000 | BUY | 7 / 10 | 0.00 KM |
| Sawyers Crescent, Copmanthorpe, York | £ 350,000 | BUY | 8 / 10 | 0.10 KM |
| Ostlers Close, Copmanthorpe, York | £ 240,000 | BUY | 7 / 10 | 0.21 KM |
| Waggoners Drive, Copmanthorpe, YO23 | £ 415,000 | BUY | 7 / 10 | 0.21 KM |
| Fletchers Croft, Copmanthorpe, York | £ 200,000 | BUY | 6 / 10 | 0.27 KM |
Nearby Properties
| Address | Price | Distance |
|---|---|---|
| 5 Farmers Way | £ 201,500 | 0.02 KM |
| 16 Farmers Way | £ 285,000 | 0.02 KM |
| 2 Farmers Way | £ 399,950 | 0.02 KM |
| 11 Farmers Way | £ 206,000 | 0.02 KM |
| 14 Farmers Way | £ 229,950 | 0.02 KM |