May's says ..
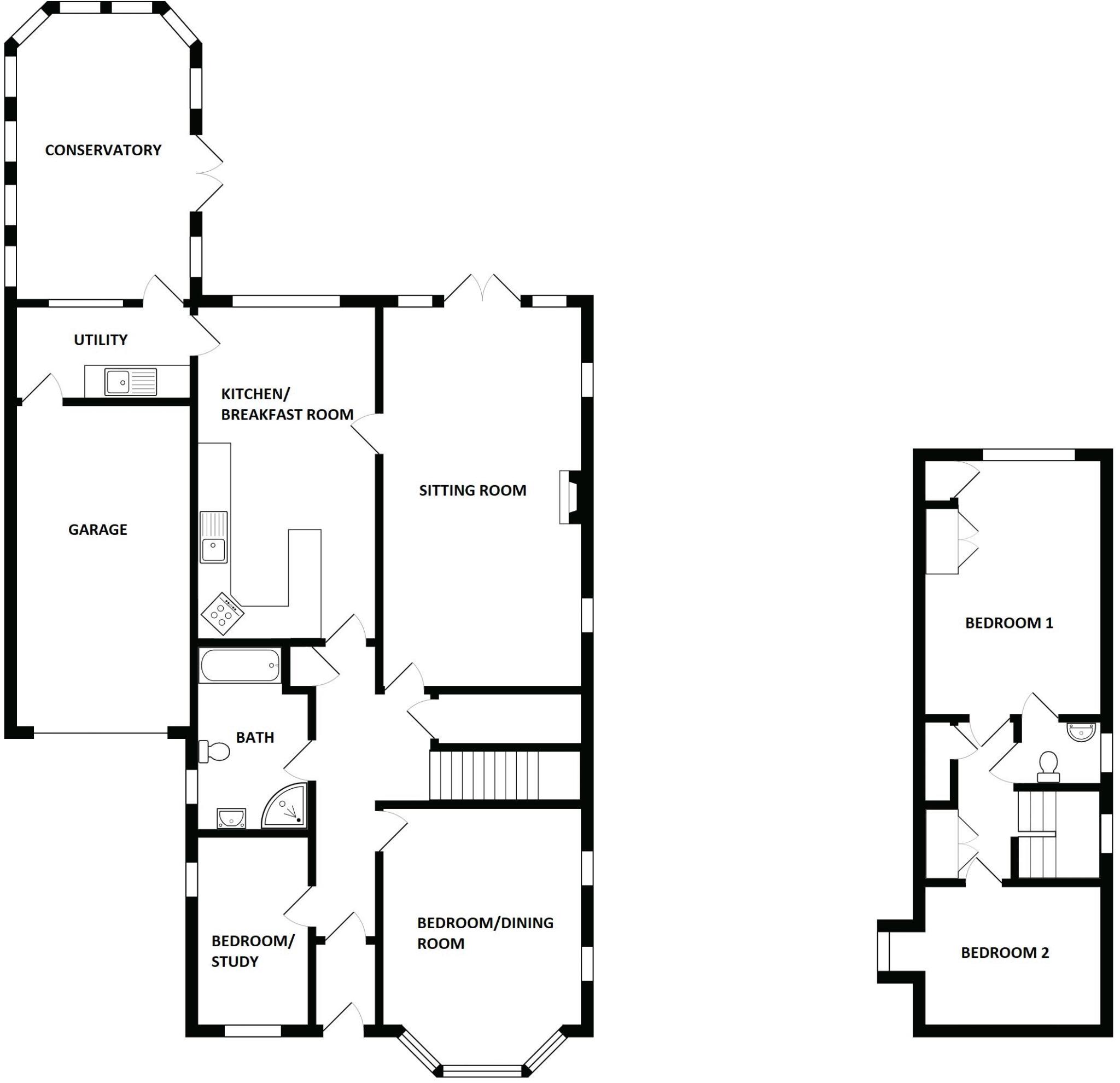
Whether you are a young family wanting to move up the property ladder or perhaps an older buyer looking for their ultimate later life home perhaps this modernised and extended DETACHED CHALET STYLE BUNGALOW might suit your needs. Significantly improved by the present owners this property has been...
Property Oracle says ..
Therefore, we give this property 8 / 10. *Disclaimer: This is our option and does constitute a recommendation or financial advice. Do your own research. *
- Price
- 9
- Condition
- 7
- Location
- 8
- Land
- 8
- Bedrooms
- 4
- Bathrooms
- 1
- Sqft (est)
- 1,556.00
The heatmap indicates the level of crime in the area. The color of the heatmap indicates the crime severity and recency.
Metrics Year-on-Year
- Average area value
- 636,667.00 £Decreased by 17.62 %
- Est sale value
- 1,719,380.00 £Increased by 98.38 %
- Average area rental value
- 2,030.00 £/moIncreased by 3.89 %
- Est letting value
- 4,668.00 £/moIncreased by 200.00 %
- Est rental Yield
- 3.83 %Increased by 26.40 %
- Crime Rate
- 6.00 %Unchanged by 0.00 %
from 772,798.00 £
from 866,692.00 £
from 1,954.00 £/mo
from 1,556.00 £/mo
from 3.03 %
from 6.00 %
Agent Activity
May's created the listing.
Nearby Schools
| Name | Type | Ofsted | Distance |
|---|---|---|---|
| Treehouse Children & Family Centre (Bersted) | Children's Centre | 0.59 KM | |
| The Regis School | Academy Sponsor Led | Good | 0.63 KM |
| Bersted Green Primary School, Bognor Regis | Community School | Good | 0.71 KM |
| Bartons Primary School, Bognor Regis | Community School | Good | 0.89 KM |
| Southway Primary School | Academy Sponsor Led | Requires improvement | 0.94 KM |
Images
Nearby Streets
| Name | Average Price | Average Sqft | Distance |
|---|---|---|---|
| Charnwood Road | £ 500,000 | 0 | 0.00 KM |
| Sherwood Close | £ 0 | 0 | 0.00 KM |
| Romney Broadwalk | £ 332,500 | 0 | 0.00 KM |
| Chichester Road | £ 316,667 | 0 | 0.00 KM |
| Hawthorn Road | £ 265,000 | 0 | 0.00 KM |
Nearby Transport
| Name | NLC | TLC | Distance |
|---|---|---|---|
| Bognor Regis | 5253 | BOG | 1.55 KM |
| Barnham | 5252 | BAA | 6.38 KM |
Nearby Listings
| Address | Price | Type | Score | Distance |
|---|---|---|---|---|
| Mansfield Road, Bognor Regis | £ 425,000 | BUY | 8 / 10 | 0.00 KM |
| Mansfield Road, Bognor Regis, West Sussex, PO22 9EZ | £ 350,000 | BUY | 6 / 10 | 0.05 KM |
| Mansfield Road, North Bersted, Bognor Regis, West Sussex, PO22 9EY | £ 250,000 | BUY | Unknown | 0.10 KM |
| Merrion Avenue, Bognor Regis | £ 370,000 | BUY | 7 / 10 | 0.12 KM |
| Merrion Avenue, Bognor Regis, West Sussex, PO22 | £ 370,000 | BUY | 7 / 10 | 0.13 KM |
Nearby Properties
| Address | Price | Distance |
|---|---|---|
| 22 Mansfield Road | £ 180,000 | 0.01 KM |
| 8 Mansfield Road | £ 245,000 | 0.01 KM |
| 26 Mansfield Road | £ 225,000 | 0.01 KM |
| 1 Mansfield Road | £ 216,500 | 0.06 KM |
| 17 Mansfield Road | £ 202,000 | 0.06 KM |