TH
Moors Avenue, Kidderminster, DY11
By The Agency UK
£ 230,000
Reviews
3 out of 5 stars
The Agency UK says ..
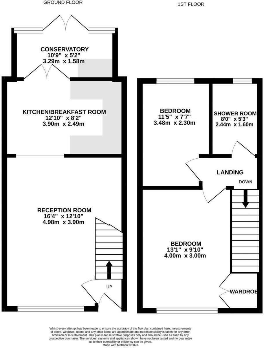
A village located well presented two bedroom home with field views, could this great home be for you?
Property Oracle says ..
Therefore, we give this property 6 / 10. *Disclaimer: This is our option and does constitute a recommendation or financial advice. Do your own research. *
- Price
- 4
- Condition
- 8
- Location
- 7
- Land
- 5
- Bedrooms
- 2
- Bathrooms
- 1
- Sqft (est)
- 583.73
The heatmap indicates the level of crime in the area. The color of the heatmap indicates the crime severity and recency.
Metrics Year-on-Year
- Average area value
- 587,037.00 £Increased by 12.27 %
- Est sale value
- 201,970.58 £Increased by 9.49 %
- Average area rental value
- 1,573.00 £/moIncreased by 4.87 %
- Est letting value
- 0.00 £/mo
- Est rental Yield
- 3.22 %Decreased by 6.40 %
- Crime Rate
- 6.00 %Unchanged by 0.00 %
from 522,857.00 £
from 184,458.68 £
from 1,500.00 £/mo
from 0.00 £/mo
from 3.44 %
from 6.00 %
Agent Activity
The Agency UK marked this listing as sold.
The Agency UK created the listing.
Nearby Schools
| Name | Type | Ofsted | Distance |
|---|---|---|---|
| Cambian New Elizabethan School | Other Independent Special School | Good | 1.40 KM |
| Hartlebury Cofe Primary School | Academy Converter | Good | 1.52 KM |
| Madinatul Uloom Al Islamiya School | Other Independent School | Requires improvement | 3.17 KM |
| Heronswood Primary School | Academy Sponsor Led | Good | 3.99 KM |
| Wilden All Saints Cofe Primary School | Academy Converter | 4.24 KM |
Images
Nearby Streets
| Name | Average Price | Average Sqft | Distance |
|---|---|---|---|
| Whitley Close | £ 0 | 0 | 0.00 KM |
| Manor Lane | £ 395,000 | 0 | 0.00 KM |
| The Avenue | £ 605,000 | 0 | 0.00 KM |
Nearby Transport
| Name | NLC | TLC | Distance |
|---|---|---|---|
| Hartlebury | 4579 | HBY | 0.24 KM |
| Kidderminster | 4581 | KID | 5.68 KM |
| Blakedown | 4574 | BKD | 9.34 KM |
Nearby Listings
| Address | Price | Type | Score | Distance |
|---|---|---|---|---|
| Moors Avenue, Kidderminster, DY11 | £ 230,000 | BUY | 6 / 10 | 0.00 KM |
| Moors Avenue, Hartlebury, Kidderminster, Worcestershire | £ 247,500 | BUY | 6 / 10 | 0.00 KM |
| Station Road, Hartlebury, Kidderminster | £ 300,000 | BUY | 7 / 10 | 0.12 KM |
| Old Worcester Road, Kidderminster, DY11 | £ 465,000 | BUY | 7 / 10 | 0.55 KM |
| Old Worcester Road Hartlebury Kidderminster, Worcestershire, DY11 7XB | £ 1,650,000 | BUY | 8 / 10 | 0.61 KM |
Nearby Properties
| Address | Price | Distance |
|---|---|---|
| The Barn | £ 450,000 | 0.01 KM |
| Rowan Trees | £ 275,000 | 0.01 KM |
| The Old Farmhouse | £ 189,950 | 0.01 KM |
| Glenlea | £ 120,000 | 0.01 KM |
| Moors House | £ 365,000 | 0.01 KM |