Yelland Road, Yelland, Barnstaple
By Morris and Bott
£ 450,000
Reviews
3 out of 5 stars
Morris and Bott says ..
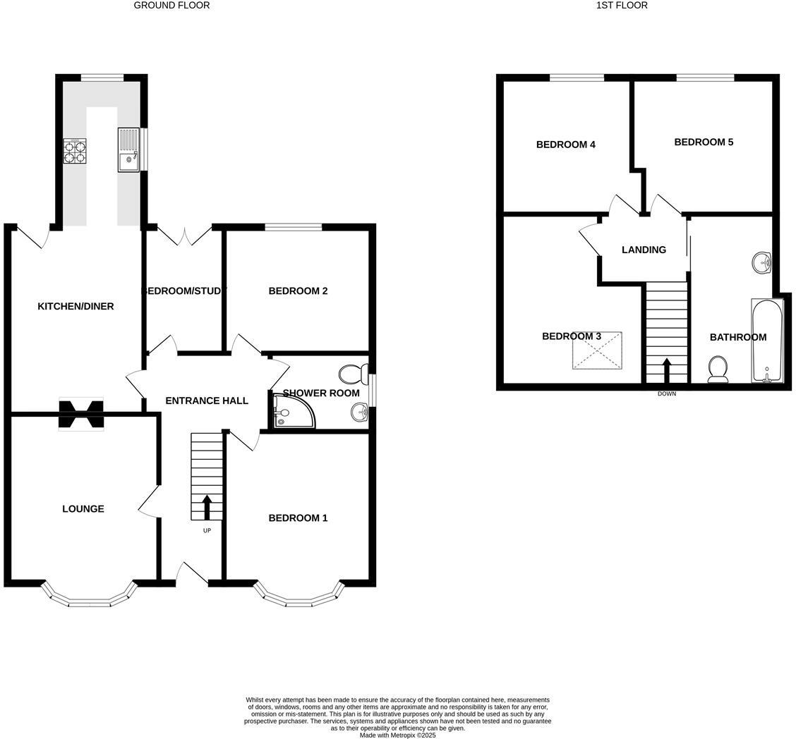
Nestled along Yelland Road, this impressive detached family home offers an exceptional standard of living. Boasting five generously sized bedrooms and two well-appointed bathrooms, it provides ample space for families seeking comfort, versatility, and room to grow. The home’s spacious layout has ...
Property Oracle says ..
This is a detached property located in Yelland, near Barnstaple, Devon. It features five bedrooms and two bathrooms, with a total square footage of 1,120 sqft. The property includes a well-maintained garden with a patio area. The interior appears to be in good condition, with modern bathrooms and a functional kitchen. The property benefits from off-street parking and is located within a reasonable distance of local schools and transportation links. The asking price of £450,000 seems competitive given the location, size, and condition of the property.
Therefore, we give this property 7 / 10. *Disclaimer: This is our option and does constitute a recommendation or financial advice. Do your own research. *
- Price
- 8
- Condition
- 7
- Location
- 7
- Land
- 8
- Bedrooms
- 5
- Bathrooms
- 2
- Sqft (est)
- 1,120.00
The heatmap indicates the level of crime in the area. The color of the heatmap indicates the crime severity and recency.
Metrics Year-on-Year
- Average area value
- 661,000.00 £Increased by 29.29 %
- Est sale value
- 607,040.00 £Increased by 47.28 %
- Average area rental value
- 2,410.00 £/moIncreased by 120.90 %
- Est letting value
- 1,120.00 £/mo
- Est rental Yield
- 4.38 %Increased by 71.09 %
- Crime Rate
- 0.00 %
Agent Activity
Morris and Bott created the listing.
Nearby Schools
| Name | Type | Ofsted | Distance |
|---|---|---|---|
| Instow Community Primary And Pre-School | Foundation School | Good | 2.27 KM |
| Fremington Primary School | Academy Converter | 2.40 KM | |
| Braunton Academy | Academy Converter | Good | 3.77 KM |
| Southmead School | Foundation School | Good | 3.81 KM |
| Caen Community Primary School | Foundation School | Good | 4.67 KM |
Images
Nearby Streets
| Name | Average Price | Average Sqft | Distance |
|---|---|---|---|
| St Katherine's Close | £ 0 | 0 | 0.00 KM |
| Horseshoe Close | £ 0 | 0 | 0.00 KM |
Nearby Transport
| Name | NLC | TLC | Distance |
|---|---|---|---|
| Barnstaple | 5725 | BNP | 9.61 KM |
Nearby Listings
| Address | Price | Type | Score | Distance |
|---|---|---|---|---|
| Yelland Road, Yelland, Barnstaple | £ 450,000 | BUY | 7 / 10 | 0.00 KM |
| Yelland Road, Yelland, Barnstaple, Devon, EX31 | £ 330,000 | BUY | 6 / 10 | 0.04 KM |
| Yelland Road, Yelland | £ 1,100,000 | BUY | 6 / 10 | 0.09 KM |
| Allenstyle Gardens, Yelland, EX31 | £ 345,000 | BUY | 7 / 10 | 0.16 KM |
| Allenstyle Drive, Yelland, Barnstaple, Devon, EX31 | £ 450,000 | BUY | 7 / 10 | 0.18 KM |
Nearby Properties
| Address | Price | Distance |
|---|---|---|
| 76 Yelland Road | £ 64,000 | 0.10 KM |
| 86 Yelland Road | £ 470,000 | 0.10 KM |
| 78 Yelland Road | £ 375,000 | 0.10 KM |
| 74 Yelland Road | £ 237,500 | 0.10 KM |
| 84 Yelland Road | £ 249,000 | 0.10 KM |