Kingsley Terrace, Combe Martin, Devon, EX34
WE

Kingsley Terrace, Combe Martin, Devon, EX34

By Webbers Property Services

£ 285,000

Reviews

3 out of 5 stars

Webbers Property Services says ..

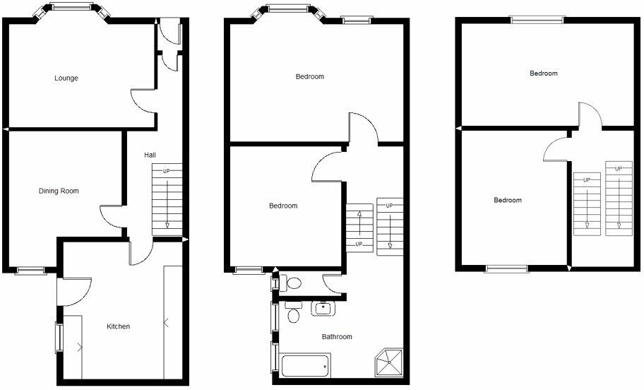
Less than a mile from Combe Martin Beach, a spacious 4 bedroom terraced house with the accommodation arranged over 3 floors, situated in this popular and sought after coastal village location with gas central heating and uPVC windows.

Property Oracle says ..

This four-bedroom, two-bathroom terraced house in Combe Martin, North Devon, is listed for £285,000. The property’s location on Kingsley Terrace offers proximity to the beach and local amenities, making it appealing to those who value a coastal lifestyle. The photographs reveal a house that is habitable and well-maintained in terms of structure but could benefit from some cosmetic upgrades and modernisation to enhance its overall appeal to potential buyers. The kitchen and bathrooms appear functional but not modern. The included garden adds a pleasing outdoor area, albeit one that is relatively small. The price point appears relatively competitive within the Combe Martin market, especially considering the number of bedrooms and bathrooms. However, the lack of precise square footage data on comparable properties means a definitive assessment is challenging. The overall property presents an interesting opportunity for potential buyers seeking a coastal property in need of minor refurbishment, and those willing to potentially invest some time and money into improvements are likely to find it a worthwhile prospect. The absence of nearby transportation data limits an overall, objective evaluation of the property’s convenience. The presence of several nearby schools is also a positive aspect, and this adds to the property’s suitability for families. Potential buyers should conduct thorough research to fully assess all aspects before making a purchase.

Therefore, we give this property 6 / 10. *Disclaimer: This is our option and does constitute a recommendation or financial advice. Do your own research. *

Price
7
Condition
6
Location
7
Land
4
Bedrooms
4
Bathrooms
2
Sqft (est)
1,000.00

The heatmap indicates the level of crime in the area. The color of the heatmap indicates the crime severity and recency.

Metrics Year-on-Year

Average area value
661,000.00 £
Increased by 29.29 %
from 511,241.00 £
Est sale value
542,000.00 £
Increased by 47.28 %
from 368,000.00 £
Average area rental value
2,410.00 £/mo
Increased by 120.90 %
from 1,091.00 £/mo
Est letting value
1,000.00 £/mo
from 0.00 £/mo
Est rental Yield
4.38 %
Increased by 71.09 %
from 2.56 %
Crime Rate
54.00 %
Unchanged by 0.00 %
from 54.00 %

Agent Activity

  • Webbers Property Services created the listing.

Nearby Schools

NameTypeOfstedDistance
Combe Martin Primary SchoolAcademy Converter0.96 KM
Berrynarbor Church Of England Primary SchoolVoluntary Controlled SchoolOutstanding3.75 KM
Kentisbury Primary SchoolCommunity SchoolGood6.64 KM
Marwood SchoolFoundation SchoolOutstanding9.38 KM
The Ilfracombe Church Of England AcademyAcademy Sponsor LedGood9.56 KM

Images

Picture No. 21 Picture No. 22 Picture No. 26 Picture No. 17 Picture No. 23 Picture No. 27 Picture No. 11 Picture No. 24 Picture No. 13 Picture No. 14 Picture No. 28 Picture No. 02 Picture No. 25 Picture No. 04 Picture No. 09 Picture No. 10 Picture No. 16 Picture No. 20 Picture No. 18

Nearby Streets

NameAverage PriceAverage SqftDistance
Pound Lane £ 000.00 KM
Rock Lane £ 000.00 KM
Park View Close £ 354,87500.00 KM
Libra Gardens £ 380,00000.00 KM
Kiln Lane £ 000.00 KM

Nearby Listings

AddressPriceTypeScoreDistance
Kingsley Terrace, Combe Martin, Devon, EX34 £ 285,000BUY6 / 100.00 KM
Kingsley Terrace, Combe Martin, Ilfracombe, Devon, EX34 £ 214,500BUY7 / 100.02 KM
Kingsley Terrace, Combe Martin, Ilfracombe, Devon, EX34 £ 320,000BUY6 / 100.03 KM
High Street, Combe Martin £ 200,000BUY6 / 100.06 KM
Westbourne Terrace, Combe Martin, Ilfracombe, Devon, EX34 £ 275,000BUY5 / 100.08 KM

Nearby Properties

AddressPriceDistance
1 Kingsley Terrace £ 182,5000.01 KM
3 Kingsley Terrace £ 175,0000.01 KM
4 Kingsley Terrace £ 299,9500.02 KM
2 Kingsley Terrace £ 299,9500.02 KM
Brook House £ 387,0000.06 KM