Pigott Street, Poplar, London, E14
By Keatons
£ 385,000
Reviews
3 out of 5 stars
Keatons says ..
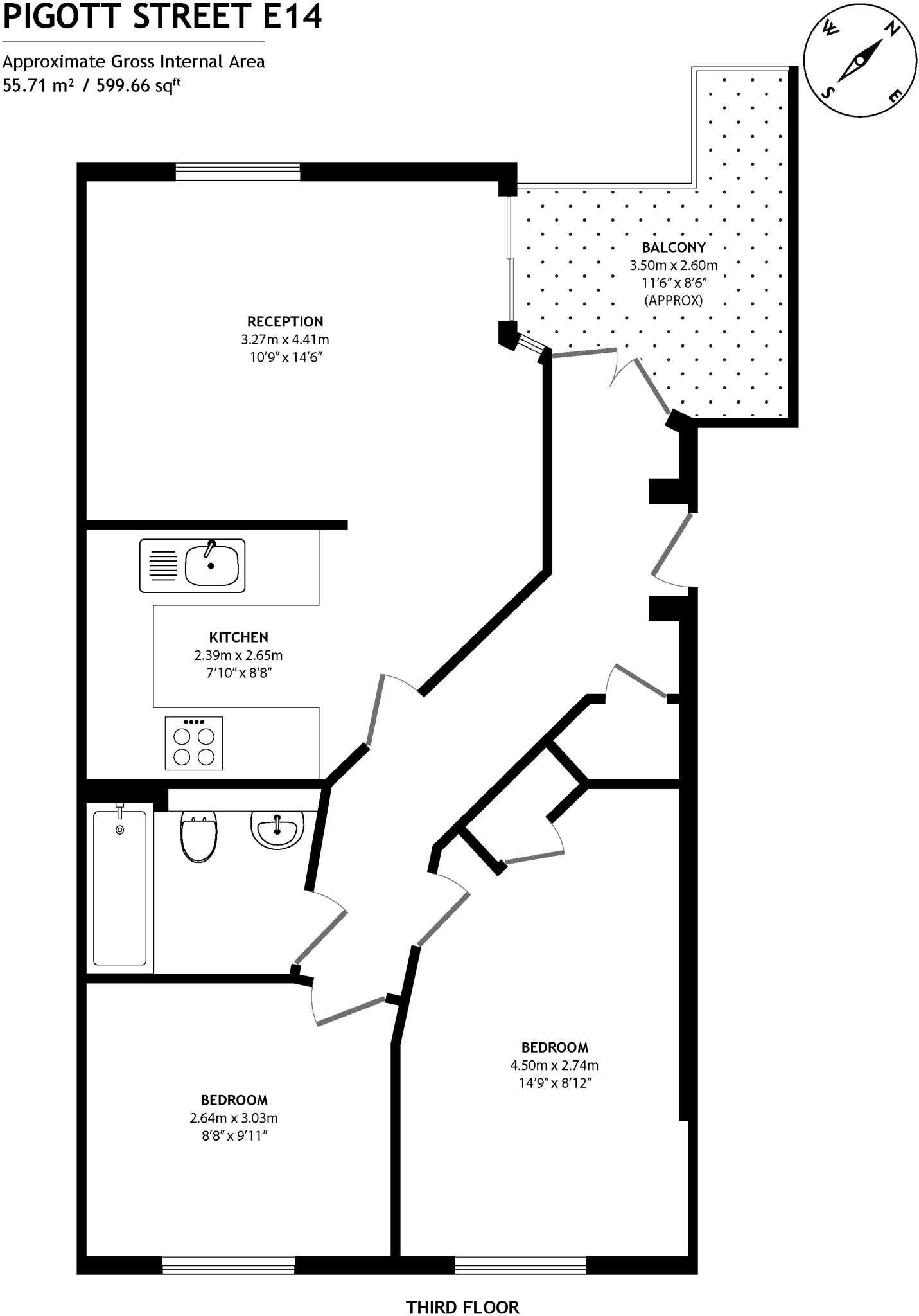
A bright and well-proportioned two-bedroom apartment which has been recently refurbished by the current owner. Set on the top floor of this purpose-built block with a look and feel that is very much ready to be moved into. Comprising two well-proportioned bedrooms, a private terrace, a contempora...
Property Oracle says ..
This is a two-bedroom flat in Poplar, London. The property is in good condition and benefits from a balcony. The location is convenient, with good access to local amenities, transportation, and schools. The price seems reasonable for the area and the property’s features.
Therefore, we give this property 6 / 10. *Disclaimer: This is our option and does constitute a recommendation or financial advice. Do your own research. *
- Price
- 7
- Condition
- 8
- Location
- 7
- Land
- 5
- Bedrooms
- 2
- Bathrooms
- 1
- Sqft (est)
- 599.66
The heatmap indicates the level of crime in the area. The color of the heatmap indicates the crime severity and recency.
Metrics Year-on-Year
- Average area value
- 478,379.00 £Increased by 16.22 %
- Est sale value
- 370,589.88 £Increased by 35.23 %
- Average area rental value
- 2,016.00 £/moIncreased by 5.00 %
- Est letting value
- 1,199.32 £/moUnchanged by 0.00 %
- Est rental Yield
- 5.06 %Decreased by 9.64 %
- Crime Rate
- 9.00 %Unchanged by 0.00 %
Agent Activity
Keatons created the listing.
Nearby Schools
| Name | Type | Ofsted | Distance |
|---|---|---|---|
| Stebon Primary School | Academy Converter | Good | 0.41 KM |
| Cyril Jackson Primary School | Academy Converter | 0.56 KM | |
| St Paul'S Way Trust School | Academy Converter | 0.62 KM | |
| Mayflower Primary School | Community School | Outstanding | 0.63 KM |
| St Paul With St Luke Cofe Primary School | Voluntary Aided School | Good | 0.63 KM |
Images
Nearby Streets
| Name | Average Price | Average Sqft | Distance |
|---|---|---|---|
| Burdett Road | £ 750,000 | 0 | 0.00 KM |
| Burdett Road | £ 700,000 | 0 | 0.00 KM |
| Tivoli Way | £ 400,000 | 0 | 0.00 KM |
| Canton Street | £ 325,000 | 0 | 0.00 KM |
| Cotall Street | £ 0 | 0 | 0.00 KM |
Nearby Transport
| Name | NLC | TLC | Distance |
|---|---|---|---|
| Limehouse | 7491 | LHS | 1.56 KM |
| Canada Water | 1659 | ZCW | 3.15 KM |
| New Cross | 5150 | NWX | 3.15 KM |
| Rotherhithe | 1039 | ROE | 3.22 KM |
| Surrey Quays | 1083 | SQE | 3.28 KM |
Nearby Listings
| Address | Price | Type | Score | Distance |
|---|---|---|---|---|
| Pigott Street, Poplar, London, E14 | £ 385,000 | BUY | 6 / 10 | 0.00 KM |
| Pigott Street, London, E14 | £ 675,000 | BUY | 6 / 10 | 0.02 KM |
| 3 Pelling Street, Limehouse, E14 | £ 350,000 | BUY | 6 / 10 | 0.04 KM |
| Pigott Street, London, E14 | £ 400,000 | BUY | 5 / 10 | 0.04 KM |
| Old School Square, Poplar E14 | £ 425,000 | BUY | 7 / 10 | 0.04 KM |
Nearby Properties
| Address | Price | Distance |
|---|---|---|
| 150 Pigott Street | £ 55,000 | 0.03 KM |
| 100 Pigott Street | £ 380,000 | 0.03 KM |
| 90 Pigott Street | £ 249,000 | 0.03 KM |
| 164 Pigott Street | £ 186,900 | 0.03 KM |
| 106 Pigott Street | £ 205,000 | 0.03 KM |