Woodvale Close, Somersall, Chesterfield
WI

Woodvale Close, Somersall, Chesterfield

By Wilkins Vardy Residential

£ 549,000

Reviews

3 out of 5 stars

Wilkins Vardy Residential says ..

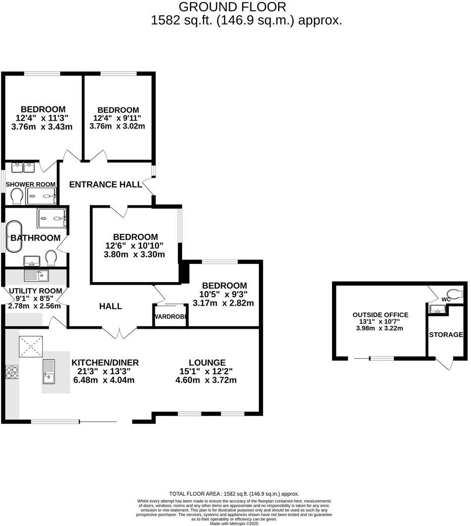
SUPERBLY REFURBISHED DETACHED BUNGALOW - CONTEMPORARY & STYLISH ACCOMMODATION This charming detached bungalow on Woodvale Close has been renovated and refurbished by the current owner to provide a superb four bedroomed property, ideal for families or those seeking extra space for guests....

Property Oracle says ..

This detached bungalow is located in a desirable area of Chesterfield, with good access to local schools and amenities. The property is in excellent condition, with modern fixtures and fittings throughout. It also benefits from a well-maintained garden with a separate office/studio building.

Therefore, we give this property 7 / 10. *Disclaimer: This is our option and does constitute a recommendation or financial advice. Do your own research. *

Price
4
Condition
9
Location
8
Land
7
Bedrooms
4
Bathrooms
2
Sqft (est)
107.27

The heatmap indicates the level of crime in the area. The color of the heatmap indicates the crime severity and recency.

Metrics Year-on-Year

Average area value
502,500.00 £
Increased by 40.73 %
from 357,077.00 £
Est sale value
48,271.50 £
Increased by 89.08 %
from 25,530.26 £
Average area rental value
961.00 £/mo
Decreased by 1.13 %
from 972.00 £/mo
Est letting value
0.00 £/mo
from 0.00 £/mo
Est rental Yield
2.29 %
Decreased by 29.97 %
from 3.27 %
Crime Rate
5.00 %
Unchanged by 0.00 %
from 5.00 %

Agent Activity

  • Wilkins Vardy Residential created the listing.

Nearby Schools

NameTypeOfstedDistance
Brookfield Community SchoolAcademy ConverterRequires improvement0.92 KM
Westfield Infant SchoolAcademy Converter1.27 KM
Walton Holymoorside Primary SchoolAcademy Converter1.64 KM
Old Hall Junior SchoolAcademy Converter2.21 KM
Holme Hall Primary SchoolAcademy Sponsor Led2.46 KM

Images

external.jpg Kitchen/Diner 1 rear.jpg internal_14.jpg Family Bathroom 1 Kitchen/Diner 3 Kitchen/Diner 4 Kitchen/Diner 2 Living Room 2 Living Room 1 internal_13.jpg internal_8.jpg internal_17.jpg En Suite Shower Room rear_1.jpg rear_5.jpg Garden Room external_1.jpg Garden Room 1 rear_4.jpg external_2.jpg internal_16.jpg Utility Room Family Bathroom 2 Family Bathroom 3 rear_6.jpg rear_3.jpg

Nearby Streets

NameAverage PriceAverage SqftDistance
Park Hall Close £ 000.00 KM
St John's Close £ 425,00000.00 KM
Ryehill Avenue £ 000.00 KM
Blyth Close £ 000.00 KM
Nursery Drive £ 000.00 KM

Nearby Transport

NameNLCTLCDistance
Chesterfield6615CHD6.01 KM
Dronfield6616DRO8.63 KM

Nearby Listings

AddressPriceTypeScoreDistance
Woodvale Close, Somersall, Chesterfield £ 549,000BUY7 / 100.00 KM
Woodvale Close, Somersall, Chesterfield £ 325,000BUY6 / 100.12 KM
Woodvale Close, Somersall, Chesterfield £ 325,000BUY7 / 100.14 KM
Somersall Lane, Somersall, Chesterfield £ 499,950BUY7 / 100.16 KM
Somersall Lane, Somersall, Chesterfield, S40 £ 550,000BUY8 / 100.17 KM

Nearby Properties

AddressPriceDistance
14 Endowood Road £ 184,0000.08 KM
22 Endowood Road £ 290,0000.08 KM
12 Endowood Road £ 190,0000.08 KM
3 Endowood Road £ 215,0000.08 KM
18 Endowood Road £ 245,0000.08 KM