Cornwall Grove, London, W4
Whitman & Co logo

Cornwall Grove, London, W4

By Whitman & Co

£ 495,000

Reviews

4 out of 5 stars

Whitman & Co says ..

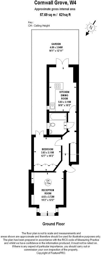
A ground floor period garden flat situated in this very popular residential road within walking distance of The River and Chiswick High Road with its array of boutique shops, restaurants and bars. The accommodation comprises an entrance hall with understairs storage, spacious main reception room ...

Property Oracle says ..

The property is a one-bedroom flat located in Chiswick Homefields, Hounslow, with a list price of £495,000. The flat has 649.23 sqft of living space and a 621 sqft plot.

The location is excellent, with several highly-rated primary schools within a 1km radius, including The William Hogarth Primary School and St Mary’s Catholic Primary School, both rated ‘Good’ by Ofsted. The area also benefits from good transport links, with several train stations (Barnes Bridge, Chiswick, South Acton) within a reasonable distance, providing convenient access to central London.

Based on the provided images, the property appears to be in good condition. The interior is well-maintained and modern, with a recently updated kitchen and bathroom. While the property shows some signs of age, it does not appear to be in need of significant renovation. The garden is a pleasant addition, offering a private outdoor space.

Considering the average price per sqft in the area (£1005) and the property’s size (649.23 sqft), a reasonable estimate for the property value would be around £652,000. However, the list price of £495,000 is significantly lower than this estimate. While nearby properties show a wide range of prices, the lower list price of this property could be attributed to the fact that it is a flat rather than a house, and the smaller plot size compared to nearby houses. The lower price could represent good value for money, but further investigation into the specific reasons for the lower price would be beneficial.

Considering the property’s location, condition, and the apparent value for money, the property presents a compelling opportunity for a buyer.

Therefore, we give this property 8 / 10. *Disclaimer: This is our option and does constitute a recommendation or financial advice. Do your own research. *

Price
8
Condition
8
Location
9
Land
7
Bedrooms
1
Bathrooms
1
Sqft (est)
649.23
Lot (est)
621.00

The heatmap indicates the level of crime in the area. The color of the heatmap indicates the crime severity and recency.

Metrics Year-on-Year

Average area value
953,000.00 £
Decreased by 11.81 %
from 1,080,572.00 £
Est sale value
435,633.33 £
Decreased by 19.45 %
from 540,808.59 £
Average area rental value
1,783.00 £/mo
Decreased by 30.51 %
from 2,566.00 £/mo
Est letting value
649.23 £/mo
Unchanged by 0.00 %
from 649.23 £/mo
Est rental Yield
2.25 %
Decreased by 21.05 %
from 2.85 %
Crime Rate
4.00 %
Unchanged by 0.00 %
from 4.00 %

Agent Activity

  • Whitman & Co created the listing.

Nearby Schools

NameTypeOfstedDistance
The William Hogarth Primary SchoolCommunity SchoolGood0.52 KM
Chiswick Children'S CentreChildren's Centre Linked Site0.65 KM
St Mary'S Catholic Primary School ,ChiswickVoluntary Aided SchoolGood0.71 KM
Artsed Day School And Sixth FormOther Independent School0.84 KM
The Harrodian SchoolOther Independent SchoolGood0.94 KM

Images

Cornwall Grove, W4 - FOR SALE Cornwall Grove, W4 - FOR SALE Cornwall Grove, W4 - FOR SALE Cornwall Grove, W4 - FOR SALE Cornwall Grove, W4 - FOR SALE Cornwall Grove, W4 - FOR SALE Cornwall Grove, W4 - FOR SALE Cornwall Grove, W4 - FOR SALE Cornwall Grove, W4 - FOR SALE Cornwall Grove, W4 - FOR SALE Cornwall Grove, W4 - FOR SALE

Nearby Streets

NameAverage PriceAverage SqftDistance
Mawson Lane £ 000.00 KM
Chiswick Lane South £ 000.00 KM
Alkerden Road £ 000.00 KM
Wood Street £ 000.00 KM
Ingress Street £ 000.00 KM

Nearby Transport

NameNLCTLCDistance
Barnes Bridge5580BNI1.85 KM
Chiswick5583CHK2.02 KM
South Acton1452SAT2.44 KM
Barnes5551BNS2.59 KM
Acton Central1404ACC2.60 KM

Nearby Listings

AddressPriceTypeScoreDistance
Cornwall Grove, London, W4 £ 495,000BUY8 / 100.00 KM
Cornwall Grove, London, W4 £ 1,295,000BUYUnknown0.01 KM
Dorchester Grove, London, W4 £ 1,200,000BUYUnknown0.04 KM
Cornwall Grove, Chiswick, London, W4 £ 1,600,000BUY7 / 100.04 KM
Cornwall Grove, Chiswick, London, W4 £ 1,650,000BUY8 / 100.04 KM

Nearby Properties

AddressPriceDistance
17 Dorchester Grove £ 799,9500.04 KM
1b Dorchester Grove £ 525,0000.04 KM
27 Dorchester Grove £ 300,0000.04 KM
5a Dorchester Grove £ 450,0000.04 KM
7a Dorchester Grove £ 570,0000.04 KM