Bach Close, Basingstoke, Hampshire, RG22
By Bridges Estate Agents
£ 170,000
Reviews
3 out of 5 stars
Bridges Estate Agents says ..
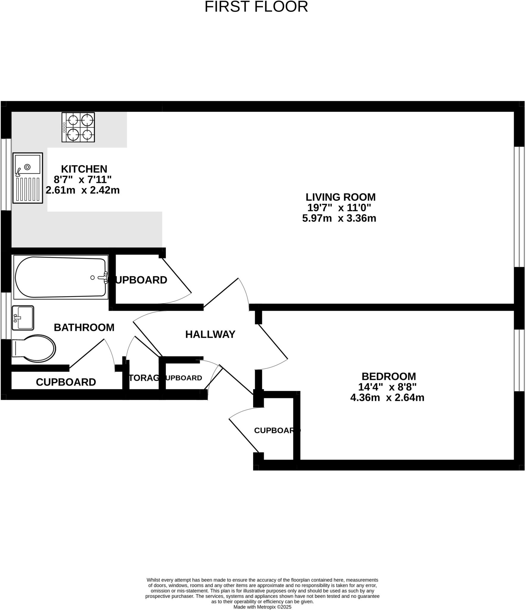
Conveniently located near local schools, shops and parks, this spacious first floor flat is offered with no onward chain. Positioned at the end of the block, it enjoys added privacy and green views to both the side and front. The standout feature is the 19ft living room, which flows into a m...
Property Oracle says ..
This is a one-bedroom flat located in Brighton Hill, Basingstoke. The property is in a fair condition, requiring some modernisation. It benefits from a garden and proximity to local schools and transportation links. The asking price of £170,000 appears reasonable given the property’s size, condition, and location. It presents an opportunity for first-time buyers or investors willing to undertake some renovation work.
Therefore, we give this property 6 / 10. *Disclaimer: This is our option and does constitute a recommendation or financial advice. Do your own research. *
- Price
- 8
- Condition
- 5
- Location
- 7
- Land
- 6
- Bedrooms
- 1
- Bathrooms
- 1
- Sqft (est)
- 406.98
The heatmap indicates the level of crime in the area. The color of the heatmap indicates the crime severity and recency.
Metrics Year-on-Year
- Average area value
- 1,258,750.00 £Increased by 38.62 %
- Est sale value
- 239,711.22 £Decreased by 3.13 %
- Average area rental value
- 2,017.00 £/moDecreased by 42.17 %
- Est letting value
- 0.00 £/moDecreased by 100.00 %
- Est rental Yield
- 1.92 %Decreased by 58.35 %
- Crime Rate
- 11.00 %Unchanged by 0.00 %
Agent Activity
Bridges Estate Agents created the listing.
Nearby Schools
| Name | Type | Ofsted | Distance |
|---|---|---|---|
| Manor Field Junior School | Community School | Good | 0.39 KM |
| Manor Field Infant School | Community School | Good | 0.39 KM |
| Buttercups And Bunnies Children'S Centre | Children's Centre | 0.49 KM | |
| Hatch Warren Infant School | Community School | Good | 0.72 KM |
| Hatch Warren Junior School | Community School | Good | 0.82 KM |
Images
Nearby Streets
| Name | Average Price | Average Sqft | Distance |
|---|---|---|---|
| Hatchwarren Lane | £ 0 | 0 | 0.00 KM |
| Ellington Drive | £ 0 | 0 | 0.00 KM |
| Brighton Hill | £ 325,000 | 0 | 0.00 KM |
| The Brackens | £ 0 | 0 | 0.00 KM |
| Mitchell Gardens | £ 320,000 | 0 | 0.00 KM |
Nearby Transport
| Name | NLC | TLC | Distance |
|---|---|---|---|
| Basingstoke | 5520 | BSK | 4.61 KM |
Nearby Listings
| Address | Price | Type | Score | Distance |
|---|---|---|---|---|
| Bach Close, Basingstoke, Hampshire, RG22 | £ 170,000 | BUY | 6 / 10 | 0.00 KM |
| Bach Close, Brighton Hill, Basingstoke | £ 340,000 | BUY | 7 / 10 | 0.05 KM |
| Bach Close, Basingstoke, RG22 4LD | £ 150,000 | BUY | 6 / 10 | 0.08 KM |
| Mathias Walk, Brighton Hill, Basingstoke | £ 345,000 | BUY | Unknown | 0.20 KM |
| Beecham Berry, Basingstoke | £ 335,000 | BUY | 7 / 10 | 0.24 KM |
Nearby Properties
| Address | Price | Distance |
|---|---|---|
| 75 Bach Close | £ 207,000 | 0.05 KM |
| 55 Bach Close | £ 232,000 | 0.05 KM |
| 62 Bach Close | £ 160,050 | 0.05 KM |
| 77 Bach Close | £ 240,500 | 0.05 KM |
| 71 Bach Close | £ 285,000 | 0.05 KM |