Adams Real Estate says ..
*** Stunning Three Bedroom Town House with Off Road Parking & Garage***Adams Real Estate are delighted to market this exceptional end town house, located in a convenient and sought after location close to excellent local schools, Victoria Park and all amenities. The property has been trans...
Property Oracle says ..
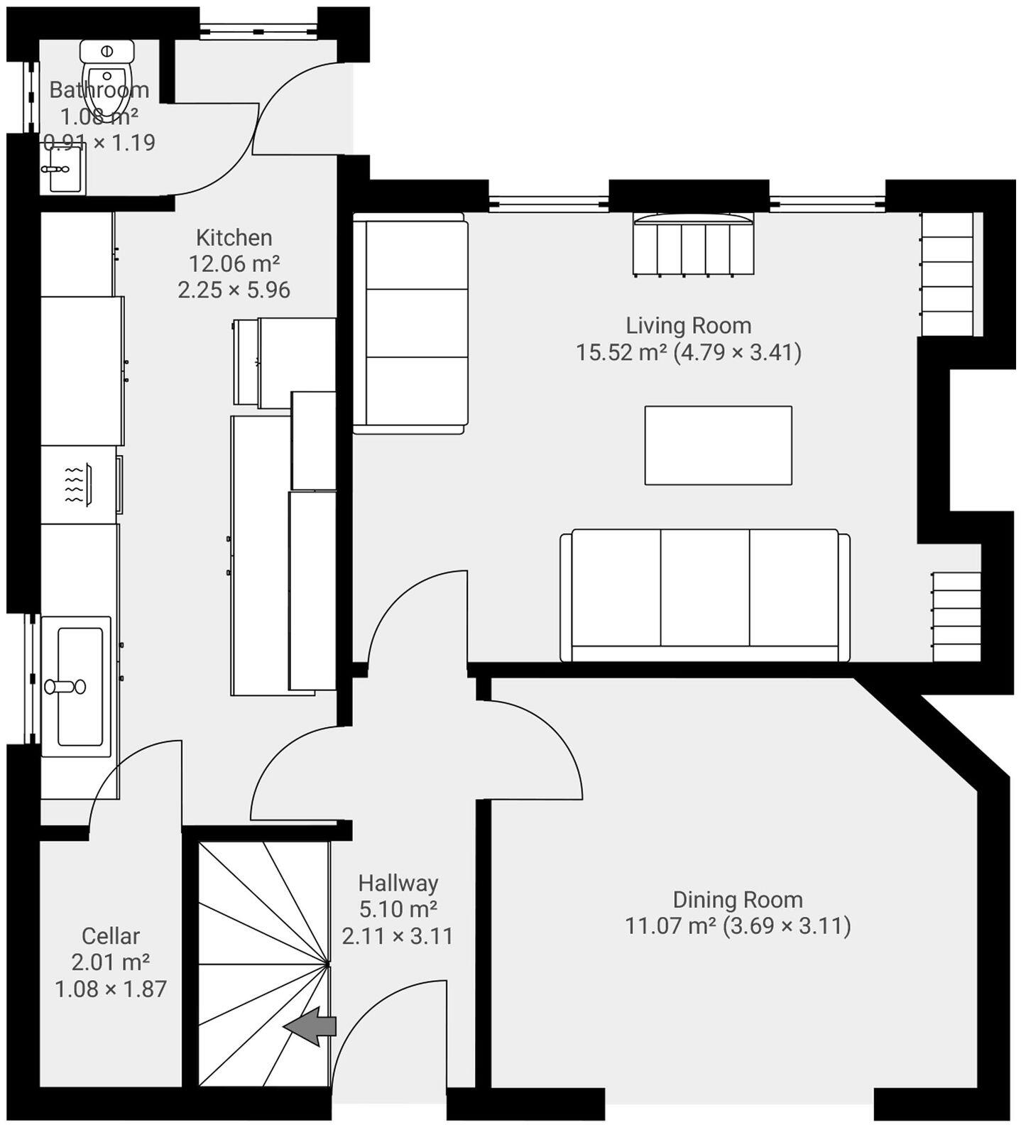
This end-of-terrace property on Lincoln Square, Appleton, Widnes, offers a blend of modern living and convenient location. The house features three bedrooms and two bathrooms, making it suitable for families or couples. The modern kitchen and updated bathrooms enhance the property’s appeal. The presence of a garden adds outdoor living space. Located within proximity to schools and transportation options, including the Widnes train station, the property benefits from good connectivity. While the square footage is relatively modest at 504 sq ft, the layout appears functional and well-maintained. The asking price of £250,000 seems justified based on the property’s features, location, and recent sales data in the area.
Therefore, we give this property 7 / 10. *Disclaimer: This is our option and does constitute a recommendation or financial advice. Do your own research. *
- Price
- 8
- Condition
- 7
- Location
- 7
- Land
- 6
- Bedrooms
- 3
- Bathrooms
- 2
- Sqft (est)
- 504.18
The heatmap indicates the level of crime in the area. The color of the heatmap indicates the crime severity and recency.
Metrics Year-on-Year
- Average area value
- 375,667.00 £Decreased by 6.15 %
- Est sale value
- 188,563.32 £Increased by 15.08 %
- Average area rental value
- 1,270.00 £/moDecreased by 19.62 %
- Est letting value
- 504.18 £/moUnchanged by 0.00 %
- Est rental Yield
- 4.06 %Decreased by 14.35 %
- Crime Rate
- 4.00 %Unchanged by 0.00 %
Agent Activity
Adams Real Estate created the listing.
Nearby Schools
| Name | Type | Ofsted | Distance |
|---|---|---|---|
| Fairfield Primary School | Community School | Good | 0.28 KM |
| St Bede'S Catholic Infant School | Voluntary Aided School | Outstanding | 0.88 KM |
| St Bede'S Catholic Junior School | Voluntary Aided School | Good | 0.89 KM |
| Wade Deacon High School | Academy Converter | 0.93 KM | |
| Birchfield Nursery School | Local Authority Nursery School | Good | 0.93 KM |
Images
Nearby Streets
| Name | Average Price | Average Sqft | Distance |
|---|---|---|---|
| Brookwood Avenue | £ 308,125 | 0 | 0.00 KM |
| Cornwall Road | £ 160,000 | 0 | 0.00 KM |
| Peelhouse Lane | £ 0 | 0 | 0.00 KM |
| Incline Way | £ 0 | 0 | 0.00 KM |
| Stanley Close | £ 150,000 | 0 | 0.00 KM |
Nearby Transport
| Name | NLC | TLC | Distance |
|---|---|---|---|
| Widnes | 2391 | WID | 0.75 KM |
| Runcorn | 2291 | RUN | 4.48 KM |
| Hough Green | 2303 | HGN | 5.35 KM |
| Lea Green | 2339 | LEG | 5.54 KM |
| Rainhill | 2296 | RNH | 6.24 KM |
Nearby Listings
| Address | Price | Type | Score | Distance |
|---|---|---|---|---|
| Lincoln Square, Widnes | £ 235,000 | BUY | 7 / 10 | 0.00 KM |
| Lincoln Square, Widnes | £ 250,000 | BUY | 7 / 10 | 0.00 KM |
| Cedar Avenue, Widnes, WA8 | £ 235,000 | BUY | 7 / 10 | 0.08 KM |
| Fairfield Road, Widnes | £ 460,000 | BUY | 7 / 10 | 0.18 KM |
| Victoria Place, Bevan Way, Farnworth | £ 785,000 | BUY | 7 / 10 | 0.24 KM |
Nearby Properties
| Address | Price | Distance |
|---|---|---|
| 16 Lincoln Square | £ 145,000 | 0.02 KM |
| 9 Lincoln Square | £ 187,000 | 0.02 KM |
| 12 Lincoln Square | £ 230,000 | 0.02 KM |
| 19 Lincoln Square | £ 186,000 | 0.02 KM |
| 18 Lincoln Square | £ 125,000 | 0.02 KM |