Links Estate Agents says ..
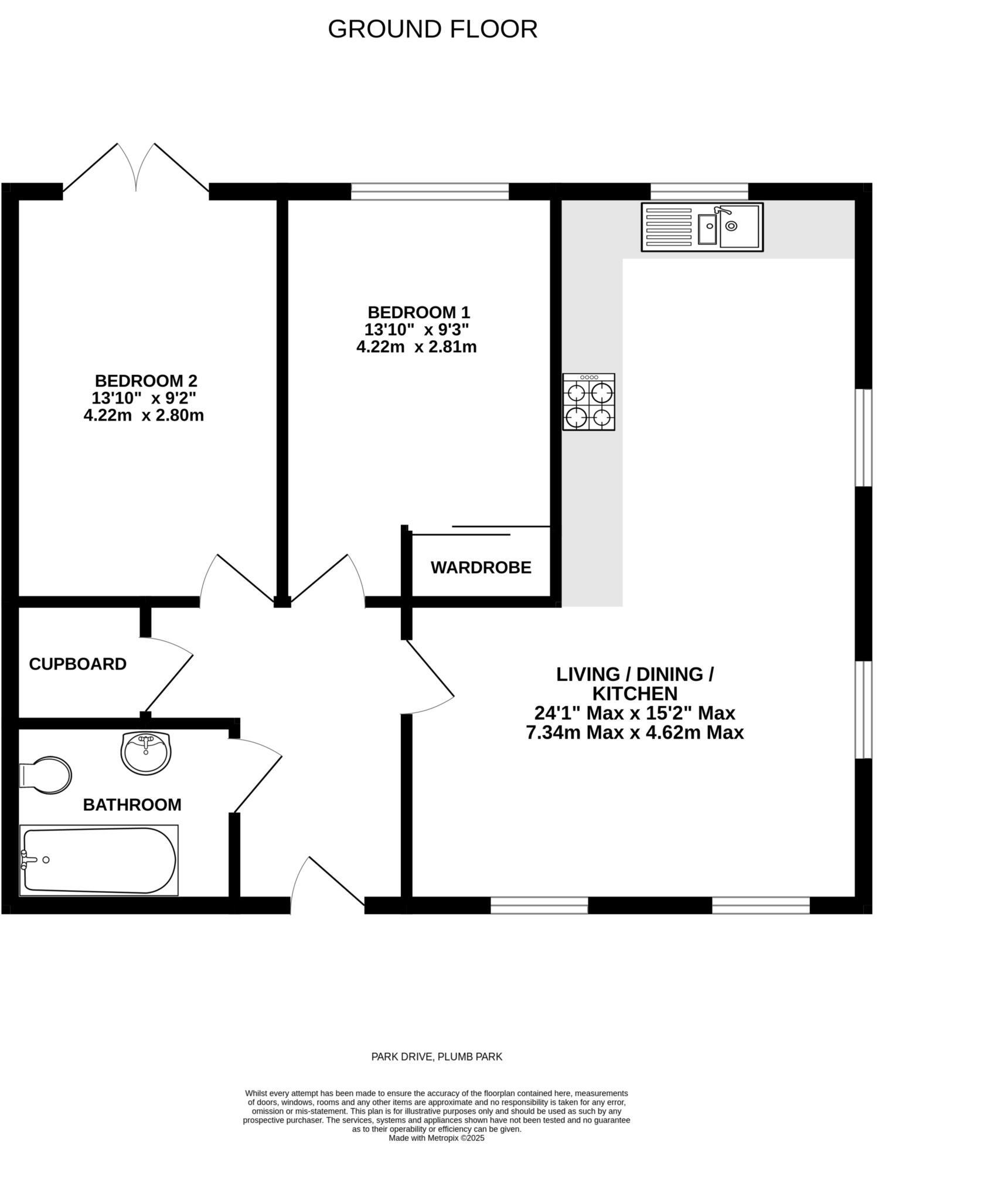
A purpose built, self contained, 2 double bedroom ground floor apartment, built by Messrs Taylor Wimpey Homes in 2024, still having the remainder of a 10 year NHBC guarantee.
Property Oracle says ..
Therefore, we give this property 7 / 10. *Disclaimer: This is our option and does constitute a recommendation or financial advice. Do your own research. *
- Price
- 9
- Condition
- 8
- Location
- 7
- Land
- 6
- Bedrooms
- 2
- Bathrooms
- 1
- Sqft (est)
- 620.26
The heatmap indicates the level of crime in the area. The color of the heatmap indicates the crime severity and recency.
Metrics Year-on-Year
- Average area value
- 385,000.00 £Decreased by 11.33 %
- Est sale value
- 413,093.16 £Increased by 93.60 %
- Average area rental value
- 1,650.00 £/moIncreased by 37.04 %
- Est letting value
- 1,240.52 £/mo
- Est rental Yield
- 5.14 %Increased by 54.35 %
- Crime Rate
- 9.00 %Unchanged by 0.00 %
from 434,218.00 £
from 213,369.44 £
from 1,204.00 £/mo
from 0.00 £/mo
from 3.33 %
from 9.00 %
Agent Activity
Links Estate Agents created the listing.
Nearby Schools
| Name | Type | Ofsted | Distance |
|---|---|---|---|
| Littleham Church Of England Primary School | Voluntary Controlled School | Requires improvement | 0.85 KM |
| Bassetts Farm Primary School | Foundation School | Good | 1.21 KM |
| Marpool Primary School | Foundation School | Good | 1.26 KM |
| Exmouth & District Children'S Centre | Children's Centre | 1.40 KM | |
| Withycombe Raleigh Church Of England Primary School | Voluntary Controlled School | Good | 1.78 KM |
Images
Nearby Streets
| Name | Average Price | Average Sqft | Distance |
|---|---|---|---|
| Sutton Road | £ 279,950 | 0 | 0.00 KM |
| Buckeridge Road | £ 264,000 | 0 | 0.00 KM |
| The Crescent | £ 0 | 0 | 0.00 KM |
| Chapman Road | £ 0 | 0 | 0.00 KM |
| Wade Close | £ 0 | 0 | 0.00 KM |
Nearby Transport
| Name | NLC | TLC | Distance |
|---|---|---|---|
| Exmouth | 5756 | EXM | 3.39 KM |
| Lympstone Village | 5761 | LYM | 5.86 KM |
| Starcross | 3413 | SCS | 7.02 KM |
| Dawlish Warren | 3409 | DWW | 7.08 KM |
| Lympstone Commando | 5762 | LYC | 7.61 KM |
Nearby Listings
| Address | Price | Type | Score | Distance |
|---|---|---|---|---|
| Park Drive, Exmouth | £ 299,950 | BUY | 7 / 10 | 0.00 KM |
| Buckingham Close, Exmouth, EX8 | £ 425,000 | BUY | 7 / 10 | 0.04 KM |
| Wragg Drive, Exmouth | £ 675,000 | BUY | 8 / 10 | 0.06 KM |
| Pincombe Court, Buckingham Close, Exmouth | £ 335,000 | BUY | 6 / 10 | 0.06 KM |
| Exmouth, Devon | £ 320,000 | BUY | 7 / 10 | 0.09 KM |
Nearby Properties
| Address | Price | Distance |
|---|---|---|
| 6 Midway | £ 236,250 | 0.23 KM |
| 8 Midway | £ 150,000 | 0.23 KM |
| 2 Midway | £ 245,000 | 0.23 KM |
| 52 Littleham Road | £ 217,000 | 0.24 KM |
| 54 Littleham Road | £ 148,000 | 0.24 KM |