Mirlaw Road, Whitelea Chase, Cramlington
By Renown Estate Agents
£ 238,000
Reviews
3 out of 5 stars
Renown Estate Agents says ..
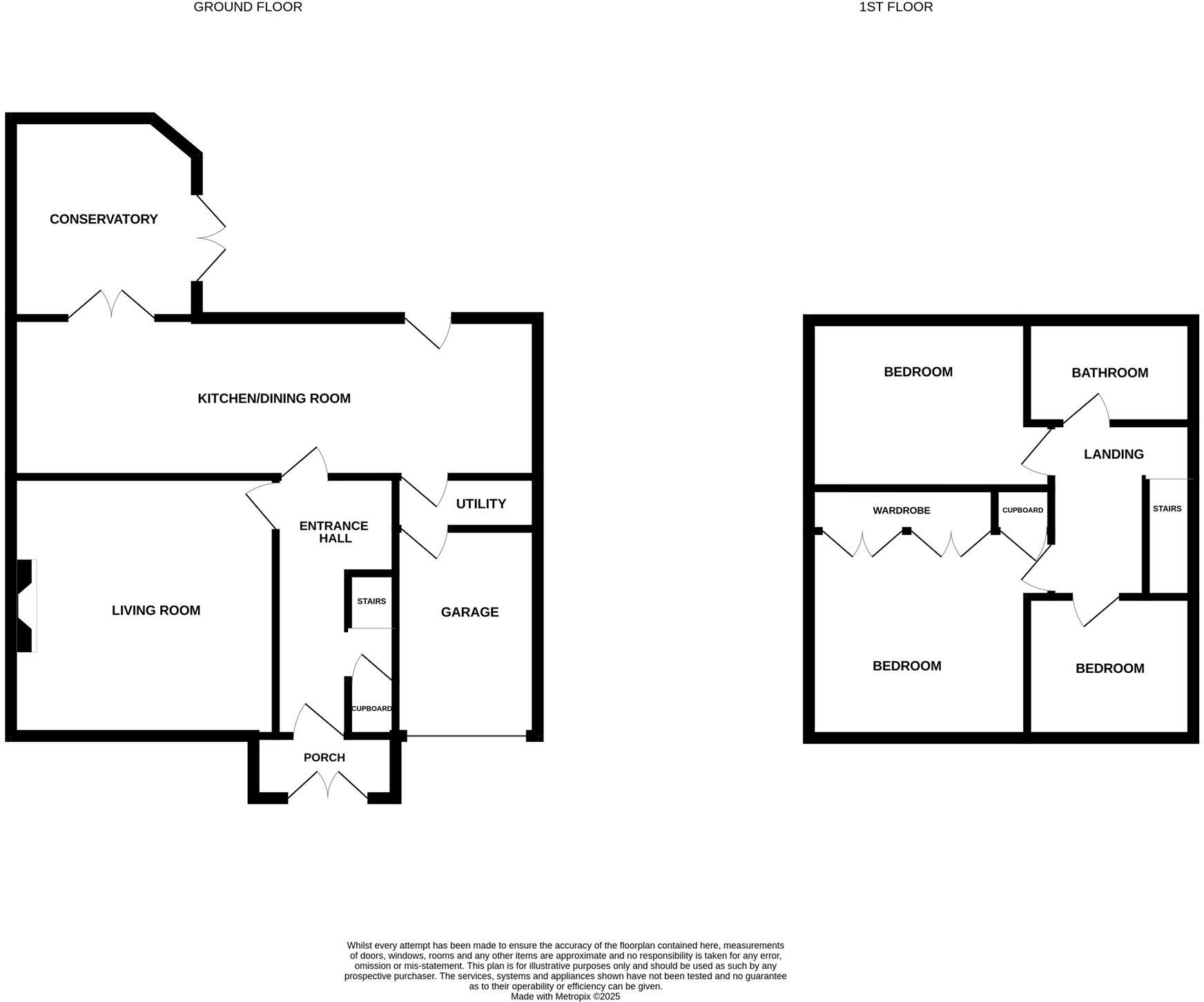
An immaculately presented three bedroomed semi detached house situated in a very popular residential estate convenient for schools and town centre amenities. The property offers spacious well planned accommodation having been altered and extended to provide a large, impressive kitchen-di (cont.)
Property Oracle says ..
This three-bedroom semi-detached property is located in Cramlington, Northumberland, and is listed at £238,000. The property benefits from a good location, being close to several well-regarded schools such as Cramlington Learning Village and Hareside Primary School, both rated \‘Good\’ by Ofsted. Cramlington train station is also within convenient reach, providing access to other areas. The property itself appears to be well-maintained and modernised, with a recently updated kitchen and bathroom. The images show a contemporary style throughout. The property also includes a garden with a patio area and a shed, which adds to its appeal.
Therefore, we give this property 7 / 10. *Disclaimer: This is our option and does constitute a recommendation or financial advice. Do your own research. *
- Price
- 7
- Condition
- 9
- Location
- 8
- Land
- 7
- Bedrooms
- 3
- Bathrooms
- 1
The heatmap indicates the level of crime in the area. The color of the heatmap indicates the crime severity and recency.
Metrics Year-on-Year
- Average area value
- 625,000.00 £Increased by 9.15 %
- Average area rental value
- 1,525.00 £/moIncreased by 1.26 %
- Est rental Yield
- 2.93 %Decreased by 7.28 %
- Crime Rate
- 2.00 %Unchanged by 0.00 %
Agent Activity
Renown Estate Agents created the listing.
Nearby Schools
| Name | Type | Ofsted | Distance |
|---|---|---|---|
| Cramlington Learning Village | Academy Converter | Good | 0.53 KM |
| Hareside Primary School | Community School | Good | 0.62 KM |
| Beaconhill Community Primary School | Community School | Good | 1.23 KM |
| Ss Peter And Paul'S Catholic Primary Academy | Academy Converter | Requires improvement | 1.27 KM |
| Cramlington Children'S Centre | Children's Centre | 1.33 KM |
Images
Nearby Streets
| Name | Average Price | Average Sqft | Distance |
|---|---|---|---|
| Grenville Court | £ 239,999 | 0 | 0.00 KM |
| Grantham Place | £ 94,950 | 0 | 0.00 KM |
| Craster Court | £ 0 | 0 | 0.00 KM |
| Southfield Gardens | £ 0 | 0 | 0.00 KM |
| Rosebrough | £ 0 | 0 | 0.00 KM |
Nearby Transport
| Name | NLC | TLC | Distance |
|---|---|---|---|
| Cramlington | 7579 | CRM | 0.94 KM |
Nearby Listings
| Address | Price | Type | Score | Distance |
|---|---|---|---|---|
| Mirlaw Road, Whitelea Chase, Cramlington | £ 238,000 | BUY | 7 / 10 | 0.00 KM |
| Mirlaw Road, Whitelea Chase, Cramlington | £ 239,950 | BUY | 6 / 10 | 0.10 KM |
| Mirlaw Road, Whitelea Chase, Cramlington | £ 172,000 | BUY | 6 / 10 | 0.11 KM |
| Melkridge Place, Whitelea Chase, Cramlington | £ 289,950 | BUY | 7 / 10 | 0.13 KM |
| Mirlaw Road, Cramlington | £ 85,000 | BUY | 6 / 10 | 0.14 KM |
Nearby Properties
| Address | Price | Distance |
|---|---|---|
| 10 Mirlaw Road | £ 230,000 | 0.07 KM |
| 8 Mirlaw Road | £ 180,000 | 0.07 KM |
| 20 Mirlaw Road | £ 279,950 | 0.07 KM |
| 5 Morwick Close | £ 205,000 | 0.09 KM |
| 8 Morwick Close | £ 159,950 | 0.09 KM |