John Lake Estate Agents says ..
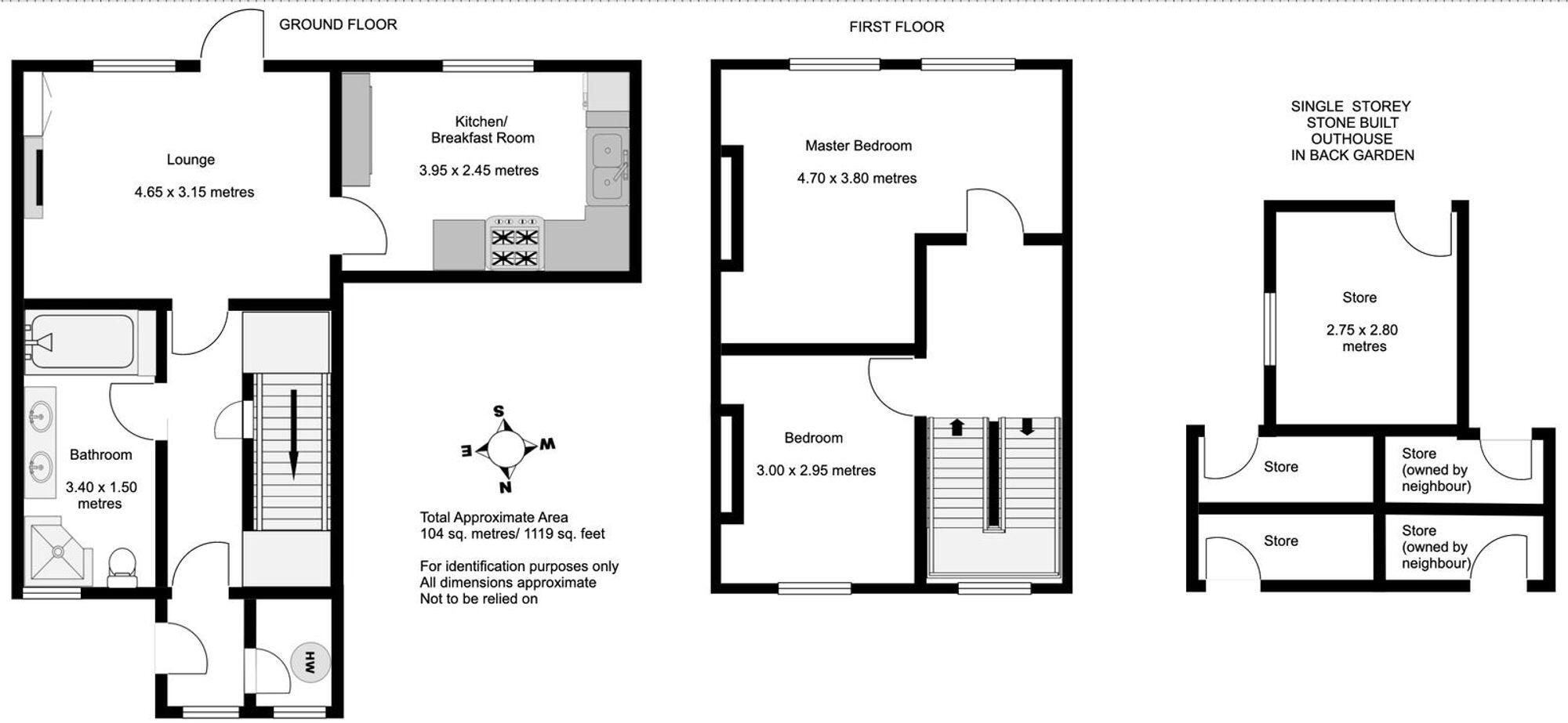
This CHARACTER COTTAGE forms part of a terrace of former coastguard cottages, enviably positioned to take full advantage of the picturesque views over Daddyhole Plain to the sea at Tor Bay toward Brixham’s Berry Head. Chain free.
Property Oracle says ..
Therefore, we give this property 6 / 10. *Disclaimer: This is our option and does constitute a recommendation or financial advice. Do your own research. *
- Price
- 6
- Condition
- 7
- Location
- 8
- Land
- 3
- Bedrooms
- 2
- Bathrooms
- 1
- Sqft (est)
- 687.11
The heatmap indicates the level of crime in the area. The color of the heatmap indicates the crime severity and recency.
Metrics Year-on-Year
- Average area value
- 499,500.00 £Increased by 16.96 %
- Est sale value
- 247,359.60 £Decreased by 4.00 %
- Average area rental value
- 1,072.00 £/moIncreased by 1.52 %
- Est letting value
- 0.00 £/mo
- Est rental Yield
- 2.58 %Decreased by 13.13 %
- Crime Rate
- 10.00 %Unchanged by 0.00 %
from 427,069.00 £
from 257,666.25 £
from 1,056.00 £/mo
from 0.00 £/mo
from 2.97 %
from 10.00 %
Agent Activity
John Lake Estate Agents created the listing.
Nearby Schools
| Name | Type | Ofsted | Distance |
|---|---|---|---|
| Warberry Cofe Academy | Academy Converter | Good | 1.31 KM |
| Ilsham Church Of England Academy | Academy Converter | Good | 1.55 KM |
| Torquay Children'S Centre | Children's Centre | 1.91 KM | |
| All Saints Babbacombe Cofe Primary School | Academy Converter | Good | 1.95 KM |
| Eat That Frog C.I.C | Special Post 16 Institution | Good | 2.08 KM |
Images
Nearby Streets
| Name | Average Price | Average Sqft | Distance |
|---|---|---|---|
| Hardy Close | £ 0 | 0 | 0.00 KM |
| Kelly Close | £ 1,200,000 | 0 | 0.00 KM |
| Vernon Close | £ 2,000,000 | 0 | 0.00 KM |
| Vanehill Road | £ 340,000 | 0 | 0.00 KM |
| Torwood Gardens Road | £ 0 | 0 | 0.00 KM |
Nearby Transport
| Name | NLC | TLC | Distance |
|---|---|---|---|
| Torquay | 3434 | TQY | 3.11 KM |
| Torre | 3432 | TRR | 3.89 KM |
| Paignton | 3427 | PGN | 5.96 KM |
Nearby Listings
| Address | Price | Type | Score | Distance |
|---|---|---|---|---|
| Meadfoot, Torquay | £ 395,000 | BUY | 6 / 10 | 0.00 KM |
| Meadfoot, Torquay | £ 425,000 | BUY | 7 / 10 | 0.01 KM |
| Tower House, Torquay | £ 750,000 | BUY | 6 / 10 | 0.04 KM |
| Daddyhole Road, Torquay, TQ1 | £ 925,000 | BUY | Unknown | 0.05 KM |
| Daddyhole Plain, Torquay, TQ1 | £ 875,000 | BUY | 6 / 10 | 0.05 KM |
Nearby Properties
| Address | Price | Distance |
|---|---|---|
| Cherrytrees | £ 315,000 | 0.06 KM |
| Greycote | £ 775,000 | 0.06 KM |
| Meadow Bank | £ 175,000 | 0.06 KM |
| Highpoint | £ 640,000 | 0.08 KM |
| Danewood | £ 690,000 | 0.09 KM |