St. Johns Wood Road - Over 55's Development
By Ashley Milton
£ 450,000
Reviews
3 out of 5 stars
Ashley Milton says ..
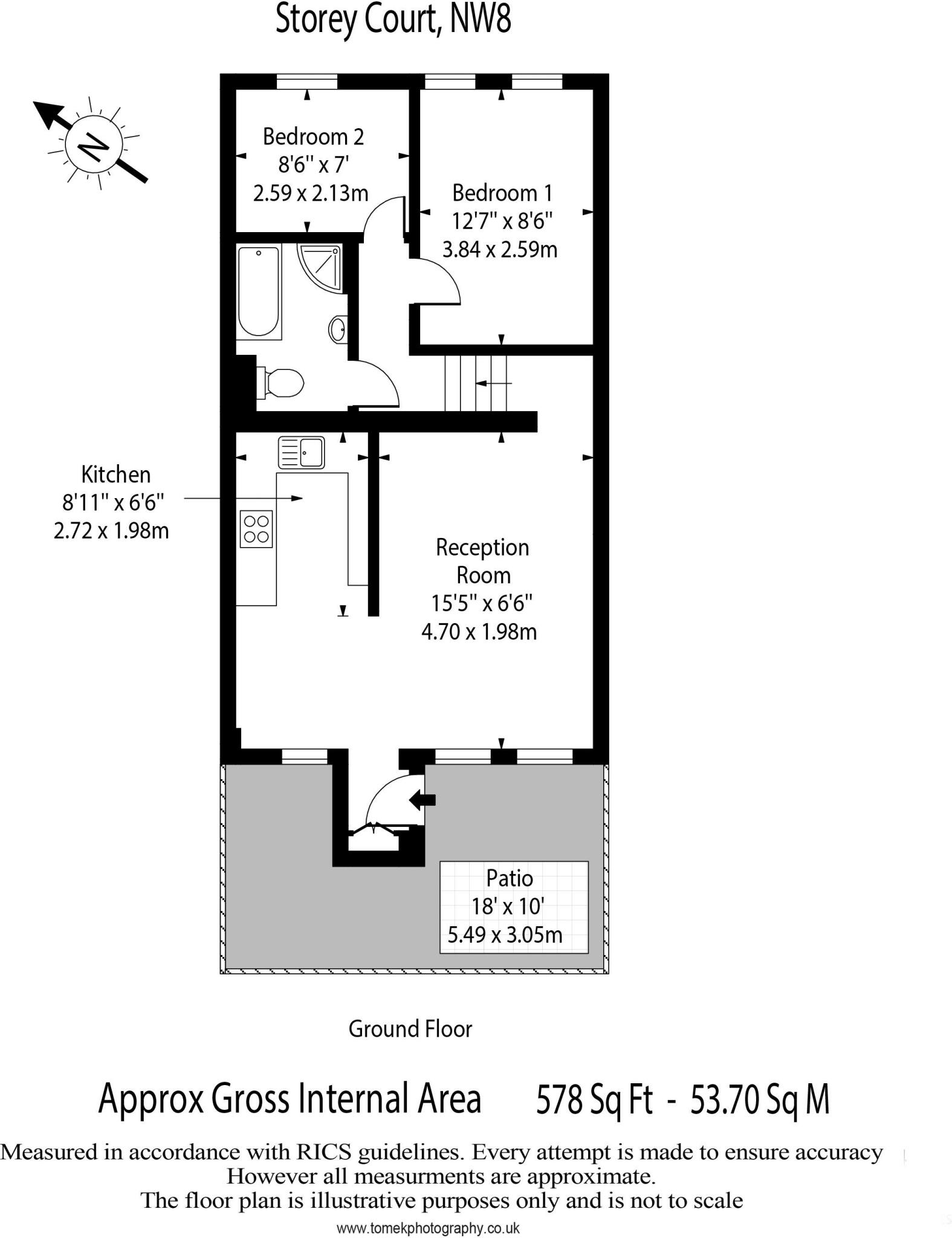
A well presented two bedroomed apartment in this secure over 55 years olds development. The property is in very good condition and benefits from direct communal garden access. The accommodation comprises: reception room, kitchen, two bedrooms and bathroom. Offered chain free this property would m...
Property Oracle says ..
This two-bedroom apartment in St John’s Wood, located within an over-55s development, presents a comfortable living space. The property’s interior is well-maintained, as evidenced by the photographs, featuring a functional kitchen, a relatively modern bathroom and two bedrooms. The communal garden offers outdoor access which is beneficial. The apartment’s location in St. John’s Wood is a significant advantage, offering proximity to excellent transportation links, well-regarded schools, and the greenery of Regent’s Park. The absence of private outdoor space is a notable drawback, especially given the average size of properties in this area.
The price point of £450,000 requires further analysis to gauge its value. While the price appears reasonable in relation to other properties in the area (although square footage comparisons are limited due to data limitations), it doesn’t represent an outstanding bargain given its size and the absence of private outdoor space. The target demographic for this property, specifically over-55s, will likely influence its appeal and price point.
Overall, it is a reasonable property in a sought-after location, suited for a specific buyer profile. Further information such as service charges, leasehold details, and more detailed square footage for nearby properties would provide a more complete and insightful analysis.
Therefore, we give this property 6 / 10. *Disclaimer: This is our option and does constitute a recommendation or financial advice. Do your own research. *
- Price
- 7
- Condition
- 7
- Location
- 8
- Land
- 3
- Bedrooms
- 2
- Bathrooms
- 1
- Sqft (est)
- 578.02
The heatmap indicates the level of crime in the area. The color of the heatmap indicates the crime severity and recency.
Metrics Year-on-Year
- Average area value
- 1,623,158.00 £Decreased by 45.13 %
- Est sale value
- 991,304.30 £Decreased by 11.69 %
- Average area rental value
- 2,702.00 £/moDecreased by 17.80 %
- Est letting value
- 1,156.04 £/moUnchanged by 0.00 %
- Est rental Yield
- 2.00 %Increased by 50.38 %
- Crime Rate
- 3.00 %Unchanged by 0.00 %
Agent Activity
Ashley Milton created the listing.
Nearby Schools
| Name | Type | Ofsted | Distance |
|---|---|---|---|
| Gateway Academy | Academy Converter | 0.51 KM | |
| Paddington Green Children'S Centre | Children's Centre Linked Site | 0.65 KM | |
| United Colleges Group | Further Education | Requires improvement | 0.66 KM |
| L'Ecole Bilingue Elementaire | Other Independent School | Outstanding | 0.67 KM |
| St Joseph'S Rc Primary School | Voluntary Aided School | Good | 0.72 KM |
Images
Nearby Streets
| Name | Average Price | Average Sqft | Distance |
|---|---|---|---|
| Denning Close | £ 0 | 0 | 0.00 KM |
| St John's Wood Road | £ 0 | 0 | 0.00 KM |
| St John's Wood Road | £ 0 | 0 | 0.00 KM |
| Cavendish Close | £ 0 | 0 | 0.00 KM |
| Barbara Brosnan Court | £ 0 | 0 | 0.00 KM |
Nearby Transport
| Name | NLC | TLC | Distance |
|---|---|---|---|
| Paddington | 3087 | PAD | 1.26 KM |
| Marylebone | 1475 | MYB | 1.52 KM |
| South Hampstead | 1451 | SOH | 1.61 KM |
| Kilburn High Road | 1415 | KBN | 2.13 KM |
| Finchley Road And Frognal | 1445 | FNY | 2.68 KM |
Nearby Listings
| Address | Price | Type | Score | Distance |
|---|---|---|---|---|
| St. Johns Wood Road - Over 55's Development | £ 450,000 | BUY | 6 / 10 | 0.00 KM |
| St. Johns Wood Road, St John's Wood | £ 425,000 | BUY | Unknown | 0.00 KM |
| Storey Court, St Johns Wood, NW8 | £ 385,000 | BUY | 7 / 10 | 0.01 KM |
| Storey Court, St Johns Wood Road, NW8 | £ 450,000 | BUY | 7 / 10 | 0.01 KM |
| St John's Wood Road, St John's Wood, London, NW8 | £ 425,000 | BUY | 8 / 10 | 0.03 KM |
Nearby Properties
| Address | Price | Distance |
|---|---|---|
| 8 Squire Gardens | £ 640,000 | 0.04 KM |
| 10 Squire Gardens | £ 2,500,000 | 0.04 KM |
| 3 Squire Gardens | £ 1,850,000 | 0.04 KM |
| 5 Squire Gardens | £ 795,000 | 0.04 KM |
| 31 St Johns Wood Road | £ 6,750,000 | 0.07 KM |