Aislaby Heights, Halifax, HX2
By Protheroe Property
£ 200,000
Reviews
3 out of 5 stars
Protheroe Property says ..
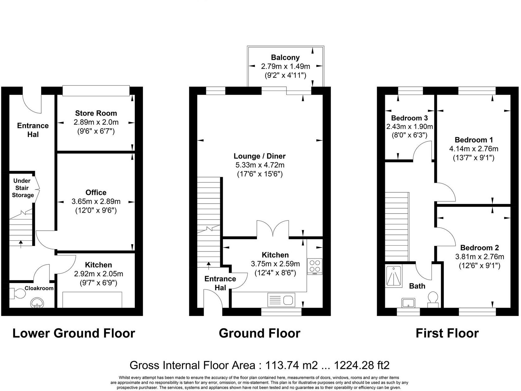
3-bed townhouse in popular area. Over 3 floors. Features: Entrance hall, lounge/diner with balcony, kitchen, office, utility room, cloakroom, bathroom, garden, driveway. Viewing by appointment only
Property Oracle says ..
This is a three-bedroom terraced property in Warley, Halifax. The property benefits from a garden and a balcony. The interior appears to be in generally good condition, with modern bathrooms and a functional kitchen. While some areas could use updating, the property is well-maintained overall. The location offers proximity to schools and transportation, making it suitable for families and commuters. The asking price of £200,000 seems reasonable given the location, condition, and features of the property.
Therefore, we give this property 7 / 10. *Disclaimer: This is our option and does constitute a recommendation or financial advice. Do your own research. *
- Price
- 8
- Condition
- 7
- Location
- 6
- Land
- 7
- Bedrooms
- 3
- Bathrooms
- 2
The heatmap indicates the level of crime in the area. The color of the heatmap indicates the crime severity and recency.
Metrics Year-on-Year
- Average area value
- 444,889.00 £Decreased by 4.34 %
- Average area rental value
- 1,468.00 £/moIncreased by 5.99 %
- Est rental Yield
- 3.96 %Increased by 10.92 %
- Crime Rate
- 6.00 %Unchanged by 0.00 %
Agent Activity
Protheroe Property created the listing.
Nearby Schools
| Name | Type | Ofsted | Distance |
|---|---|---|---|
| Broadwood School | Other Independent Special School | Good | 0.37 KM |
| Creations Community Childrens Centre | Children's Centre | 0.55 KM | |
| Ling Bob Junior, Infant And Nursery School | Community School | Good | 0.55 KM |
| Christ Church Pellon Cofe Vc Primary School | Voluntary Controlled School | Good | 0.57 KM |
| The Halifax Academy | Academy Converter | Good | 1.16 KM |
Images
Nearby Streets
| Name | Average Price | Average Sqft | Distance |
|---|---|---|---|
| Mount Street West | £ 0 | 0 | 0.00 KM |
| Creek View | £ 0 | 0 | 0.00 KM |
| Church Green | £ 0 | 0 | 0.00 KM |
| Church Lane | £ 0 | 0 | 0.00 KM |
| Spring Head | £ 0 | 0 | 0.00 KM |
Nearby Transport
| Name | NLC | TLC | Distance |
|---|---|---|---|
| Sowerby Bridge | 8527 | SOW | 2.81 KM |
| Halifax | 8411 | HFX | 5.32 KM |
| Mytholmroyd | 8526 | MYT | 8.98 KM |
Nearby Listings
| Address | Price | Type | Score | Distance |
|---|---|---|---|---|
| Aislaby Heights, Halifax, HX2 | £ 200,000 | BUY | 7 / 10 | 0.00 KM |
| Aislaby Heights, Halifax | £ 240,000 | BUY | 7 / 10 | 0.03 KM |
| Aislaby Heights, HALIFAX, West Yorkshire, HX2 | £ 200,000 | BUY | 7 / 10 | 0.03 KM |
| Aislaby Heights, Halifax, HX2 0 | £ 180,000 | BUY | Unknown | 0.04 KM |
| Ryecroft Crescent, HALIFAX | £ 140,000 | BUY | 6 / 10 | 0.12 KM |
Nearby Properties
| Address | Price | Distance |
|---|---|---|
| 1 Aislaby Heights | £ 190,000 | 0.01 KM |
| 10 Aislaby Heights | £ 170,000 | 0.03 KM |
| 3 Aislaby Heights | £ 129,400 | 0.03 KM |
| 5 Aislaby Heights | £ 160,000 | 0.03 KM |
| 4 Aislaby Heights | £ 159,000 | 0.05 KM |