Woodlands Avenue, Norton, Malton
By Mark Stephensons
£ 275,000
Reviews
3 out of 5 stars
Mark Stephensons says ..
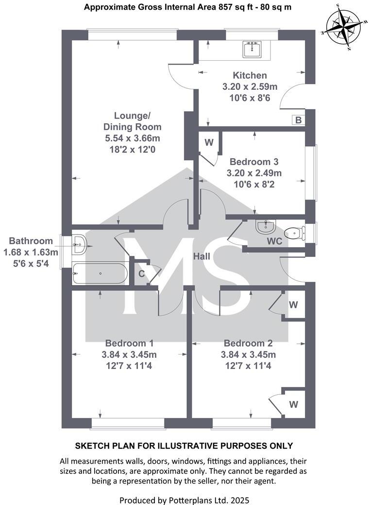
Offered with no forward chain 11 Woodlands has been extremely well cared for over the last few decades but will now need updating generally although having both gas central heating and double glazing. Overall size is deceptive with a side entrance hallway, kitchen with scope to enlarge into bedro...
Property Oracle says ..
The property is located on Woodlands Avenue, in Norton, Malton, North Yorkshire. It’s a 3-bedroom bungalow with 1 bathroom.
Based on the nearby schools and transportation, the location seems reasonable. Norton College and Norton Community Primary School are both nearby and have “Good” Ofsted ratings. Malton train station is also within a reasonable distance.
The interior photos suggest the property is in need of some modernisation. The kitchen and bathroom appear dated, and the carpets and wallpaper could benefit from updating. While the property appears to be well-maintained, it would likely require some renovation to bring it up to modern standards.
The property includes a garden and a garage, which is a desirable feature. The garden appears to be of a good size.
The listing price is £275,000. The average price in the area is £175,200, and the average price per square foot is £201. The nearby listings show similar bungalows selling for around £260,000 - £290,000. Given the condition of the property, the price seems a little high compared to the average for the area, but it’s in line with similar properties in the vicinity.
Therefore, we give this property 6 / 10. *Disclaimer: This is our option and does constitute a recommendation or financial advice. Do your own research. *
- Price
- 6
- Condition
- 5
- Location
- 7
- Land
- 7
- Bedrooms
- 3
- Bathrooms
- 1
- Sqft (est)
- 707.95
The heatmap indicates the level of crime in the area. The color of the heatmap indicates the crime severity and recency.
Metrics Year-on-Year
- Average area value
- 222,000.00 £Increased by 5.38 %
- Est sale value
- 141,590.00 £Decreased by 16.32 %
- Average area rental value
- 1,167.00 £/moIncreased by 0.69 %
- Est letting value
- 707.95 £/moUnchanged by 0.00 %
- Est rental Yield
- 6.31 %Decreased by 4.39 %
- Crime Rate
- 2.00 %Unchanged by 0.00 %
Agent Activity
Mark Stephensons created the listing.
Nearby Schools
| Name | Type | Ofsted | Distance |
|---|---|---|---|
| Norton College | Academy Converter | Good | 0.69 KM |
| Norton Community Primary School | Community School | Good | 0.96 KM |
| Central Ryedale Children'S Centre | Children's Centre | 0.99 KM | |
| St Mary'S Catholic Primary School - A Catholic Voluntary Academy | Academy Converter | 2.02 KM | |
| Malton Primary Academy | Academy Converter | 2.02 KM |
Images
Nearby Streets
| Name | Average Price | Average Sqft | Distance |
|---|---|---|---|
| Dean Road | £ 177,750 | 0 | 0.00 KM |
| Winston Court | £ 0 | 0 | 0.00 KM |
| Langton Road | £ 775,000 | 0 | 0.00 KM |
| Wood Street | £ 0 | 0 | 0.00 KM |
| Woodlands Close | £ 0 | 0 | 0.00 KM |
Nearby Transport
| Name | NLC | TLC | Distance |
|---|---|---|---|
| Malton | 8164 | MLT | 2.31 KM |
Nearby Listings
| Address | Price | Type | Score | Distance |
|---|---|---|---|---|
| Woodlands Avenue, Norton, Malton | £ 275,000 | BUY | 6 / 10 | 0.00 KM |
| Woodlands Avenue, Norton, Malton | £ 275,000 | BUY | 6 / 10 | 0.01 KM |
| Burdale Close, Norton | £ 259,950 | BUY | Unknown | 0.07 KM |
| Hambleton Road, Norton, Malton | £ 285,000 | BUY | Unknown | 0.12 KM |
| Chestnut Grove, Norton, Malton | £ 275,000 | BUY | 6 / 10 | 0.12 KM |
Nearby Properties
| Address | Price | Distance |
|---|---|---|
| 14 Hambleton Road | £ 155,000 | 0.06 KM |
| 17 Hambleton Road | £ 185,000 | 0.06 KM |
| 18 Hambleton Road | £ 162,500 | 0.06 KM |
| 11 Hambleton Road | £ 147,950 | 0.06 KM |
| 13 Ryedale Close | £ 202,000 | 0.06 KM |