Bannawell Street, Tavistock, PL19 0DJ
By Miller Town & Country, Powered by eXp UK
£ 295,000
Reviews
2 out of 5 stars
Miller Town & Country, Powered by eXp UK says ..
Looking for a spacious property in the town centre with a generous garden? This charming townhouse should be on the list - click to learn more!
Property Oracle says ..
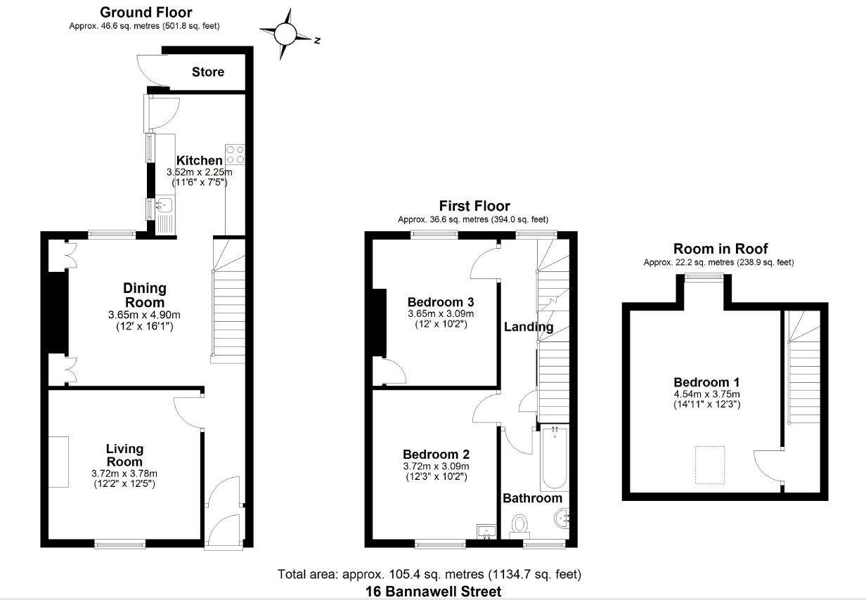
The property is a terraced house with 3 bedrooms and 1 bathroom, with an internal area of 857.78 sqft. The images suggest the property is a traditional period property and requires some renovation. The kitchen and bathroom appear dated, and some rooms show signs of wear and tear. The property has a garden, although it appears overgrown and in need of landscaping.
Therefore, we give this property 5 / 10. *Disclaimer: This is our option and does constitute a recommendation or financial advice. Do your own research. *
- Price
- 6
- Condition
- 4
- Location
- 7
- Land
- 6
- Bedrooms
- 3
- Bathrooms
- 1
- Sqft (est)
- 857.78
The heatmap indicates the level of crime in the area. The color of the heatmap indicates the crime severity and recency.
Metrics Year-on-Year
- Average area value
- 315,556.00 £Increased by 2.62 %
- Est sale value
- 271,058.48 £Increased by 3.95 %
- Average area rental value
- 850.00 £/moIncreased by 8.97 %
- Est letting value
- 0.00 £/mo
- Est rental Yield
- 3.23 %Increased by 6.25 %
- Crime Rate
- 24.00 %Unchanged by 0.00 %
Agent Activity
Miller Town & Country, Powered by eXp UK created the listing.
Nearby Schools
| Name | Type | Ofsted | Distance |
|---|---|---|---|
| St Rumon'S Church Of England (Vc) Infants School | Academy Converter | 0.75 KM | |
| Tavistock & District Children'S Centre | Children's Centre | 0.77 KM | |
| Tavistock Primary & Nursery School | Foundation School | Good | 1.01 KM |
| St Peter'S Church Of England (Va) Junior School | Academy Sponsor Led | Requires improvement | 1.25 KM |
| Tavistock College | Academy Converter | 1.35 KM |
Images
Nearby Streets
| Name | Average Price | Average Sqft | Distance |
|---|---|---|---|
| Lakeside | £ 265,000 | 0 | 0.00 KM |
| Perry Close | £ 0 | 0 | 0.00 KM |
| Lynbridge Court | £ 0 | 0 | 0.00 KM |
| Church Lane | £ 0 | 0 | 0.00 KM |
| The Dell | £ 425,000 | 0 | 0.00 KM |
Nearby Transport
| Name | NLC | TLC | Distance |
|---|---|---|---|
| Gunnislake | 3563 | GSL | 8.82 KM |
| Calstock | 3562 | CSK | 9.03 KM |
| Bere Alston | 3549 | BAS | 9.37 KM |
Nearby Listings
| Address | Price | Type | Score | Distance |
|---|---|---|---|---|
| Bannawell Street, Tavistock, PL19 0DJ | £ 295,000 | BUY | 5 / 10 | 0.00 KM |
| Bannawell Street, Tavistock, Devon, PL19 | £ 350,000 | BUY | 6 / 10 | 0.01 KM |
| Bannawell Street, Tavistock... | £ 300,000 | BUY | 6 / 10 | 0.03 KM |
| Bannawell Street, Tavistock, PL19 0DJ | £ 275,000 | BUY | 7 / 10 | 0.03 KM |
| Minhinnick Court, PL19 0DP | £ 180,000 | BUY | 5 / 10 | 0.05 KM |
Nearby Properties
| Address | Price | Distance |
|---|---|---|
| 1b Bannawell Street | £ 95,000 | 0.03 KM |
| 29 Bannawell Street | £ 272,500 | 0.03 KM |
| 12 Bannawell Street | £ 140,000 | 0.03 KM |
| 22 Bannawell Street | £ 169,000 | 0.03 KM |
| 3 Bannawell Street | £ 169,000 | 0.03 KM |