108 Burneside Road, Kendal, Cumbria
By H&H Land & Estates
£ 200,000
Reviews
3 out of 5 stars
H&H Land & Estates says ..
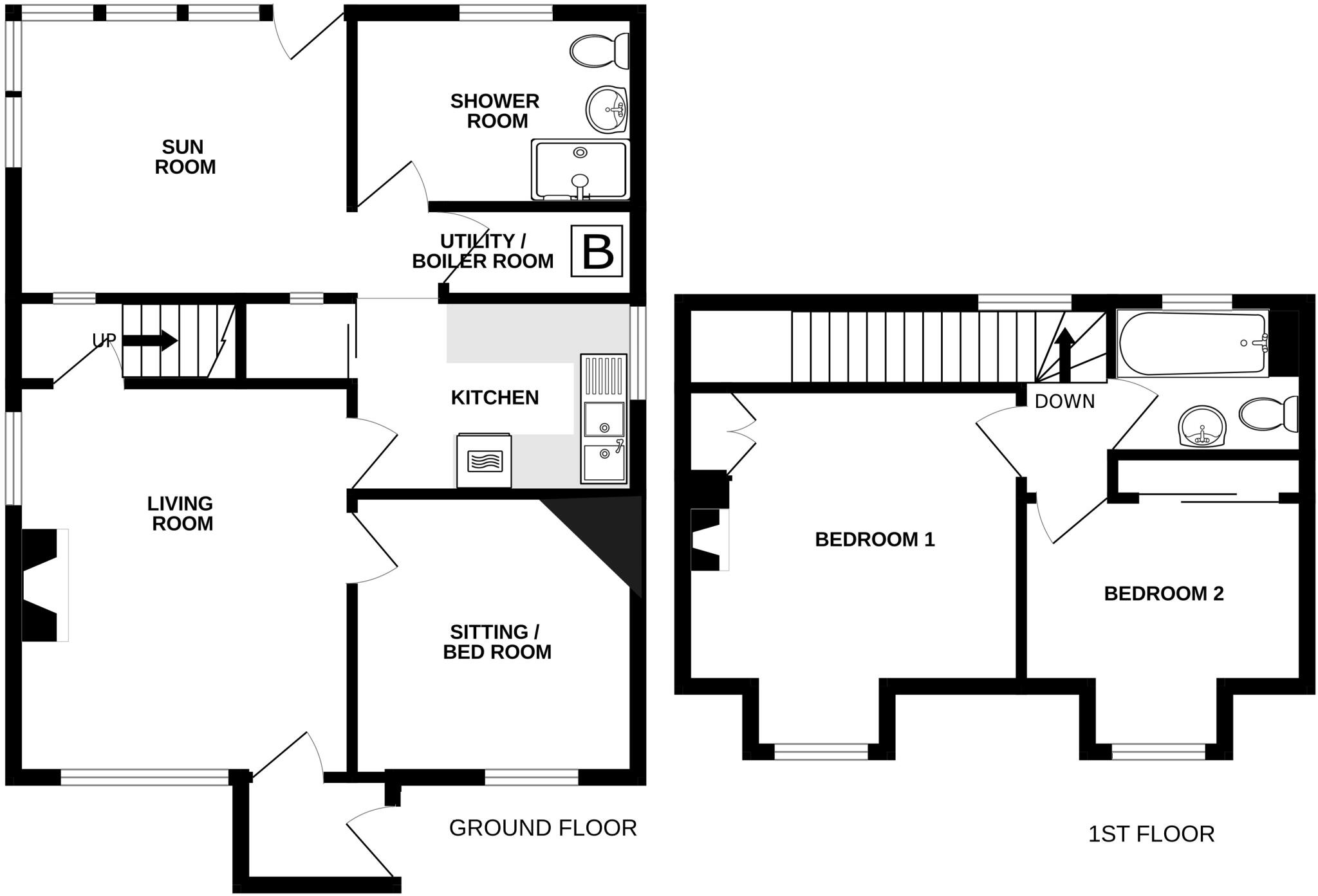
Located in this always popular and sought after area of Kendal, with easy access to the town centre, Staveley and the Windermere valley section of the lake District National Park, a distinctively styled, characterful, 2/3 bedroom detached home, providing flexible, low maintenance, accommodation.
Property Oracle says ..
Therefore, we give this property 6 / 10. *Disclaimer: This is our option and does constitute a recommendation or financial advice. Do your own research. *
- Price
- 8
- Condition
- 4
- Location
- 7
- Land
- 6
- Bedrooms
- 2
- Bathrooms
- 1
- Sqft (est)
- 2,114.51
The heatmap indicates the level of crime in the area. The color of the heatmap indicates the crime severity and recency.
Metrics Year-on-Year
- Average area value
- 603,889.00 £Increased by 40.02 %
- Est sale value
- 1,057,255.00 £Increased by 46.63 %
- Average area rental value
- 1,340.00 £/moIncreased by 1.44 %
- Est letting value
- 2,114.51 £/moUnchanged by 0.00 %
- Est rental Yield
- 2.66 %Decreased by 27.72 %
- Crime Rate
- 5.00 %Unchanged by 0.00 %
from 431,274.00 £
from 721,047.91 £
from 1,321.00 £/mo
from 2,114.51 £/mo
from 3.68 %
from 5.00 %
Agent Activity
H&H Land & Estates created the listing.
Nearby Schools
| Name | Type | Ofsted | Distance |
|---|---|---|---|
| St Thomas'S Cofe Primary School | Voluntary Aided School | Good | 0.46 KM |
| Kendal West Surestart Children'S Centre | Children's Centre | 0.46 KM | |
| Kendal Nursery School | Local Authority Nursery School | Outstanding | 0.78 KM |
| Stramongate Primary School | Academy Converter | Good | 0.82 KM |
| South Lakes Academy | Other Independent Special School | Good | 1.01 KM |
Images
Nearby Streets
| Name | Average Price | Average Sqft | Distance |
|---|---|---|---|
| Charles Street | £ 195,000 | 0 | 0.00 KM |
| Busher Walk | £ 0 | 0 | 0.00 KM |
| South View Lane | £ 350,000 | 0 | 0.00 KM |
| Green Hill | £ 565,000 | 0 | 0.00 KM |
| Beech Bank | £ 475,000 | 0 | 0.00 KM |
Nearby Transport
| Name | NLC | TLC | Distance |
|---|---|---|---|
| Kendal | 1976 | KEN | 1.09 KM |
| Burneside (Cumbria) | 1975 | BUD | 2.92 KM |
| Oxenholme Lake District | 2090 | OXN | 4.53 KM |
| Staveley (Cumbria) | 1977 | SVL | 8.92 KM |
Nearby Listings
| Address | Price | Type | Score | Distance |
|---|---|---|---|---|
| 108 Burneside Road, Kendal, Cumbria | £ 200,000 | BUY | 6 / 10 | 0.00 KM |
| Burneside Road, Kendal, LA9 | £ 550,000 | BUY | 7 / 10 | 0.04 KM |
| Ashleigh Road, Kendal, LA9 | £ 250,000 | BUY | 6 / 10 | 0.05 KM |
| 15 Ashleigh Road, Kendal | £ 225,000 | BUY | 6 / 10 | 0.10 KM |
| Ashleigh Road, Kendal, LA9 4SS | £ 250,000 | BUY | 7 / 10 | 0.11 KM |
Nearby Properties
| Address | Price | Distance |
|---|---|---|
| 4 Dockray Hall Road | £ 156,000 | 0.09 KM |
| 8 Dockray Hall Road | £ 44,000 | 0.09 KM |
| 13 Dockray Hall Road | £ 119,000 | 0.10 KM |
| 10 Dockray Hall Road | £ 120,000 | 0.10 KM |
| 12 Dockray Hall Road | £ 117,000 | 0.10 KM |