105 Captains Road, Edinburgh, EH17 8DT
JA

105 Captains Road, Edinburgh, EH17 8DT

By Jardine Phillips

£ 460,000

Reviews

3 out of 5 stars

Jardine Phillips says ..

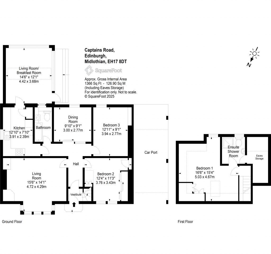
Exceptionally Well Maintained Three Bed Three Public Room Extended Detached Bungalow with Extensive Front & Rear Gardens This delightful, detached property has spacious, flexible accommodation including a stunning rear living/dining room extension built 2016, a further living room (which could b...

Property Oracle says ..

The property is a well-maintained detached bungalow in a desirable residential area of Edinburgh. It benefits from a modern extension, a sizeable garden, and proximity to several railway stations. While the list price is slightly higher than the average for the area, the property’s superior condition and additional features could justify the premium.

Therefore, we give this property 7 / 10. *Disclaimer: This is our option and does constitute a recommendation or financial advice. Do your own research. *

Price
7
Condition
9
Location
7
Land
8
Bedrooms
3
Bathrooms
2
Sqft (est)
1,365.94

The heatmap indicates the level of crime in the area. The color of the heatmap indicates the crime severity and recency.

Metrics Year-on-Year

Average area value
300,499.00 £
Decreased by 1.04 %
from 303,666.00 £
Est sale value
504,031.86 £
Increased by 38.20 %
from 364,705.98 £
Average area rental value
1,368.00 £/mo
Decreased by 2.29 %
from 1,400.00 £/mo
Est letting value
1,365.94 £/mo
Unchanged by 0.00 %
from 1,365.94 £/mo
Est rental Yield
5.46 %
Decreased by 1.27 %
from 5.53 %
Crime Rate
0.00 %
from 0.00 %

Agent Activity

  • Jardine Phillips created the listing.

Images

Primary Property Image Property Image 2 Property Image 3 Property Image 4 Property Image 5 Property Image 6 Property Image 7 Property Image 8 Property Image 9 Property Image 10 Property Image 11 Property Image 12 Property Image 13 Property Image 14 Property Image 15 Property Image 16 Property Image 17 Property Image 18 Property Image 19 Property Image 20 Property Image 21 Property Image 22 Property Image 23 Property Image 24 Property Image 25 Property Image 26 Property Image 27 Property Image 28

Nearby Streets

NameAverage PriceAverage SqftDistance
Balmwell Terrace £ 000.00 KM
St Katharine's Loan £ 000.00 KM
Gracemount Road £ 000.00 KM
Burdiehouse Place £ 000.00 KM
Burdiehouse Medway £ 160,00000.00 KM

Nearby Transport

NameNLCTLCDistance
Edinburgh9328EDB6.55 KM
Brunstane8807BSU7.94 KM
Haymarket9419HYM8.22 KM
Newcraighall8808NEW8.38 KM
Eskbank3776EKB8.70 KM

Nearby Listings

AddressPriceTypeScoreDistance
Shaldon, 107 Captains Road, Edinburgh, EH17 8DT £ 640,000BUY8 / 100.00 KM
105 Captains Road, Edinburgh, EH17 8DT £ 460,000BUY7 / 100.00 KM
86 Captain's Road, Liberton, Edinburgh EH17 8HL £ 195,000BUY7 / 100.09 KM
3 Balmwell Grove, Gracemount, Edinburgh, EH16 6HG £ 210,000BUY6 / 100.25 KM
Balmwell Avenue, Gracemount, Edinburgh, EH16 £ 105,000BUYUnknown0.26 KM