JO
Sefton Avenue, Mill Hill, NW7
By Joseph Scott
£ 765,000
Reviews
3 out of 5 stars
Joseph Scott says ..
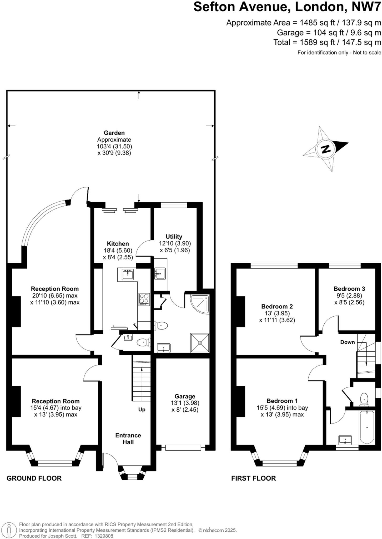
Located on the sought-after Sefton Avenue in Mill Hill, this spacious three-bedroom, two-bathroom semi-detached house offers an excellent opportunity for those looking to modernise and create a family home tailored to their needs.
Property Oracle says ..
Therefore, we give this property 6 / 10. *Disclaimer: This is our option and does constitute a recommendation or financial advice. Do your own research. *
- Price
- 6
- Condition
- 5
- Location
- 8
- Land
- 7
- Bedrooms
- 3
- Bathrooms
- 2
- Sqft (est)
- 1,589.00
- Lot (est)
- 4,772.25
The heatmap indicates the level of crime in the area. The color of the heatmap indicates the crime severity and recency.
Metrics Year-on-Year
- Average area value
- 758,663.00 £Increased by 3.95 %
- Est sale value
- 756,364.00 £Decreased by 26.99 %
- Average area rental value
- 2,364.00 £/moDecreased by 11.43 %
- Est letting value
- 1,589.00 £/moDecreased by 50.00 %
- Est rental Yield
- 3.74 %Decreased by 14.81 %
- Crime Rate
- 1.00 %Unchanged by 0.00 %
from 729,814.00 £
from 1,036,028.00 £
from 2,669.00 £/mo
from 3,178.00 £/mo
from 4.39 %
from 1.00 %
Agent Activity
Joseph Scott created the listing.
Nearby Schools
| Name | Type | Ofsted | Distance |
|---|---|---|---|
| Deansbrook Infant School | Community School | Good | 0.10 KM |
| Deansbrook Junior School | Academy Converter | Good | 0.10 KM |
| The Annunciation Rc Junior School | Voluntary Aided School | Good | 0.37 KM |
| Mathilda Marks-Kennedy Jewish Primary School | Voluntary Aided School | Outstanding | 0.66 KM |
| Menorah Grammar School | Other Independent School | Inadequate | 0.76 KM |
Images
Nearby Streets
| Name | Average Price | Average Sqft | Distance |
|---|---|---|---|
| Edwin Road | £ 0 | 0 | 0.00 KM |
| Langham Road | £ 350,000 | 0 | 0.00 KM |
| Manor Drive | £ 925,000 | 0 | 0.00 KM |
| Grange Road | £ 0 | 0 | 0.00 KM |
| Limes Avenue | £ 999,000 | 0 | 0.00 KM |
Nearby Transport
| Name | NLC | TLC | Distance |
|---|---|---|---|
| Mill Hill Broadway | 1527 | MIL | 1.26 KM |
| Hendon | 1522 | HEN | 4.48 KM |
| Elstree And Borehamwood | 1542 | ELS | 4.86 KM |
| Wembley Stadium | 1509 | WCX | 7.18 KM |
| Kenton | 1399 | KNT | 7.18 KM |
Nearby Listings
| Address | Price | Type | Score | Distance |
|---|---|---|---|---|
| Sefton Avenue, Mill Hill, NW7 | £ 765,000 | BUY | 6 / 10 | 0.00 KM |
| Sefton Avenue, Edgware, NW7 | £ 875,000 | BUY | 7 / 10 | 0.00 KM |
| Sefton Avenue, Mill Hill, NW7 | £ 1,100,000 | BUY | Unknown | 0.07 KM |
| Hursley Grove, Edgware, HA8 | £ 795,000 | BUY | Unknown | 0.10 KM |
| Hursley Grove, Edgware, HA8 | £ 785,000 | BUY | 7 / 10 | 0.10 KM |
Nearby Properties
| Address | Price | Distance |
|---|---|---|
| 24 Sefton Avenue | £ 755,000 | 0.01 KM |
| 42a Sefton Avenue | £ 80,000 | 0.01 KM |
| 60 Sefton Avenue | £ 451,250 | 0.01 KM |
| 32a Sefton Avenue | £ 285,000 | 0.01 KM |
| 34 Sefton Avenue | £ 885,000 | 0.01 KM |