Billing Road, Abington, Northampton, NN1 5RS
By Jackson Grundy Estate Agents
£ 350,000
Reviews
3 out of 5 stars
Jackson Grundy Estate Agents says ..
Located close to Northampton School For Boys, Northampton General Hospital and Abington Park is this fantastic opportunity to acquire this larger than average, three bedroom terrace family home, which could be configured into a four bedroom home.
Property Oracle says ..
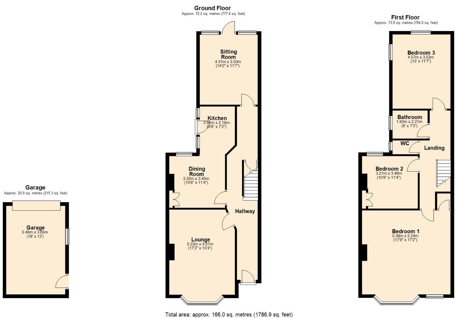
This property is located on Billing Road in Abington, Northampton, which is close to several highly-rated schools such as Northampton School for Boys and St Andrew’s College, both with outstanding Ofsted ratings. The property also benefits from its proximity to Abington Park and Northampton town centre. Transport links are also convenient with Northampton train station approximately 4.14km away. The property itself is a three-bedroom, one-bathroom house with a total area of 1,433.75 sqft and a plot size of 1,786.81 sqft. The images show that the property is in need of some modernisation and repair. The kitchen and bathroom appear dated and require updating. There is also evidence of damp or water damage in several rooms. The property has a garden, which is a positive feature. Considering the condition of the property, its location, and the presence of a garden, the list price of £350,000 seems slightly high compared to similar properties in the area. Nearby properties on Billing Road have sold for prices ranging from £270,000 to £455,000, but these properties may have been in better condition. Further analysis of comparable properties with similar condition and size would be beneficial to determine a more accurate valuation.
Therefore, we give this property 6 / 10. *Disclaimer: This is our option and does constitute a recommendation or financial advice. Do your own research. *
- Price
- 5
- Condition
- 4
- Location
- 8
- Land
- 7
- Bedrooms
- 3
- Bathrooms
- 1
- Sqft (est)
- 1,433.75
- Lot (est)
- 1,786.81
The heatmap indicates the level of crime in the area. The color of the heatmap indicates the crime severity and recency.
Metrics Year-on-Year
- Average area value
- 253,125.00 £Decreased by 4.14 %
- Est sale value
- 252,340.00 £Decreased by 28.74 %
- Average area rental value
- 927.00 £/moDecreased by 14.48 %
- Est letting value
- 0.00 £/moDecreased by 100.00 %
- Est rental Yield
- 4.39 %Decreased by 10.95 %
- Crime Rate
- 0.00 %
Agent Activity
Jackson Grundy Estate Agents created the listing.
Nearby Schools
| Name | Type | Ofsted | Distance |
|---|---|---|---|
| Northampton School For Boys | Academy Converter | Outstanding | 0.20 KM |
| St Andrew'S College | Other Independent School | Outstanding | 0.34 KM |
| Barry Primary School | Community School | Good | 0.54 KM |
| Stimpson Avenue Academy | Academy Sponsor Led | Requires improvement | 0.97 KM |
| Vernon Terrace Primary School | Community School | Good | 1.15 KM |
Images
Nearby Streets
| Name | Average Price | Average Sqft | Distance |
|---|---|---|---|
| Sandringham Close | £ 0 | 0 | 0.00 KM |
| Melbourne Street | £ 0 | 0 | 0.00 KM |
| Park Avenue | £ 0 | 0 | 0.00 KM |
| Abington Avenue | £ 265,000 | 0 | 0.00 KM |
| New Town Road | £ 0 | 0 | 0.00 KM |
Nearby Transport
| Name | NLC | TLC | Distance |
|---|---|---|---|
| Northampton | 1069 | NMP | 4.14 KM |
Nearby Listings
| Address | Price | Type | Score | Distance |
|---|---|---|---|---|
| Billing Road, Abington, NN1 5RS | £ 343,000 | BUY | 6 / 10 | 0.00 KM |
| Billing Road, Northampton, Northamptonshire, NN1 | £ 415,000 | BUY | 6 / 10 | 0.00 KM |
| Billing Road, Abington, Northampton, NN1 | £ 415,000 | BUY | 7 / 10 | 0.00 KM |
| Billing Road, Northampton, Northamptonshire, NN1 5RS | £ 305,000 | BUY | 6 / 10 | 0.07 KM |
| Loyd Road, Abington | £ 310,000 | BUY | 6 / 10 | 0.09 KM |
Nearby Properties
| Address | Price | Distance |
|---|---|---|
| 167 Billing Road | £ 307,500 | 0.09 KM |
| 195 Billing Road | £ 310,000 | 0.09 KM |
| 163 Billing Road | £ 300,000 | 0.09 KM |
| 183 Billing Road | £ 270,000 | 0.09 KM |
| 187 Billing Road | £ 455,000 | 0.09 KM |