Hildenborough Gardens, BROMLEY, Kent, BR1
By Daniels Property Services
£ 360,000
Reviews
2 out of 5 stars
Daniels Property Services says ..
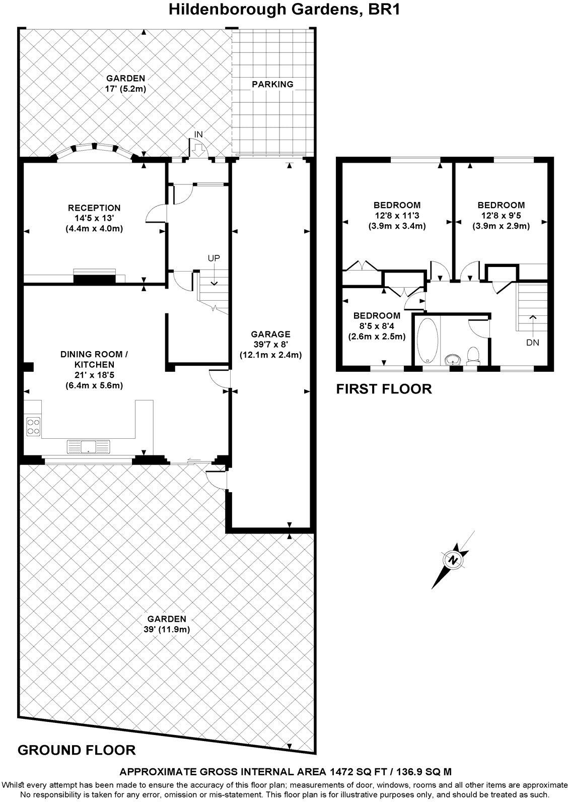
DANIELS are delighted to present to the market this EXTENDED three bedroom SEMI DETACHED house set within a quiet cul de sac setting. The property offers an impressive 1472 sq. (approx). of internal living space and is the ideal opportunity to add your own stamp and add value to with home improve...
Property Oracle says ..
This property is a 3-bedroom, 1-bathroom house located in Bromley, Kent. The asking price is £360,000, and the property measures 1,651.94 sqft. The property is in need of significant modernisation and updating, as evidenced by the dated interiors and apparent need for repairs. The garden is overgrown and requires attention. While the location benefits from proximity to several schools (including Burnt Ash Primary School, rated Outstanding by Ofsted) and transport links, the overall condition of the house significantly impacts its value. Compared to the average price per sqft in the area (£526), the listed price may seem reasonable if the buyer is prepared to undertake substantial renovations. However, the need for extensive work should be factored into any offer.
Therefore, we give this property 4 / 10. *Disclaimer: This is our option and does constitute a recommendation or financial advice. Do your own research. *
- Price
- 5
- Condition
- 3
- Location
- 7
- Land
- 3
- Bedrooms
- 3
- Bathrooms
- 1
- Sqft (est)
- 1,651.94
The heatmap indicates the level of crime in the area. The color of the heatmap indicates the crime severity and recency.
Metrics Year-on-Year
- Average area value
- 484,000.00 £Increased by 14.25 %
- Est sale value
- 825,970.00 £Increased by 32.98 %
- Average area rental value
- 1,663.00 £/moDecreased by 15.63 %
- Est letting value
- 1,651.94 £/moUnchanged by 0.00 %
- Est rental Yield
- 4.12 %Decreased by 26.16 %
- Crime Rate
- 3.00 %Unchanged by 0.00 %
Agent Activity
Daniels Property Services created the listing.
Nearby Schools
| Name | Type | Ofsted | Distance |
|---|---|---|---|
| Rangefield Primary School | Community School | Requires improvement | 0.55 KM |
| Burnt Ash Children And Family Centre | Children's Centre | 0.64 KM | |
| Burnt Ash Primary School | Academy Converter | Outstanding | 0.82 KM |
| Good Shepherd Rc School | Voluntary Aided School | Good | 0.92 KM |
| Downderry Primary School | Community School | Outstanding | 1.09 KM |
Images
Nearby Streets
| Name | Average Price | Average Sqft | Distance |
|---|---|---|---|
| Farmfield Road | £ 440,000 | 0 | 0.00 KM |
| Hillbrow Road | £ 0 | 0 | 0.00 KM |
| Pontefract Road | £ 387,500 | 0 | 0.00 KM |
| Tresco Close | £ 412,500 | 0 | 0.00 KM |
| Cawston Court | £ 325,000 | 0 | 0.00 KM |
Nearby Transport
| Name | NLC | TLC | Distance |
|---|---|---|---|
| Ravensbourne | 5083 | RVB | 1.58 KM |
| Shortlands | 5084 | SRT | 1.62 KM |
| Bromley North | 5096 | BMN | 1.80 KM |
| Sundridge Park | 5155 | SUP | 1.89 KM |
| Grove Park | 5139 | GRP | 2.17 KM |
Nearby Listings
| Address | Price | Type | Score | Distance |
|---|---|---|---|---|
| Hildenborough Gardens, BROMLEY, Kent, BR1 | £ 360,000 | BUY | 4 / 10 | 0.00 KM |
| Alexandra Crescent, Bromley, BR1 | £ 600,000 | BUY | 6 / 10 | 0.12 KM |
| Alexandra Crescent, Bromley, BR1 | £ 900,000 | BUY | 7 / 10 | 0.14 KM |
| Farmfield Road, Bromley, BR1 | £ 425,000 | BUY | 5 / 10 | 0.17 KM |
| Farmfield Road, Bromley, London, BR1 | £ 400,000 | BUY | Unknown | 0.19 KM |
Nearby Properties
| Address | Price | Distance |
|---|---|---|
| 45 Alexandra Crescent | £ 785,000 | 0.07 KM |
| 66 Alexandra Crescent | £ 299,500 | 0.07 KM |
| 90 Alexandra Crescent | £ 600,000 | 0.07 KM |
| 72 Alexandra Crescent | £ 380,000 | 0.07 KM |
| 39 Alexandra Crescent | £ 430,000 | 0.07 KM |