J W Wood says ..
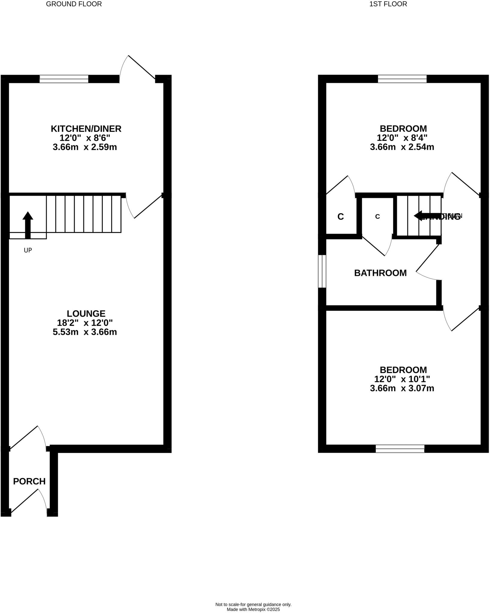
Ideally suiting the first-time buyer this is a very well presented, and improved semi-detached house offering well-proportioned accommodation and situated on a pleasant plot within this small cul de sac very conveniently located. In brief the property comprises on the ground floor; ent...
Property Oracle says ..
The property is a 2-bedroom, 1-bathroom house with a total area of 816.98 sqft and is listed at £145,000. The property appears to be in good condition, with the interior and exterior showing no obvious signs of significant disrepair or needing renovation. The kitchen and bathroom appear modern and well-maintained. The presence of a garden is a positive feature, adding to the property’s appeal. The location in Haughton & Springfield, Darlington, is convenient, with nearby schools such as St Bede’s Catholic Primary School (rated ‘Good’ by Ofsted) within a short distance. The proximity to transportation links, including North Road (Darlington) train station, is also advantageous. Considering the average house price in the area is £160,890 and the average price per sqft is £143, the listed price of £145,000 for this 816.98 sqft property seems reasonable, especially given its apparent good condition and the inclusion of a garden. However, it is slightly below the average price for the area. Nearby comparable properties on Nebraska Close are similarly priced, suggesting the asking price is within the market range for similar properties in the area.
Therefore, we give this property 7 / 10. *Disclaimer: This is our option and does constitute a recommendation or financial advice. Do your own research. *
- Price
- 7
- Condition
- 8
- Location
- 7
- Land
- 7
- Bedrooms
- 2
- Bathrooms
- 1
- Sqft (est)
- 816.98
The heatmap indicates the level of crime in the area. The color of the heatmap indicates the crime severity and recency.
Metrics Year-on-Year
- Average area value
- 201,667.00 £Increased by 15.10 %
- Est sale value
- 175,650.70 £Increased by 28.74 %
- Average area rental value
- 675.00 £/moDecreased by 4.66 %
- Est letting value
- 0.00 £/mo
- Est rental Yield
- 4.02 %Decreased by 17.11 %
- Crime Rate
- 0.00 %
Agent Activity
J W Wood created the listing.
Nearby Schools
| Name | Type | Ofsted | Distance |
|---|---|---|---|
| St Bede'S Catholic Primary School | Academy Converter | Good | 0.28 KM |
| Gurney Pease Academy | Academy Converter | Good | 1.08 KM |
| Harrowgate Hill Primary School | Community School | Requires improvement | 1.10 KM |
| Northwood Primary School | Academy Sponsor Led | Good | 1.11 KM |
| Springfield Academy | Academy Converter | Requires improvement | 1.34 KM |
Images
Nearby Streets
| Name | Average Price | Average Sqft | Distance |
|---|---|---|---|
| Lytham Road | £ 0 | 0 | 0.00 KM |
| Celandine Close | £ 145,000 | 0 | 0.00 KM |
| Dunstan Grove | £ 0 | 0 | 0.00 KM |
| Poppy Close | £ 0 | 0 | 0.00 KM |
| Back Bowman Street | £ 0 | 0 | 0.00 KM |
Nearby Transport
| Name | NLC | TLC | Distance |
|---|---|---|---|
| North Road (Darlington) | 7895 | NRD | 1.90 KM |
| Darlington | 7877 | DAR | 2.86 KM |
| Heighington | 7887 | HEI | 7.47 KM |
| Dinsdale | 7897 | DND | 8.65 KM |
| Newton Aycliffe | 7834 | NAY | 9.48 KM |
Nearby Listings
| Address | Price | Type | Score | Distance |
|---|---|---|---|---|
| Baltimore Way, Darlington, DL1 | £ 145,000 | BUY | 7 / 10 | 0.00 KM |
| Colorado Grove, Darlington | £ 180,000 | BUY | 7 / 10 | 0.06 KM |
| Idaho Gardens, Darlington | £ 260,000 | BUY | 7 / 10 | 0.06 KM |
| Nevada Gardens, Darlington | £ 260,000 | BUY | 6 / 10 | 0.07 KM |
| Nevada Gardens, Darlington | £ 190,000 | BUY | Unknown | 0.07 KM |
Nearby Properties
| Address | Price | Distance |
|---|---|---|
| 5 Nebraska Close | £ 145,000 | 0.08 KM |
| 9 Nebraska Close | £ 104,000 | 0.08 KM |
| 11 Nebraska Close | £ 151,000 | 0.08 KM |
| 15 Nebraska Close | £ 149,000 | 0.08 KM |
| 14 Nebraska Close | £ 188,000 | 0.08 KM |