Bearfield Road, Kingston Upon Thames
By Gibson Lane
£ 945,000
Reviews
4 out of 5 stars
Gibson Lane says ..
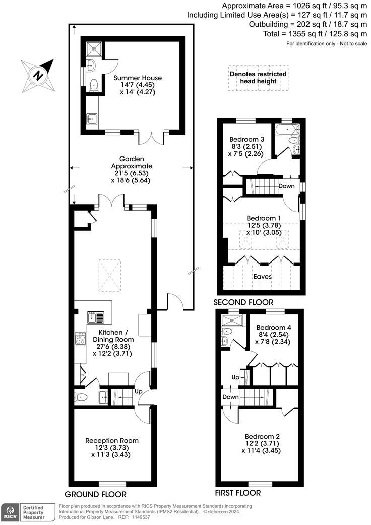
Welcome to Bearfield Road, A Victorian End of terrace house with accommodation in excess of 1350 sq ft arranged over three floors, which has been sympathetically extended over the years to create a wonderful family home. The ground floor complete with underfloor heating over three zones. comp...
Property Oracle says ..
This property is a 4-bedroom, 2-bathroom end of terrace house located in Kingston Upon Thames. The property benefits from a modern extension and has been recently renovated to a high standard. The kitchen and bathrooms are modern and well-equipped. There is a good-sized garden with artificial turf and a separate studio/office space. The location is excellent, with easy access to Kingston town centre, good schools, and transport links. The list price is slightly above the average for the area, but given the size, condition, and location, it is within a reasonable range.
Therefore, we give this property 8 / 10. *Disclaimer: This is our option and does constitute a recommendation or financial advice. Do your own research. *
- Price
- 8
- Condition
- 9
- Location
- 9
- Land
- 7
- Bedrooms
- 4
- Bathrooms
- 2
- Sqft (est)
- 1,355.00
The heatmap indicates the level of crime in the area. The color of the heatmap indicates the crime severity and recency.
Metrics Year-on-Year
- Average area value
- 668,750.00 £Decreased by 1.97 %
- Est sale value
- 840,100.00 £Decreased by 5.05 %
- Average area rental value
- 2,575.00 £/moDecreased by 1.83 %
- Est letting value
- 2,710.00 £/moUnchanged by 0.00 %
- Est rental Yield
- 4.62 %Increased by 0.22 %
- Crime Rate
- 2.00 %Unchanged by 0.00 %
Agent Activity
Gibson Lane created the listing.
Nearby Schools
| Name | Type | Ofsted | Distance |
|---|---|---|---|
| St Luke'S Cofe Primary School | Foundation School | Outstanding | 0.43 KM |
| Educare Small School | Other Independent School | Good | 0.47 KM |
| North Kingston Children'S Centre | Children's Centre | 0.56 KM | |
| Fern Hill Primary School | Academy Converter | 0.59 KM | |
| The Kingston Academy | Free Schools | Outstanding | 0.64 KM |
Images
Nearby Streets
| Name | Average Price | Average Sqft | Distance |
|---|---|---|---|
| Studland Road | £ 1,650,000 | 0 | 0.00 KM |
| David Twigg Close | £ 0 | 0 | 0.00 KM |
| Waights Court | £ 0 | 0 | 0.00 KM |
| St Albans Road | £ 1,350,000 | 0 | 0.00 KM |
| Elm Crescent | £ 0 | 0 | 0.00 KM |
Nearby Transport
| Name | NLC | TLC | Distance |
|---|---|---|---|
| Kingston | 5565 | KNG | 0.65 KM |
| Hampton Wick | 5589 | HMW | 1.47 KM |
| Norbiton | 5568 | NBT | 1.87 KM |
| Surbiton | 5571 | SUR | 2.93 KM |
| Berrylands | 5581 | BRS | 3.02 KM |
Nearby Listings
| Address | Price | Type | Score | Distance |
|---|---|---|---|---|
| Bearfield Road, Kingston Upon Thames | £ 945,000 | BUY | 8 / 10 | 0.00 KM |
| Windsor Road, Kingston Upon Thames | £ 525,000 | BUY | Unknown | 0.06 KM |
| Thorpe Road, Kingston Upon Thames, KT2 | £ 1,125,000 | BUY | Unknown | 0.08 KM |
| Bearfield Road, Kingston upon Thames, Surrey | £ 699,950 | BUY | 5 / 10 | 0.09 KM |
| Kings Road, Kingston upon Thames | £ 1,100,000 | BUY | 8 / 10 | 0.10 KM |
Nearby Properties
| Address | Price | Distance |
|---|---|---|
| 18b Thorpe Road | £ 499,950 | 0.06 KM |
| 58 Thorpe Road | £ 700,000 | 0.06 KM |
| 8 Thorpe Road | £ 349,950 | 0.06 KM |
| 20 Thorpe Road | £ 880,000 | 0.06 KM |
| 34 Thorpe Road | £ 900,000 | 0.06 KM |