Langford Russell says ..
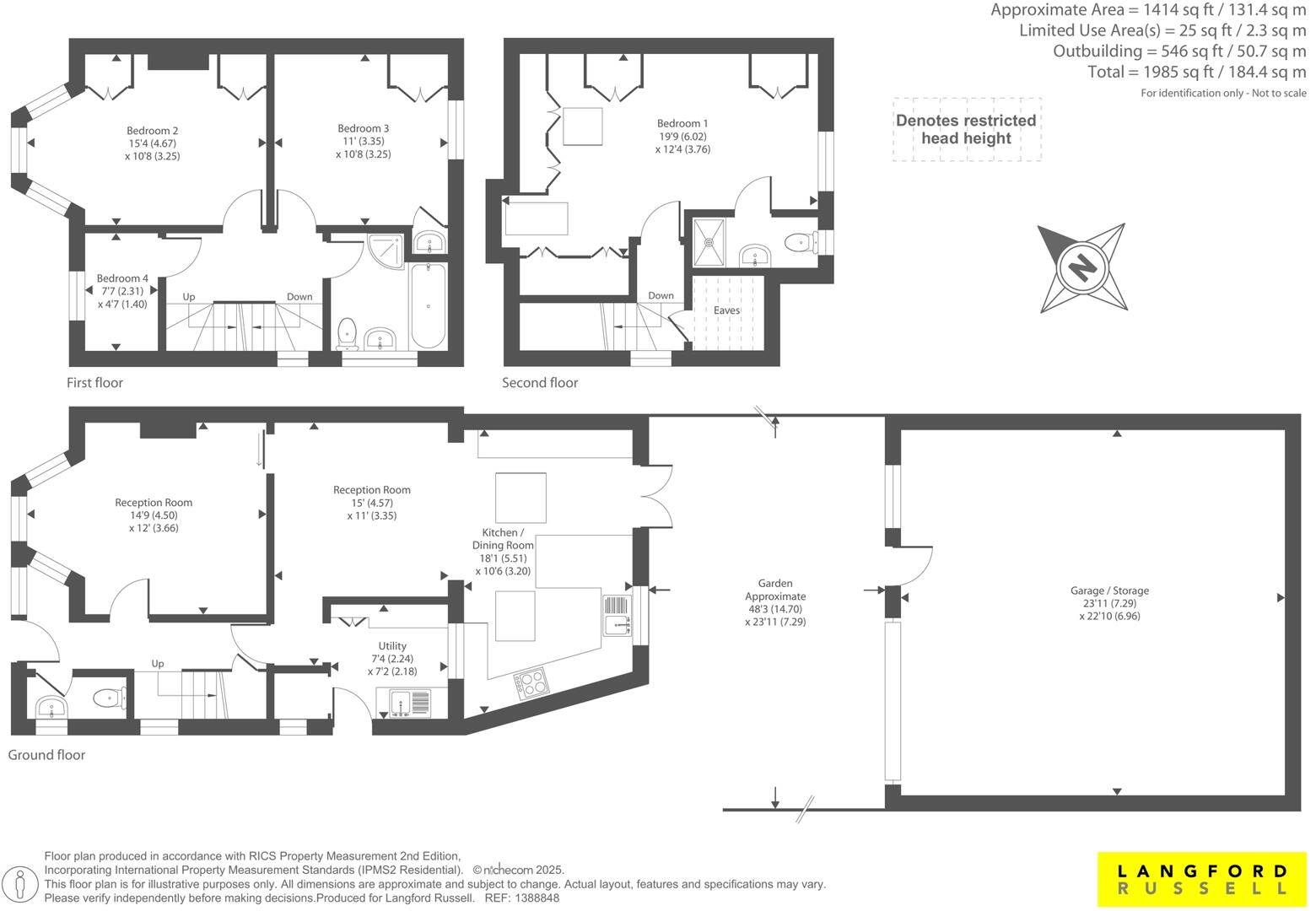
Langford Russell are delighted to welcome to the market this vastly extended, four-bedroom, semi-detached family home in the heart of Sidcup. Internally, the property comprises; a entrance hall, front reception room with bay-window, dining area and open planned kitchen with velux win...
Property Oracle says ..
This is a semi-detached property on Bexley Lane, Sidcup, featuring three bedrooms and two bathrooms, with 1,006 sqft of living space. The property benefits from a modern kitchen and bathrooms, a garden, and off-street parking with a garage. The location offers proximity to schools and transportation, although it is on a main road. While generally well-maintained, some areas could use updating. The asking price of £675,000 appears somewhat high compared to nearby sales and the average price per square foot in the area.
Therefore, we give this property 6 / 10. *Disclaimer: This is our option and does constitute a recommendation or financial advice. Do your own research. *
- Price
- 5
- Condition
- 7
- Location
- 7
- Land
- 6
- Bedrooms
- 3
- Bathrooms
- 2
- Sqft (est)
- 1,006.00
The heatmap indicates the level of crime in the area. The color of the heatmap indicates the crime severity and recency.
Metrics Year-on-Year
- Average area value
- 456,667.00 £Decreased by 3.43 %
- Est sale value
- 846,046.00 £Increased by 89.41 %
- Average area rental value
- 2,099.00 £/moIncreased by 30.13 %
- Est letting value
- 3,018.00 £/moIncreased by 200.00 %
- Est rental Yield
- 5.52 %Increased by 34.96 %
- Crime Rate
- 12.00 %Unchanged by 0.00 %
Agent Activity
Langford Russell created the listing.
Nearby Schools
| Name | Type | Ofsted | Distance |
|---|---|---|---|
| Cleeve Meadow School | Free Schools Special | 0.19 KM | |
| Cleeve Park School | Academy Converter | Requires improvement | 0.19 KM |
| Royal Park Primary Academy | Academy Converter | Good | 1.03 KM |
| Hurstmere School | Academy Converter | Requires improvement | 1.08 KM |
| Merton Court School | Other Independent School | 1.09 KM |
Images
Nearby Streets
| Name | Average Price | Average Sqft | Distance |
|---|---|---|---|
| Royal Road | £ 0 | 0 | 0.00 KM |
| Penny Farthing Bridge | £ 0 | 0 | 0.00 KM |
| Warren Road | £ 625,000 | 0 | 0.00 KM |
| Abbeyhill Road | £ 700,000 | 0 | 0.00 KM |
| Longmead Drive | £ 0 | 0 | 0.00 KM |
Nearby Transport
| Name | NLC | TLC | Distance |
|---|---|---|---|
| Albany Park | 5132 | AYP | 0.84 KM |
| Sidcup | 5125 | SID | 1.83 KM |
| Bexley | 5093 | BXY | 3.27 KM |
| Bexleyheath | 5094 | BXH | 3.98 KM |
| St Mary Cray | 5073 | SMY | 4.25 KM |
Nearby Listings
| Address | Price | Type | Score | Distance |
|---|---|---|---|---|
| Bexley Lane, Sidcup | £ 675,000 | BUY | 6 / 10 | 0.00 KM |
| Bexley Lane, Sidcup, DA14 4JJ | £ 500,000 | BUY | 6 / 10 | 0.11 KM |
| Princes Close, Sidcup | £ 550,000 | BUY | Unknown | 0.14 KM |
| Princes Close, Sidcup, DA14 | £ 310,000 | BUY | 7 / 10 | 0.15 KM |
| Wren Road, Sidcup, DA14 | £ 595,000 | BUY | 7 / 10 | 0.20 KM |
Nearby Properties
| Address | Price | Distance |
|---|---|---|
| 216 Bexley Lane | £ 752,500 | 0.06 KM |
| 224 Bexley Lane | £ 453,000 | 0.06 KM |
| 206 Bexley Lane | £ 250,000 | 0.06 KM |
| 200 Bexley Lane | £ 460,000 | 0.06 KM |
| 176 Bexley Lane | £ 430,000 | 0.06 KM |