Acorn says ..
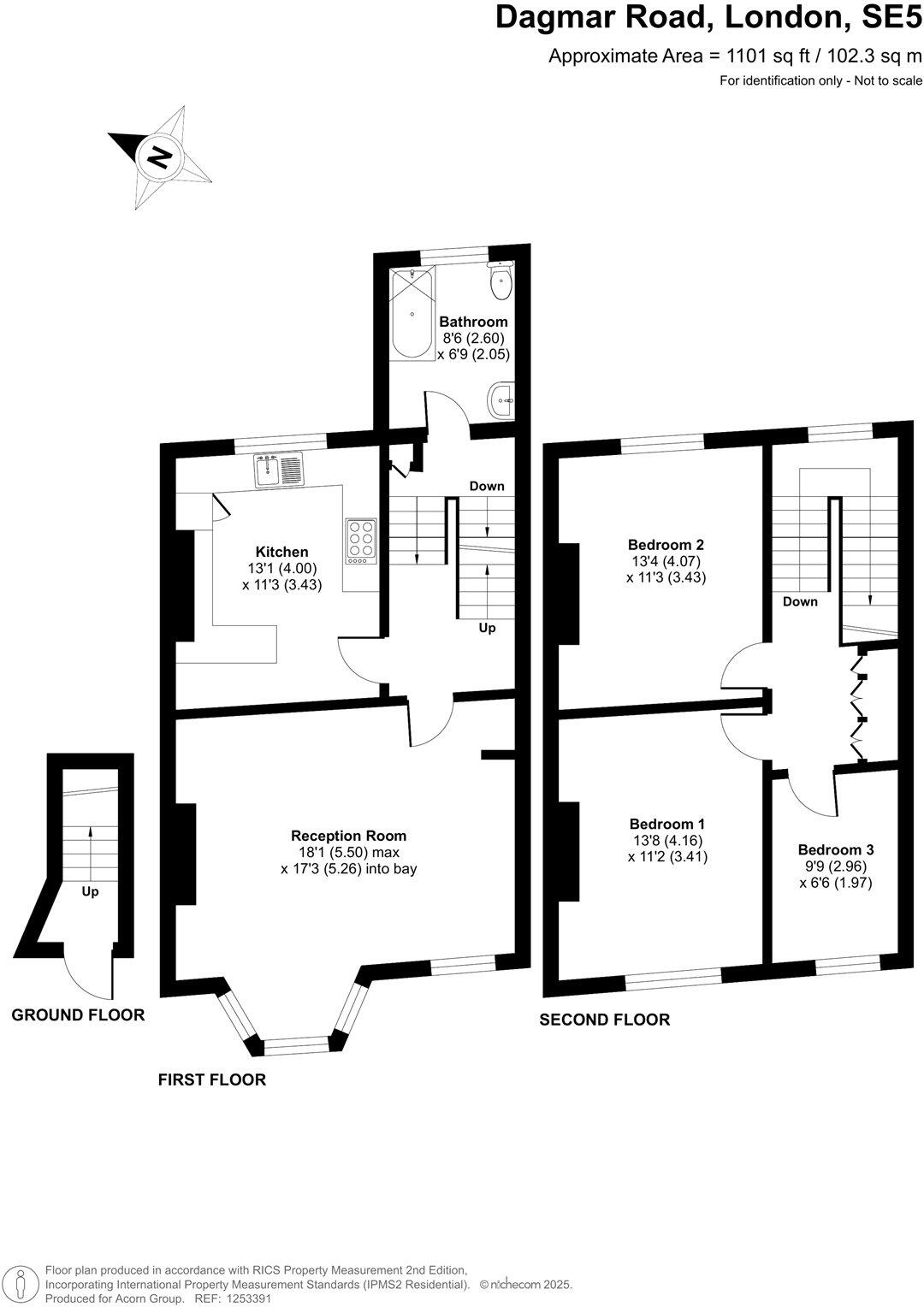
Acorn are pleased to offer this well presented three bedroom apartment. Accommodation comprises a large living room with space to dine, modern kitchen, three bedrooms, three piece bathroom suite and an extra room perfect for WFH. Dagmar Road is very well located with adjoin...
Property Oracle says ..
This property is a 3-bedroom apartment located on Dagmar Road in the St Giles area of Southwark, London. The apartment is 853 sqft and situated on a plot of 1,101 sqft. Based on the provided images, the property appears to be a period property that could benefit from some modernisation. The kitchen and bathroom appear to have been recently updated, however, other areas of the property show signs of wear and tear. The property benefits from a good location, close to local amenities and transport links. The average price per sqft in the area is £631.00, and this property is listed at £625,000. This is slightly below the average price for the area, however, considering the condition of the property, it may be a reasonable price.
Therefore, we give this property 7 / 10. *Disclaimer: This is our option and does constitute a recommendation or financial advice. Do your own research. *
- Price
- 7
- Condition
- 6
- Location
- 8
- Land
- 7
- Bedrooms
- 3
- Bathrooms
- 1
- Sqft (est)
- 853.00
- Lot (est)
- 1,101.00
The heatmap indicates the level of crime in the area. The color of the heatmap indicates the crime severity and recency.
Metrics Year-on-Year
- Average area value
- 723,750.00 £Decreased by 4.18 %
- Est sale value
- 895,650.00 £Increased by 33.59 %
- Average area rental value
- 2,649.00 £/moIncreased by 13.89 %
- Est letting value
- 2,559.00 £/moIncreased by 50.00 %
- Est rental Yield
- 4.39 %Increased by 18.65 %
- Crime Rate
- 5.00 %Unchanged by 0.00 %
Agent Activity
Acorn created the listing.
Nearby Schools
| Name | Type | Ofsted | Distance |
|---|---|---|---|
| Lyndhurst Primary School | Academy Converter | 0.44 KM | |
| Camberwell College Of Arts | Miscellaneous | 0.48 KM | |
| Spa School Camberwell | Free Schools Special | 0.69 KM | |
| Arco Academy | Other Independent School | 0.74 KM | |
| Oliver Goldsmith Primary School | Community School | Requires improvement | 0.77 KM |
Images
Nearby Streets
| Name | Average Price | Average Sqft | Distance |
|---|---|---|---|
| Ribbon Dance Mews | £ 0 | 0 | 0.00 KM |
| Harvey Road | £ 0 | 0 | 0.00 KM |
| Cross Road | £ 0 | 0 | 0.00 KM |
| Kimpton Road | £ 376,667 | 0 | 0.00 KM |
| Bantry Street | £ 675,000 | 0 | 0.00 KM |
Nearby Transport
| Name | NLC | TLC | Distance |
|---|---|---|---|
| Denmark Hill | 5421 | DMK | 0.68 KM |
| East Dulwich | 5358 | EDW | 1.26 KM |
| Peckham Rye | 5423 | PMR | 1.69 KM |
| North Dulwich | 5429 | NDL | 1.99 KM |
| Loughborough Junction | 5082 | LGJ | 2.05 KM |
Nearby Listings
| Address | Price | Type | Score | Distance |
|---|---|---|---|---|
| Dagmar Road, London | £ 625,000 | BUY | 7 / 10 | 0.00 KM |
| Dagmar Road, London, SE5 | £ 270,000 | BUY | 5 / 10 | 0.02 KM |
| Maude Road, London | £ 525,000 | BUY | 6 / 10 | 0.03 KM |
| Dagmar Road, London, SE5 | £ 600,000 | BUY | 5 / 10 | 0.03 KM |
| Dagmar Road, Camberwell, SE5 | £ 650,000 | BUY | 7 / 10 | 0.03 KM |
Nearby Properties
| Address | Price | Distance |
|---|---|---|
| 3 Dagmar Road | £ 935,000 | 0.02 KM |
| 2c Dagmar Road | £ 154,000 | 0.02 KM |
| 24a Dagmar Road | £ 600,000 | 0.02 KM |
| 24 Dagmar Road | £ 123,000 | 0.02 KM |
| 19a Dagmar Road | £ 740,000 | 0.02 KM |