Fraser Close, Burnham-On-Sea, TA8
By CB Real Estate
£ 250,000
Reviews
3 out of 5 stars
CB Real Estate says ..
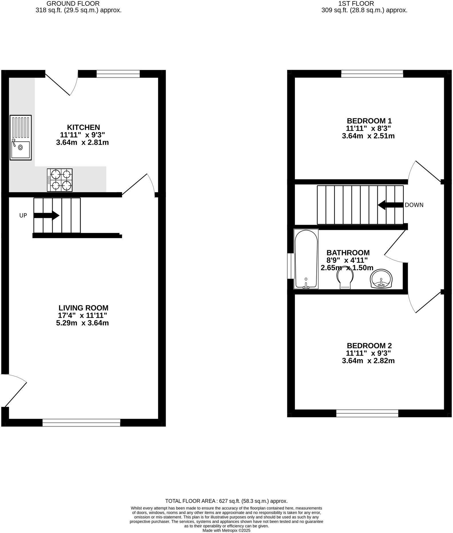
Fully renovated 2-bed semi-detached house with modern new kitchen & bathroom, new windows/doors. Spacious driveway, carport & large garden for outdoor living. Prime location for modern lifestyle.
Property Oracle says ..
The property is a well-maintained, modern home in a desirable location. The list price, while potentially higher than some comparable properties, reflects the recent renovations and the overall condition. Further information regarding the property’s precise dimensions would allow for a more detailed price analysis.
Therefore, we give this property 7 / 10. *Disclaimer: This is our option and does constitute a recommendation or financial advice. Do your own research. *
- Price
- 7
- Condition
- 9
- Location
- 8
- Land
- 4
- Bedrooms
- 2
- Bathrooms
- 1
The heatmap indicates the level of crime in the area. The color of the heatmap indicates the crime severity and recency.
Metrics Year-on-Year
- Average area value
- 277,658.00 £Decreased by 1.13 %
- Average area rental value
- 942.00 £/moDecreased by 17.59 %
- Est rental Yield
- 4.07 %Decreased by 16.60 %
- Crime Rate
- 13.00 %Unchanged by 0.00 %
Agent Activity
CB Real Estate created the listing.
Nearby Schools
| Name | Type | Ofsted | Distance |
|---|---|---|---|
| Burnham-On-Sea Community Infant School | Community School | Outstanding | 0.40 KM |
| Burnham-On-Sea Building | Children's Centre Linked Site | 0.42 KM | |
| St Andrew'S Church Of England Voluntary Controlled Junior School | Voluntary Controlled School | Good | 1.07 KM |
| The King Alfred School An Academy | Academy Sponsor Led | 1.25 KM | |
| Churchfield Church School | Academy Sponsor Led | Good | 1.80 KM |
Images
Nearby Streets
| Name | Average Price | Average Sqft | Distance |
|---|---|---|---|
| Raleigh Gardens | £ 199,950 | 0 | 0.00 KM |
| Barrington Road | £ 285,000 | 0 | 0.00 KM |
| Frobisher Close | £ 258,283 | 0 | 0.00 KM |
| Avebury Close | £ 236,650 | 0 | 0.00 KM |
| Buckland Close | £ 210,500 | 0 | 0.00 KM |
Nearby Transport
| Name | NLC | TLC | Distance |
|---|---|---|---|
| Highbridge And Burnham | 3314 | HIG | 2.63 KM |
Nearby Listings
| Address | Price | Type | Score | Distance |
|---|---|---|---|---|
| Fraser Close, Burnham-On-Sea, TA8 | £ 250,000 | BUY | 7 / 10 | 0.00 KM |
| Raleigh Gardens, Burnham on Sea, TA8 | £ 165,000 | BUY | Unknown | 0.08 KM |
| Raleigh Gardens, Burnham on Sea, TA8 | £ 199,950 | BUY | 5 / 10 | 0.08 KM |
| Cunningham Road, Burnham-on-Sea, TA8 | £ 165,000 | BUY | 5 / 10 | 0.12 KM |
| Hawkins Close, Burnham-on-Sea, Somerset, TA8 | £ 244,500 | BUY | 6 / 10 | 0.13 KM |
Nearby Properties
| Address | Price | Distance |
|---|---|---|
| 26 Fraser Close | £ 147,000 | 0.03 KM |
| 22a Fraser Close | £ 160,000 | 0.03 KM |
| 9 Fraser Close | £ 107,000 | 0.03 KM |
| 7 Fraser Close | £ 225,000 | 0.03 KM |
| 19 Fraser Close | £ 172,500 | 0.03 KM |