Winkworth says ..
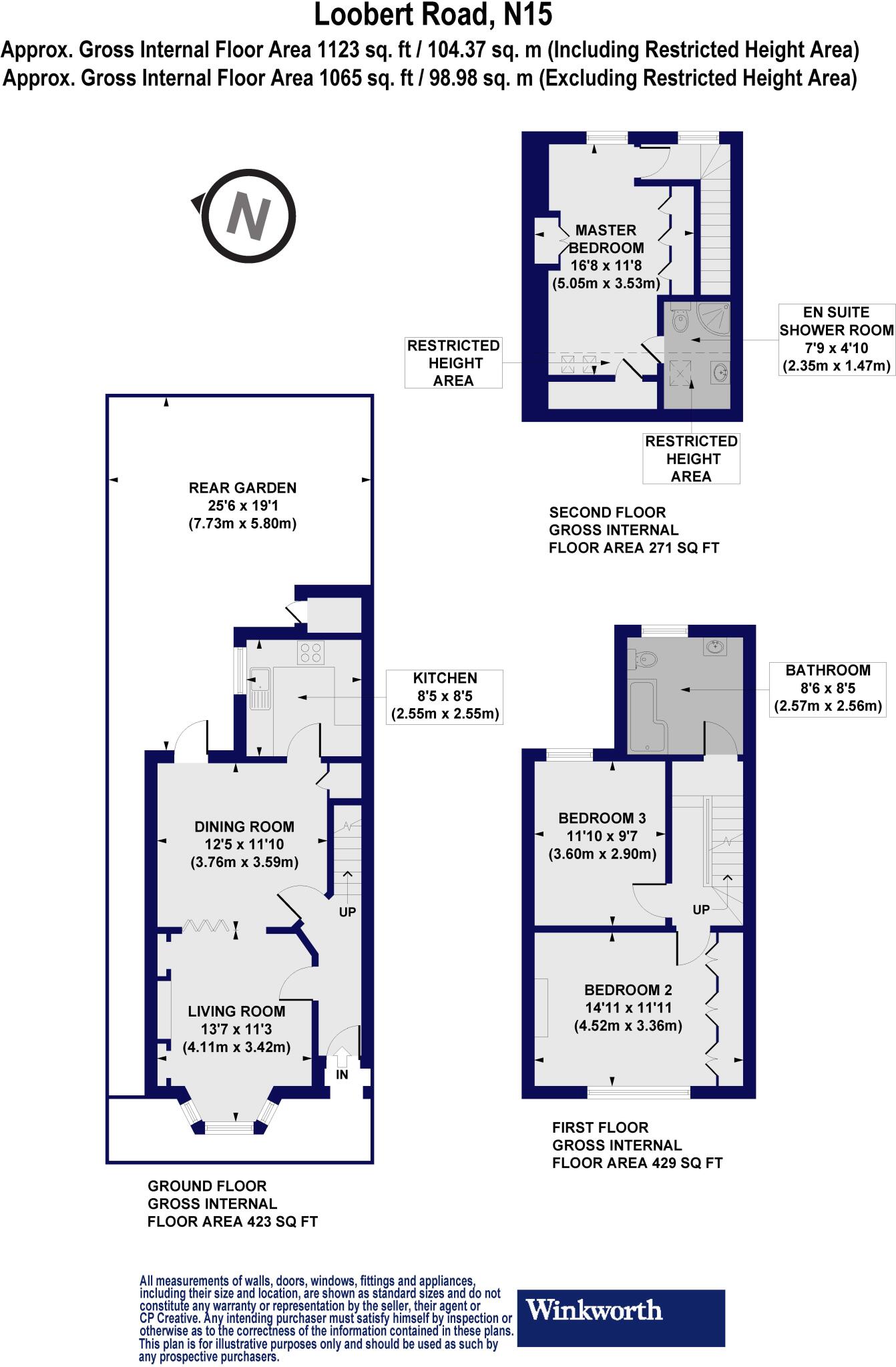
Arranged over three beautifully presented floors, this charming three-bedroom end-of-terrace home combines period character with thoughtful design. Being sold Chain Free. Behind its attractive Victorian facade, the house offers welcoming spaces perfect for modern living. Step from the ...
Property Oracle says ..
Therefore, we give this property 7 / 10. *Disclaimer: This is our option and does constitute a recommendation or financial advice. Do your own research. *
- Price
- 7
- Condition
- 8
- Location
- 7
- Land
- 6
- Bedrooms
- 3
- Bathrooms
- 2
- Sqft (est)
- 1,457.19
The heatmap indicates the level of crime in the area. The color of the heatmap indicates the crime severity and recency.
Metrics Year-on-Year
- Average area value
- 789,000.00 £Increased by 13.27 %
- Est sale value
- 1,693,254.78 £Increased by 105.66 %
- Average area rental value
- 2,233.00 £/moIncreased by 4.05 %
- Est letting value
- 4,371.57 £/moIncreased by 200.00 %
- Est rental Yield
- 3.40 %Decreased by 8.11 %
- Crime Rate
- 4.00 %Unchanged by 0.00 %
from 696,574.00 £
from 823,312.35 £
from 2,146.00 £/mo
from 1,457.19 £/mo
from 3.70 %
from 4.00 %
Agent Activity
Winkworth created the listing.
Nearby Schools
| Name | Type | Ofsted | Distance |
|---|---|---|---|
| Ambitious College | Special Post 16 Institution | Good | 0.50 KM |
| Bruce Grove Primary School | Community School | Good | 0.67 KM |
| Holy Trinity Cofe Primary School | Academy Sponsor Led | Good | 0.79 KM |
| Broadwaters Children'S Centre | Children's Centre | 0.87 KM | |
| Welbourne Primary School | Community School | Good | 0.97 KM |
Images
Nearby Streets
| Name | Average Price | Average Sqft | Distance |
|---|---|---|---|
| Portland Place | £ 325,000 | 0 | 0.00 KM |
| Fairweather Close | £ 0 | 0 | 0.00 KM |
| Lawrence Road | £ 471,875 | 0 | 0.00 KM |
| Houghton Road | £ 0 | 0 | 0.00 KM |
| A10 | £ 0 | 0 | 0.00 KM |
Nearby Transport
| Name | NLC | TLC | Distance |
|---|---|---|---|
| Seven Sisters | 6931 | SVS | 0.74 KM |
| Bruce Grove | 6958 | BCV | 0.89 KM |
| South Tottenham | 7404 | STO | 1.04 KM |
| Stamford Hill | 6968 | SMH | 1.60 KM |
| Tottenham Hale | 6951 | TOM | 1.78 KM |
Nearby Listings
| Address | Price | Type | Score | Distance |
|---|---|---|---|---|
| Loobert Road, South Tottenham, London, N15 | £ 650,000 | BUY | 7 / 10 | 0.01 KM |
| Loobert Road, London, N15 | £ 750,000 | BUY | 7 / 10 | 0.03 KM |
| Loobert Road, London, N15 | £ 750,000 | BUY | 7 / 10 | 0.04 KM |
| Philip Lane, London | £ 650,000 | BUY | 6 / 10 | 0.05 KM |
| Jansons Road, London, N15 | £ 600,000 | BUY | 6 / 10 | 0.08 KM |
Nearby Properties
| Address | Price | Distance |
|---|---|---|
| 10 Loobert Road | £ 450,000 | 0.02 KM |
| 13 Loobert Road | £ 606,000 | 0.02 KM |
| 1 Loobert Road | £ 628,000 | 0.02 KM |
| 19 Loobert Road | £ 572,500 | 0.02 KM |
| 108 Philip Lane | £ 250,000 | 0.07 KM |