Wilment Court, 1-2 Gladstone Parade, NW2
By Des Res
£ 175,000
Reviews
2 out of 5 stars
Des Res says ..
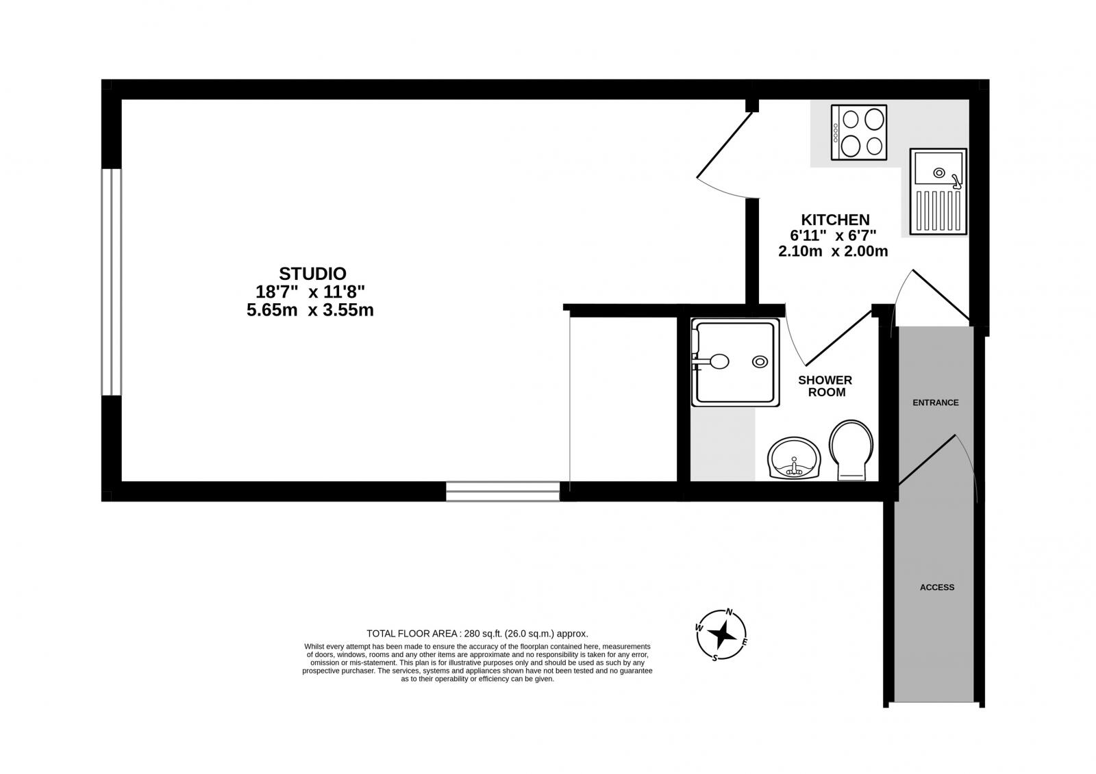
This studio apartment, located at Wilment Court on Gladstone Parade, London NW2, provides a practical living arrangement. The property features a compact yet functional kitchen equipped with essential appliances, including an oven, hob, and microwave. The bathroom is fitted with a shower and incl...
Property Oracle says ..
This is a studio apartment located in Dollis Hill, London. The property is in reasonable condition, but could benefit from some modernisation. It is located in a good location, close to Gladstone Park and with good transport links. The property is listed at £175,000, which seems reasonable for a studio apartment in this location. The flat is located above commercial premises.
Therefore, we give this property 5 / 10. *Disclaimer: This is our option and does constitute a recommendation or financial advice. Do your own research. *
- Price
- 7
- Condition
- 6
- Location
- 7
- Land
- 1
- Bedrooms
- 0
- Bathrooms
- 1
- Sqft (est)
- 262.50
The heatmap indicates the level of crime in the area. The color of the heatmap indicates the crime severity and recency.
Metrics Year-on-Year
- Average area value
- 592,856.00 £Decreased by 11.32 %
- Est sale value
- 179,550.00 £Increased by 10.86 %
- Average area rental value
- 2,240.00 £/moIncreased by 20.89 %
- Est letting value
- 525.00 £/moIncreased by 100.00 %
- Est rental Yield
- 4.53 %Increased by 36.04 %
- Crime Rate
- 6.00 %Unchanged by 0.00 %
Agent Activity
Des Res created the listing.
Nearby Schools
| Name | Type | Ofsted | Distance |
|---|---|---|---|
| Our Lady Of Grace Rc Infant And Nursery School | Academy Converter | 0.16 KM | |
| Mora Primary School | Community School | Good | 0.54 KM |
| Claremont Primary School | Academy Converter | Good | 0.66 KM |
| Our Lady Of Grace Catholic Junior School | Academy Converter | 1.10 KM | |
| Anson Primary School | Community School | Good | 1.17 KM |
Images
Nearby Streets
| Name | Average Price | Average Sqft | Distance |
|---|---|---|---|
| Edgware Road | £ 620,000 | 0 | 0.00 KM |
| Gladstone Park Gardens | £ 0 | 0 | 0.00 KM |
| Edgware Road | £ 0 | 0 | 0.00 KM |
| Stoll Close | £ 0 | 0 | 0.00 KM |
| Hudson Way | £ 625,000 | 0 | 0.00 KM |
Nearby Transport
| Name | NLC | TLC | Distance |
|---|---|---|---|
| Cricklewood | 1519 | CRI | 1.28 KM |
| Hendon | 1522 | HEN | 2.53 KM |
| Brondesbury Park | 1438 | BSP | 2.91 KM |
| Brondesbury | 1437 | BSY | 3.07 KM |
| Kensal Rise | 1448 | KNR | 3.23 KM |
Nearby Listings
| Address | Price | Type | Score | Distance |
|---|---|---|---|---|
| Gladstone Parade, London, NW2 6JT | £ 140,000 | BUY | 6 / 10 | 0.00 KM |
| Wilment Court, 1-2 Gladstone Parade, NW2 | £ 175,000 | BUY | 5 / 10 | 0.00 KM |
| Gladstone Park Gardens, London, NW2 | £ 650,000 | BUY | 7 / 10 | 0.07 KM |
| Gladstone Parade, London, ., NW2 6JT | £ 140,000 | BUY | 6 / 10 | 0.10 KM |
| Wilkinson Close, London | £ 425,000 | BUY | 7 / 10 | 0.16 KM |
Nearby Properties
| Address | Price | Distance |
|---|---|---|
| 22 Gladstone Park Gardens | £ 282,000 | 0.17 KM |
| 42 Gladstone Park Gardens | £ 455,000 | 0.17 KM |
| 30a Gladstone Park Gardens | £ 405,000 | 0.17 KM |
| 20b Gladstone Park Gardens | £ 365,000 | 0.17 KM |
| 40 Gladstone Park Gardens | £ 370,000 | 0.17 KM |